Hala na wynajem
8 000 zł
250 m2



















1 / 19
Szczegóły ogłoszenia
- Symbol oferty GRS-HW-3007
- Typ oferty hala na wynajem
- Czynsz wynajmu 8 000 zł / miesiąc
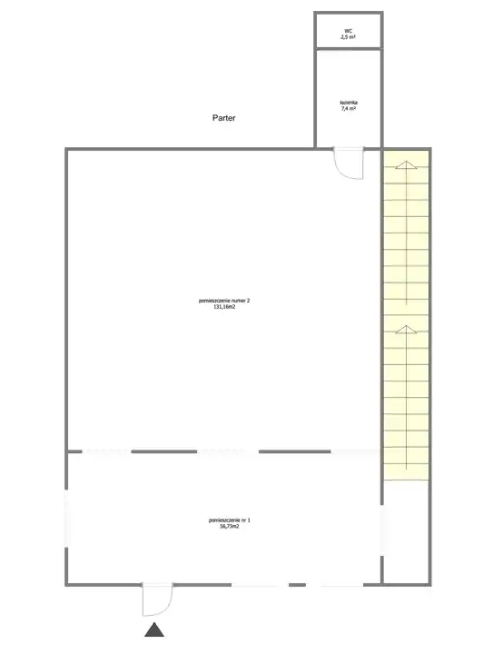
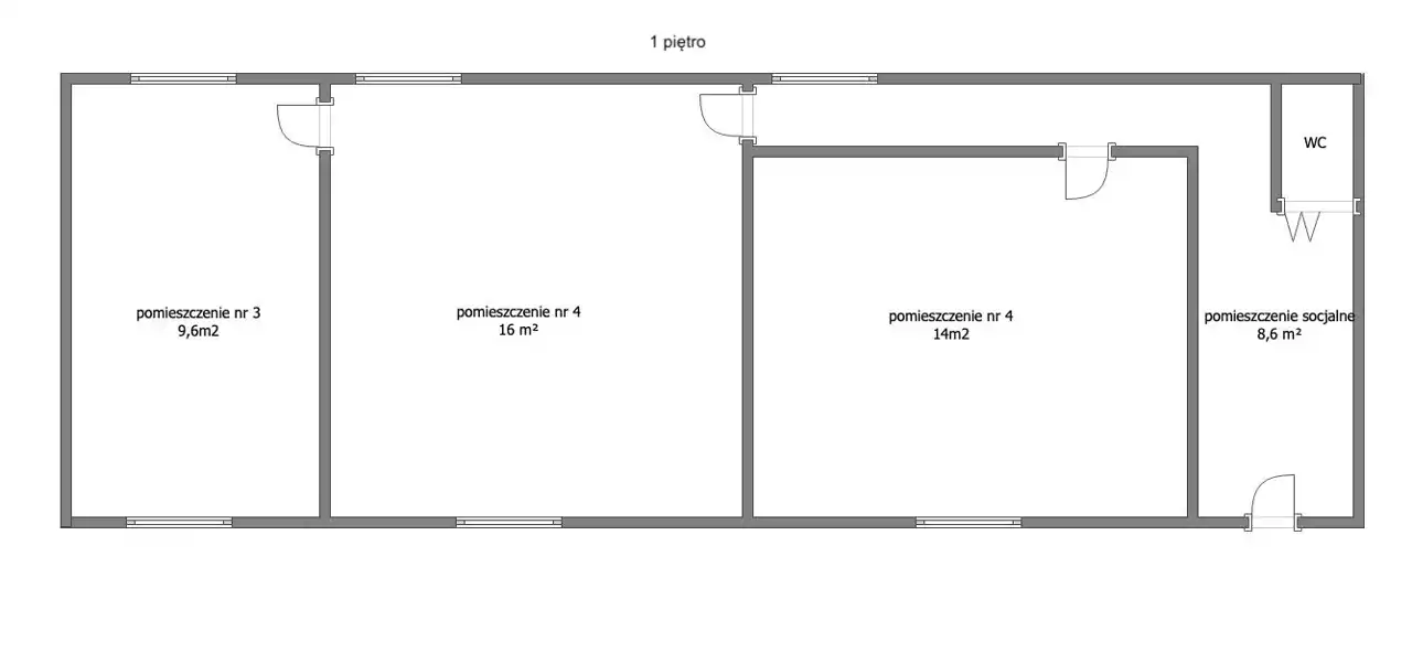
- Charakterystyka mieszkania 250 m2, 5 pokoi
- Rozkład mieszkania parter piętro
- Okna PCV
- Stan lokalu bardzo dobry
Lokalizacja
- Adres pomorskie, Słupsk m., Słupsk
Opis nieruchomości
Wynajem hali w centrum Słupska – ul. Poznańska
Mamy przyjemność zaprezentować Państwu wyjątkową ofertę wynajmu hali o powierzchni około 250 m², położonej w sercu Słupska, przy ul. Poznańskiej. To idealna propozycja dla przedsiębiorców poszukujących funkcjonalnej i dobrze skomunikowanej przestrzeni do prowadzenia działalności.
Opis obiektu:
- Powierzchnia całkowita: ok. 250 m²
- Układ funkcjonalny: hala składa się z 5 pomieszczeń – przestrzeni głównej oraz kilku mniejszych, które mogą pełnić rolę biur, magazynów podręcznych, zaplecza socjalnego lub warsztatu specjalistycznego.
- Stan techniczny: obiekt w dobrym stanie, gotowy do użytkowania, z możliwością dostosowania pod indywidualne potrzeby najemcy.
- Dojazd i dostęp: dogodny dojazd zarówno dla samochodów osobowych, jak i dostawczych; przed halą znajdują się miejsca parkingowe dla klientów i pracowników.
Atuty nieruchomości:
- Świetna lokalizacja – centrum miasta, w pobliżu głównych arterii komunikacyjnych.
- Uniwersalne zastosowanie – hala idealna pod magazyn, warsztat, działalność usługowo-produkcyjną, logistyczną, a także hurtownię.
- Dostępność od zaraz – nie wymaga skomplikowanych adaptacji.
- Elastyczny układ – 5 pomieszczeń umożliwia dostosowanie przestrzeni do różnych potrzeb biznesowych.
- Parking na miejscu – komfort dla pracowników i klientów.
Warunki najmu
- Czynsz: 8 000 PLN + media
- Kaucja zwrotna: 8 000 PLN
- Wynagrodzenie pośrednika: 8 000 PLN
Dla kogo?
Hala świetnie sprawdzi się dla:
- firm handlowych i dystrybucyjnych (hurtownie, magazyny)
- przedsiębiorstw produkcyjnych
- warsztatów samochodowych i specjalistycznych
- firm budowlanych i usługowych potrzebujących przestrzeni do pracy i przechowywania sprzętu
- osób poszukujących dużej, centralnie położonej przestrzeni użytkowej
Nota prawna
Opis oferty zawarty na stronie internetowej sporządzany jest na podstawie oględzin nieruchomości oraz informacji uzyskanych od właściciela, może podlegać aktualizacji i nie stanowi oferty określonej w art. 66 i następnych K.C.
Formularz kontaktowy