Mieszkanie na sprzedaż












Szczegóły ogłoszenia
- Symbol oferty GRS-MS-3106
- Typ oferty mieszkanie na sprzedaż
- Cena 260 000 zł
- Charakterystyka mieszkania 53.37 m2, 2 pokoje
- Budynek kamienica; rok budowy: 1912
- Rozkład mieszkania parter piętro
- Czynsz Czynsz letni: 340 zł
- Okna PCV
- Stan lokalu do remontu
- Technologia budowlana cegła
Lokalizacja
- Adres pomorskie, Słupsk
Opis nieruchomości
Na sprzedaż mieszkanie w świetnej lokalizacji – ul. Konopnickiej, Słupsk
Oferujemy na sprzedaż mieszkanie z dużym potencjałem, położone w doskonałej lokalizacji w Słupsku – przy ul. Konopnickiej. To propozycja dla osób ceniących wygodę życia w centrum miasta oraz bliskość pełnej infrastruktury.
Lokalizacja
Nieruchomość usytuowana jest w bardzo dobrze skomunikowanej części miasta. W bezpośrednim sąsiedztwie znajdują się sklepy, punkty usługowe, szkoły, przedszkola, apteki oraz przychodnie. W pobliżu dostępne są przystanki komunikacji miejskiej, co zapewnia szybki i wygodny dojazd do każdej części Słupska. Lokalizacja zapewnia komfort codziennego funkcjonowania oraz szybki dostęp do centrum miasta.
Opis nieruchomości
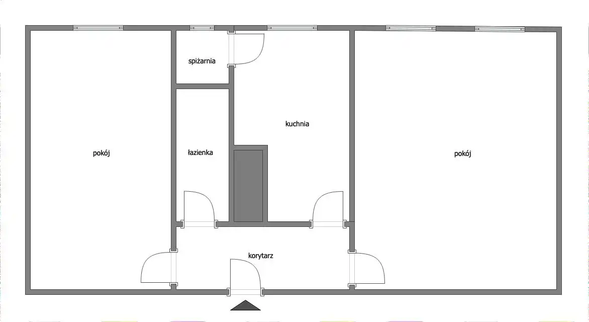
Mieszkanie o powierzchni 53,37 m² położone jest na parterze kamienicy po remoncie elewacji. Lokal jest przestronny, ustawny i daje duże możliwości aranżacyjne.
W skład mieszkania wchodzą:
• przestronny salon
• drugi ustawny pokój
• oddzielna kuchnia
• spiżarnia
• łazienka
• korytarz
Do mieszkania przynależy piwnica, stanowiąca dodatkową przestrzeń do przechowywania.
Mieszkanie przeznaczone jest do generalnego remontu, co daje możliwość aranżacji wnętrza według własnych potrzeb.
Okna PCV. Ogrzewanie oraz ciepła woda z pieca gazowego.
Dodatkowe informacje
Czynsz do Wspólnoty Mieszkaniowej wynosi 340 zł miesięcznie.
Dodatkowo płatne media według zużycia – gaz oraz prąd.
Za kamienicą znajdują się miejsca postojowe przeznaczone dla mieszkańców.
Nieruchomość idealna zarówno do zamieszkania, jak i jako inwestycja pod wynajem – ze względu na świetną lokalizację i funkcjonalny układ pomieszczeń.
Cena: 260 000 zł
Strona Kupująca pokrywa wynagrodzenie prowizyjne dla biura.
Więcej informacji uzyskasz kontaktując się z nami:
799 333 633 - Dominika Wójcik (opiekun oferty)
728 202 030 - Marta Patyna, licencja 31772
669 647 067 - Karolina Jakuczun
728 111 007 - Przemek Pryzwan, licencja 31771
503 901 101 - Adrianna Iwanicka, licencja 23687
799 799 397 - Dominika Szramiak
799 077 000 - Wiktoria Gołębiewska
Serdecznie zapraszam Państwa na prezentację nieruchomości, z przyjemnością odpowiem na wszelkie pytania oraz udzielę dodatkowych informacji.
Zamierzasz kupić nieruchomość i skorzystać z finansowania banku? Pomożemy dokonać Ci dobrego wyboru najlepszej oferty spośród wielu banków. Nasz doradca dostosuje ofertę kredytu hipotecznego do Twoich potrzeb i oczekiwań oraz będzie do Twojej dyspozycji na każdym etapie procesu kredytowego.
Niniejsza oferta nie stanowi oferty w rozumieniu Kodeksu Cywilnego, a dane w niej zawarte mają jedynie charakter informacyjny i mogą ulec zmianie.