Mieszkanie na sprzedaż



















Szczegóły ogłoszenia
- Symbol oferty GRS-MS-3098
- Typ oferty mieszkanie na sprzedaż
- Cena 299 000 zł
- Charakterystyka mieszkania 47.85 m2, 2 pokoje
- Rozkład mieszkania 2p piętro
- Media Ogrzewanie: C.O. miejskie; Woda: ciepła - piecyk gazowy; Gaz: jest
- Balkon jest
- Instalacje niewymienione
- Okna PCV
- Stan lokalu do generalnego remontu
- Umeblowanie brak
Lokalizacja
- Adres pomorskie, Słupsk
Opis nieruchomości
NA SPRZEDAŻ | PRZESTRONNE 2-POKOJOWE MIESZKANIE DO REMONTU | 47,85 m² | UL. LIPOWA – Słupsk
Oferujemy na sprzedaż ustawne i funkcjonalne 2-pokojowe mieszkanie o powierzchni 47,85 m², zlokalizowane na 2 piętrze w niskim, 3-piętrowym bloku przy ul. Lipowej w Słupsku. Nieruchomość znajduje się w stanie do remontu, co stanowi ogromny atut dla osób, które chcą stworzyć wnętrze w pełni dopasowane do własnych potrzeb, stylu i budżetu.
Układ mieszkania daje wiele możliwości aranżacyjnych – zarówno w klasycznym układzie dwóch pokoi z oddzielną kuchnią, jak i w nowoczesnej wersji z częściowo otwartą strefą dzienną.
To propozycja idealna dla:
- osób szukających pierwszego mieszkania,
- par,
- rodzin z dzieckiem,
- inwestorów planujących zakup pod wynajem długo- lub krótkoterminowy.
Powierzchnia i funkcjonalny układ
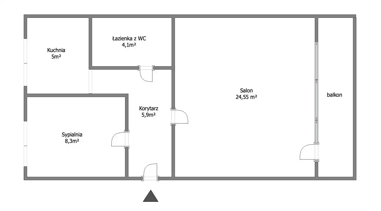
Na 47,85 m² składają się:
- przestronny salon z wyjściem na duży balkon typu loggia,
- ustawna sypialnia,
- oddzielna, widna kuchnia,
- łazienka z WC,
- przedpokój z miejscem na szafę w zabudowie.
Dodatkowo do mieszkania przynależy piwnica, która zapewnia wygodną przestrzeń do przechowywania.
Stan techniczny
- okna: drewniane
- instalacja elektryczna: aluminiowa
- ciepła woda: z piecyka gazowego
- ogrzewanie: z sieci miejskiej
- czynsz administracyjny: 494,31 zł
Lokal wymaga przeprowadzenia generalnego remontu, co daje pełną swobodę w zakresie doboru materiałów, kolorystyki oraz standardu wykończenia. Dzięki temu nowy właściciel może stworzyć mieszkanie idealnie odpowiadające swoim oczekiwaniom.
Budynek i otoczenie
- niski, 3-piętrowy blok
- zadbana klatka schodowa
- spokojne, zielone osiedle
- w sąsiedztwie sklepy, szkoły, przedszkola, punkty usługowe
- dobra komunikacja z centrum miasta
- liczne tereny zielone i place zabaw
- ogólnodostępne miejsca parkingowe przy budynku
Najważniejsze atuty nieruchomości
- duży metraż jak na mieszkanie 2-pokojowe
- osobna kuchnia
- balkon typu loggia
- dobre, wygodne piętro
- spokojna i dobrze skomunikowana lokalizacja
- świetna baza pod własną aranżację
- atrakcyjna opcja inwestycyjna
CENA NIERUCHOMOŚCI : 299 000 PLN - DO NEGOCJACJI
Strona Kupująca pokrywa wynagrodzenie prowizyjne dla biura.
Serdecznie zapraszam Państwa na prezentację nieruchomości, z przyjemnością odpowiem na wszelkie pytania oraz udzielę dodatkowych informacji.
Zamierzasz kupić nieruchomość i skorzystać z finansowania banku? Pomożemy dokonać Ci dobrego wyboru najlepszej oferty spośród wielu banków. Nasz doradca dostosuje ofertę kredytu hipotecznego do Twoich potrzeb i oczekiwań oraz będzie do Twojej dyspozycji na każdym etapie procesu kredytowego.
Niniejsza oferta nie stanowi oferty w rozumieniu Kodeksu Cywilnego, a dane w niej zawarte mają jedynie charakter informacyjny i mogą ulec zmianie.