Mieszkanie na sprzedaż













Szczegóły ogłoszenia
- Symbol oferty GRS-MS-3127
- Typ oferty mieszkanie na sprzedaż
- Cena 325 000 zł
- Charakterystyka mieszkania 50.16 m2, 2 pokoje
- Budynek kamienica; rok budowy: 1915
- Rozkład mieszkania 3p piętro
- Dojazd asfalt
- Okna PCV
- Otoczenie centrum miasta
- Stan lokalu bardzo dobry
- Umeblowanie umeblowane
Lokalizacja
- Adres pomorskie, Słupsk
Opis nieruchomości
Dwupokojowe mieszkanie gotowe do zamieszkania o powierzchni 50,16 m2 w centrum Słupska – przy ulicy Wolności!
Szukasz mieszkania w sercu miasta z widokiem na jego symbole i bliskością wszelkich udogodnień? Przedstawiamy dwupokojowe mieszkanie o powierzchni 50,16 m2, znajdujące się na trzecim piętrze w odrestaurowanej kamienicy przy ulicy Wolności w Słupsku.
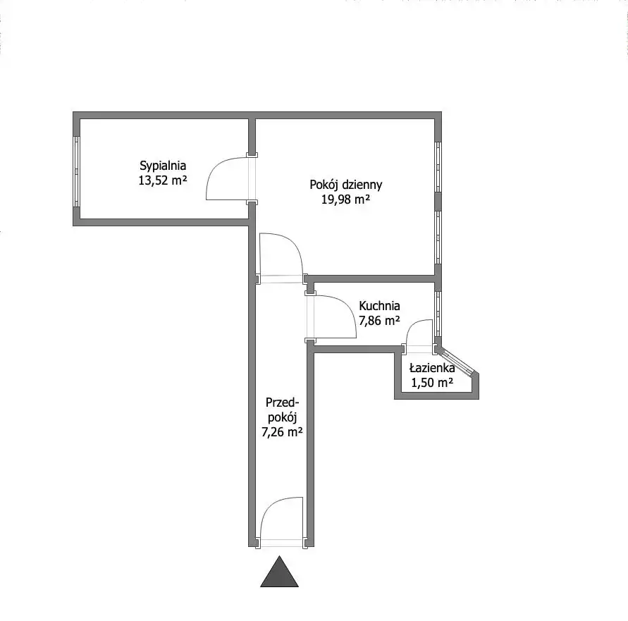
Układ pomieszczeń
Korytarz (7,26 m2),
Łazienka (1,50 m2),
Osobna kuchnia (7,86 m2),
Pokój dzienny (19,98 m2),
Sypialnia (13,52 m2).
Stan techniczny
Kamienica, w której znajduje się mieszkanie, została poddana termomodernizacji, co przekłada się na niższe koszty eksploatacji. Budynek zachował swój charakter, oferując jednocześnie nowoczesne rozwiązania energetyczne. Mieszkanie jest dobrze doświetlone dzięki dużym oknom, a układ pomieszczeń pozwala na wygodne zagospodarowanie przestrzeni.
Świetna inwestycja
Nieruchomość jest zadbana i gotowa do wprowadzenia - przytulne wnętrza aż się proszą o gorącą kawę i ulubiony serial po pracy. Neutralna kolorystyka i funkcjonalny układ pomieszczeń tworzą idealną przestrzeń zarówno do życia solo, we dwoje, jak i jako inwestycja na wynajem.
Lokalizacja - serce Słupska
Lokalizacja przy ulicy Wolności to jeden z największych atutów tej nieruchomości. Mieszkanie znajduje się w samym centrum miasta, co zapewnia szybki dostęp do najważniejszych punktów infrastruktury:
- sklepy, restauracje i kawiarnie w zasięgu spaceru,
- bliskość komunikacji miejskiej,
- zabytki, w tym ratusz i inne atrakcje turystyczne.
Dodatkowo w pobliżu znajdziemy szkoły, przedszkola, parki i miejsca rekreacji.
Dodatkowe informacje:
- forma własności - pełna własność, brak obciążeń w KW,
- czynsz na rzecz Wspólnoty Mieszkaniowej - 600 zł (centralne ogrzewanie, wynagrodzenie zarządcy, ścieki, koszty eksploatacji, wywóz nieczystości stałych, zimna woda, fundusz remontowy, sprzątanie otoczenia),
- ogrzewanie z sieci miejskiej,
- ciepła woda z bojlera elektrycznego,
- przynależna piwnica o pow. ok. 10 m2,
- przynależne pomieszczenie typu komórka lokatorska na półpiętrze,
- możliwość korzystania ze strychu,
- wszystkie okna PCV,
- mieszkanie dwustronne,
- możliwość parkowania samochodu od strony podwórka,
- kamienica odrestaurowana i docieplona,
- mieszkanie gotowe do zamieszkania.
Cena nieruchomości: 325 000 PLN
Strona Kupująca pokrywa wynagrodzenie prowizyjne dla biura.
Kontakt:
799 799 397 – Dominika Szramiak (opiekun oferty)
728 111 007 – Przemysław Pryzwan, licencja 31771
728 202 030 – Marta Patyna, licencja 31772
669 647 067 – Karolina Jakuczun
503 901 101 – Adrianna Iwanicka, licencja 23687
799 077 000 – Wiktoria Gołębiewska
799 333 633 – Dominika Wójcik
Serdecznie zapraszam Państwa na prezentację nieruchomości, z przyjemnością odpowiem na wszelkie pytania oraz udzielę dodatkowych informacji.
Zamierzasz kupić nieruchomość i skorzystać z finansowania banku? Pomożemy dokonać Ci dobrego wyboru najlepszej oferty spośród wielu banków. Nasz doradca dostosuje ofertę kredytu hipotecznego do Twoich potrzeb i oczekiwań oraz będzie do Twojej dyspozycji na każdym etapie procesu kredytowego.
Niniejsza oferta nie stanowi oferty w rozumieniu Kodeksu Cywilnego, a dane w niej zawarte mają jedynie charakter informacyjny i mogą ulec zmianie.