Mieszkanie na sprzedaż





















Szczegóły ogłoszenia
- Symbol oferty GRS-MS-3081
- Typ oferty mieszkanie na sprzedaż
- Cena 345 000 zł
- Charakterystyka mieszkania 47.66 m2, 2 pokoje
- Budynek blok; rok budowy: 1998
- Rozkład mieszkania 2p piętro
- Media Ogrzewanie: centralne; Woda: ciepła - miejska; Gaz: jest
- Balkon jest
- Dojazd kostka brukowa
- Instalacje dobre
- Okna PCV
- Otoczenie centrum miasta
- Stan lokalu bardzo dobry
Lokalizacja
- Adres pomorskie, Słupsk
Opis nieruchomości
Mieszkanie na sprzedaż – Słupsk, ul. Długosza (Osiedle Słowińskie)
2 pokoje + osobno kuchnia | 47,66 m² + piwnica (5,81m2) | II piętro | duży balkon | bardzo dobry stan | centrum| prywatny parking
Jeśli szukasz mieszkania, do którego możesz się wprowadzić od razu, bez dodatkowych kosztów, w świetnej i spokojnej lokalizacji blisko centrum – ta oferta jest idealna dla Ciebie. Przedstawiam komfortowe, świetnie zaplanowane i wyjątkowo zadbane mieszkanie na cenionym Osiedlu Słowińskim przy ulicy Długosza. Lokal położony jest na drugim piętrze w bloku z 1998 roku, na zadbanym, kameralnym osiedlu z prywatnym parkingiem tylko dla mieszkańców.
Mieszkanie jest dwustronne, słoneczne i dobrze rozplanowane – każdy metr został wykorzystany w przemyślany sposób. Już od wejścia czuć tu porządek i komfort. Wnętrze jest po odświeżeniu, utrzymane w jasnych, ponadczasowych barwach, dzięki czemu stanowi idealną bazę zarówno dla minimalistów, jak i osób lubiących bardziej wyrazisty styl.
Dużym atutem jest także wysokość pomieszczeń – aż 2,69 m, co daje poczucie wyjątkowej przestrzeni. Wchodząc przez podwójne drzwi, zyskujemy dodatkowe wyciszenie i bezpieczeństwo.
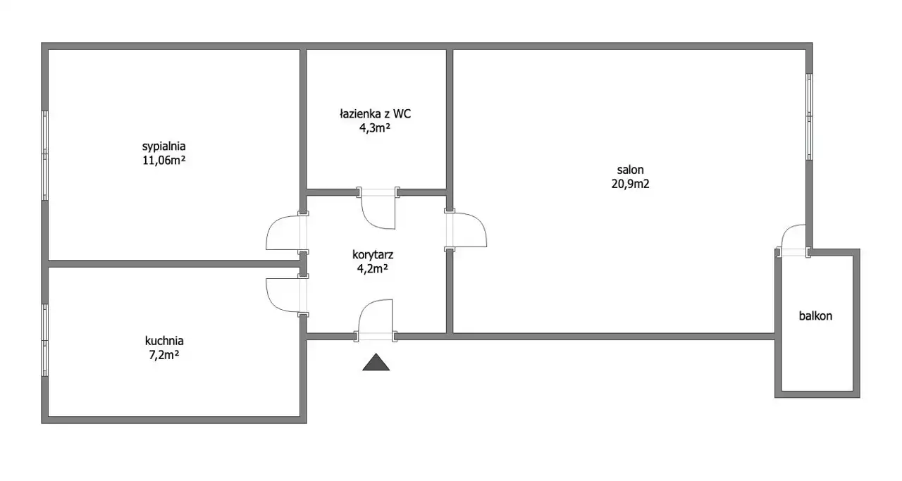
UKŁAD MIESZKANIA
Salon (20,9m2) z wyjściem na duży balkon to główne, jasne serce mieszkania. Znajduje się tu:
- komplet wysokiej jakości mebli,
- kanapa + dwa fotele,
- duży stół z czterema krzesłami,
- bezpośrednie wyjście na przestronny balkon, idealny na poranną kawę lub wieczorny odpoczynek.
Salon jest ustawny i pozwala na dowolną aranżację – idealny dla singla, pary lub rodziny.
Komfortowa, osobna kuchnia (7,2m2) to duży atut tej nieruchomości – kuchnia jest oddzielna, jasna i bardzo funkcjonalna. Wyposażono ją w:
- nową, białą zabudowę meblową,
- drewniany blat,
- nową kuchenkę gazową,
- dużą lodówkę,
- praktyczny stolik śniadaniowy.
Wygląda świeżo, nowocześnie i jest gotowa do codziennego użytkowania.
W sypialni (11,06m2) zadbano o maksymalne wykorzystanie przestrzeni. Wygospodarowano:
- rozkładaną kanapę,
- dużą szafę,
- funkcjonalną komodę.
Pomieszczenie jest idealne do odpoczynku, a jednocześnie bardzo pojemne.
W łazience(4,3m2) znajduje się:
- głęboka wanna, która pełni również funkcję prysznica,
- pralka,
- umywalka z szafkami,
- WC,
- pralka LG.
To przestrzeń czysta, zadbana i praktyczna.
Dodatkowe informacje techniczne:
- pow. użytkowa: 47,66 m² + piwnica (łącznie 53,47 m²)
- ogrzewanie i woda: miejskie
- okna PCV dwuszybowe
- nowa instalacja elektryczna
- na podłogach panele
- budynek z 1998 roku
- bardzo szeroka, zadbana klatka schodowa z domofonem
- niskie opłaty
- prywatny parking dla mieszkańców
- czynsz do Wspólnoty Mieszkaniowej 562,99 PLN
- do bloku doprowadzony światłowód
LOKALIZACJA – OSIEDLE SŁOWIŃSKIE
To jedno z najwygodniejszych miejsc do życia w Słupsku. Osiedle jest spokojne, zielone, zadbane, a jednocześnie praktycznie w centrum.
W najbliższej okolicy znajdują się:
- bulwary nad Słupią – idealne na spacery i aktywność,
- nowoczesna, stale modernizowana starówka,
- sklepy, szkoły, komunikacja miejska, punkty usługowe.
To lokalizacja, która ułatwia codzienne życie i pozwala oszczędzać czas – wszędzie jest blisko.
To mieszkanie jest idealne, jeśli szukasz:
- gotowego do wprowadzenia, zadbanego lokalu,
- świetnej lokalizacji blisko centrum,
- funkcjonalnego układu z osobną kuchnią,
- mieszkania inwestycyjnego pod wynajem,
- przestrzeni bez konieczności remontu.
Cena: 345 000 zł
Strona Kupująca pokrywa wynagrodzenie prowizyjne dla biura.
Więcej informacji uzyskasz kontaktując się z nami:
669 647 067 - Karolina Jakuczun (opiekun oferty)
799 333 633 - Dominika Wójcik
728 202 030 - Marta Patyna, licencja 31772
728 111 007 - Przemek Pryzwan, licencja 31771
503 901 101 - Adrianna Iwanicka, licencja 23687
799 799 397 - Dominika Szramiak
799 077 000 - Wiktoria Gołębiewska
Serdecznie zapraszam Państwa na prezentację nieruchomości, z przyjemnością odpowiem na wszelkie pytania oraz udzielę dodatkowych informacji.
Zamierzasz kupić nieruchomość i skorzystać z finansowania banku? Pomożemy dokonać Ci dobrego wyboru najlepszej oferty spośród wielu banków. Nasz doradca dostosuje ofertę kredytu hipotecznego do Twoich potrzeb i oczekiwań oraz będzie do Twojej dyspozycji na każdym etapie procesu kredytowego.
Niniejsza oferta nie stanowi oferty w rozumieniu Kodeksu Cywilnego, a dane w niej zawarte mają jedynie charakter informacyjny i mogą ulec zmianie.