Mieszkanie na sprzedaż











Szczegóły ogłoszenia
- Symbol oferty GRS-MS-3069
- Typ oferty mieszkanie na sprzedaż
- Cena 350 000 zł
- Charakterystyka mieszkania 43.69 m2, 2 pokoje
- Budynek blok; rok budowy: 1968
- Rozkład mieszkania 4p piętro
- Balkon jest
- Dojazd asfalt
- Okna PCV
- Otoczenie centrum miasta
- Stan lokalu bardzo dobry
- Umeblowanie umeblowane
Lokalizacja
- Adres pomorskie, Słupsk
Opis nieruchomości
Proponujemy do sprzedaży atrakcyjne, dwupokojowe mieszkanie z balkonem w centrum miasta przy ulicy Mikołajskiej w Słupsku!
Lokal mieszkalny usytuowany na czwartym piętrze budynku zlokalizowanego przy ulicy Mikołajskiej w samym centrum miasta. Do mieszkania dostaniemy się z czystej i zadbanej klatki schodowej, wyposażonej w domofon. Przed budynkiem znajdują się miejsca parkingowe dla mieszkańców.
Mieszkanie jest dwustronne, słoneczne i dobrze rozplanowane – każdy metr został wykorzystany w przemyślany sposób. Już od wejścia czuć tu porządek i komfort. Wnętrze jest po odświeżeniu, utrzymane w jasnych barwach, dzięki czemu stanowi idealną bazę zarówno dla minimalistów, jak i osób lubiących bardziej wyrazisty styl.
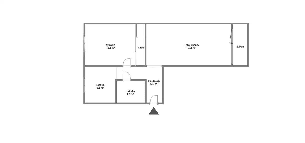
Układ mieszkania
Mieszkanie to powierzchnia użytkowa 43,69 m2, na którą składa się:
- jasny i przestronny pokój z wyjściem na balkon, z którego rozpościera się piękny widok na park oraz bulwary nad rzeką Słupią. Duże okna zapewniają piękne doświetlenie i widok na zieleń parku,
- sypialnia z dużą szafą w zabudowie, w której możemy przechować wszystkie niezbędne rzeczy,
- osobna kuchnia z meblami, piekarnikiem, okapem, zlewem, kuchenką gazową,
- łazienka z toaletą, wanną, umywalką,
- przedpokój.
Idealna lokalizacja
Mieszkanie jest niezwykle ustawne, pięknie doświetlone i nasłonecznione. W pobliżu znajdziemy pełne zaplecze handlowo-usługowe, wszystko w zasięgu ręki - przystanek MZK, sklepy, apteka, przychodnie, szkoły, przedszkole a także żłobek miejski.
To mieszkanie jest idealne, jeśli szukasz:
- gotowego do wprowadzenia, zadbanego lokalu,
- świetnej lokalizacji blisko centrum,
- funkcjonalnego układu z osobną kuchnią,
- mieszkania inwestycyjnego pod wynajem,
- przestrzeni bez konieczności remontu.
Dodatkowe informacje:
- stan prawny: pełna własność,
- ekspozycja mieszkania wschód-zachód,
- ogrzewanie z sieci miejskiej,
- ciepła woda z pieca gazowego,
- wszystkie okna PCV,
- balkon z widokiem,
- piwnica,
- miejsca parkingowe dla mieszkańców przed budynkiem,
- czynsz do Wspólnoty Mieszkaniowej ok. 570 zł/3 osoby,
- budynek z 1968r.,
- budynek jest ocieplony.
Cena nieruchomości: 350 000 PLN
Strona Kupująca pokrywa wynagrodzenie prowizyjne dla biura.
Więcej informacji uzyskasz kontaktując się z nami:
799 799 397 - Dominika Szramiak
503 901 101 - Adrianna Iwanicka
728 111 007 - Przemek Pryzwan
728 202 030 - Marta Patyna
799 077 000 - Wiktoria Gołębiewska
669 647 067 - Karolina Jakuczun
799 333 633 - Dominika Wójcik
Serdecznie zapraszam Państwa na prezentację nieruchomości, z przyjemnością odpowiem na wszelkie pytania oraz udzielę dodatkowych informacji.
Zamierzasz kupić nieruchomość i skorzystać z finansowania banku? Pomożemy dokonać Ci dobrego wyboru najlepszej oferty spośród wielu banków. Nasz doradca dostosuje ofertę kredytu hipotecznego do Twoich potrzeb i oczekiwań oraz będzie do Twojej dyspozycji na każdym etapie procesu kredytowego.
Niniejsza oferta nie stanowi oferty w rozumieniu Kodeksu Cywilnego, a dane w niej zawarte mają jedynie charakter informacyjny i mogą ulec zmianie.