Mieszkanie na sprzedaż



















Szczegóły ogłoszenia
- Symbol oferty GRS-MS-3099
- Typ oferty mieszkanie na sprzedaż
- Cena 380 000 zł
- Charakterystyka mieszkania 84.63 m2, 2 pokoje
- Budynek kamienica; rok budowy: 1930
- Rozkład mieszkania 2p piętro
- Dojazd asfalt
- Okna PCV
- Otoczenie działki zabudowane
- Stan lokalu bardzo dobry
- Umeblowanie umeblowane
Lokalizacja
- Adres pomorskie, Słupsk
Opis nieruchomości
Proponujemy do sprzedaży 2-pokojowe mieszkanie na 2 piętrze o powierzchni całkowitej 84,63 m2 przy ulicy Grottgera w Słupsku!
Lokal mieszkalny znajduje się w doskonałej lokalizacji – blisko wszystkich niezbędnych punktów usługowych i komunikacyjnych. Mieszkanie znajduje się na 2 piętrze odrestaurowanej, docieplonej kamienicy przy ulicy Grottgera w Słupsku. To wyjątkowa propozycja zarówno dla inwestorów, jak i osób poszukujących komfortowego miejsca do życia – zarówno starszych, jak i młodszych mieszkańców.
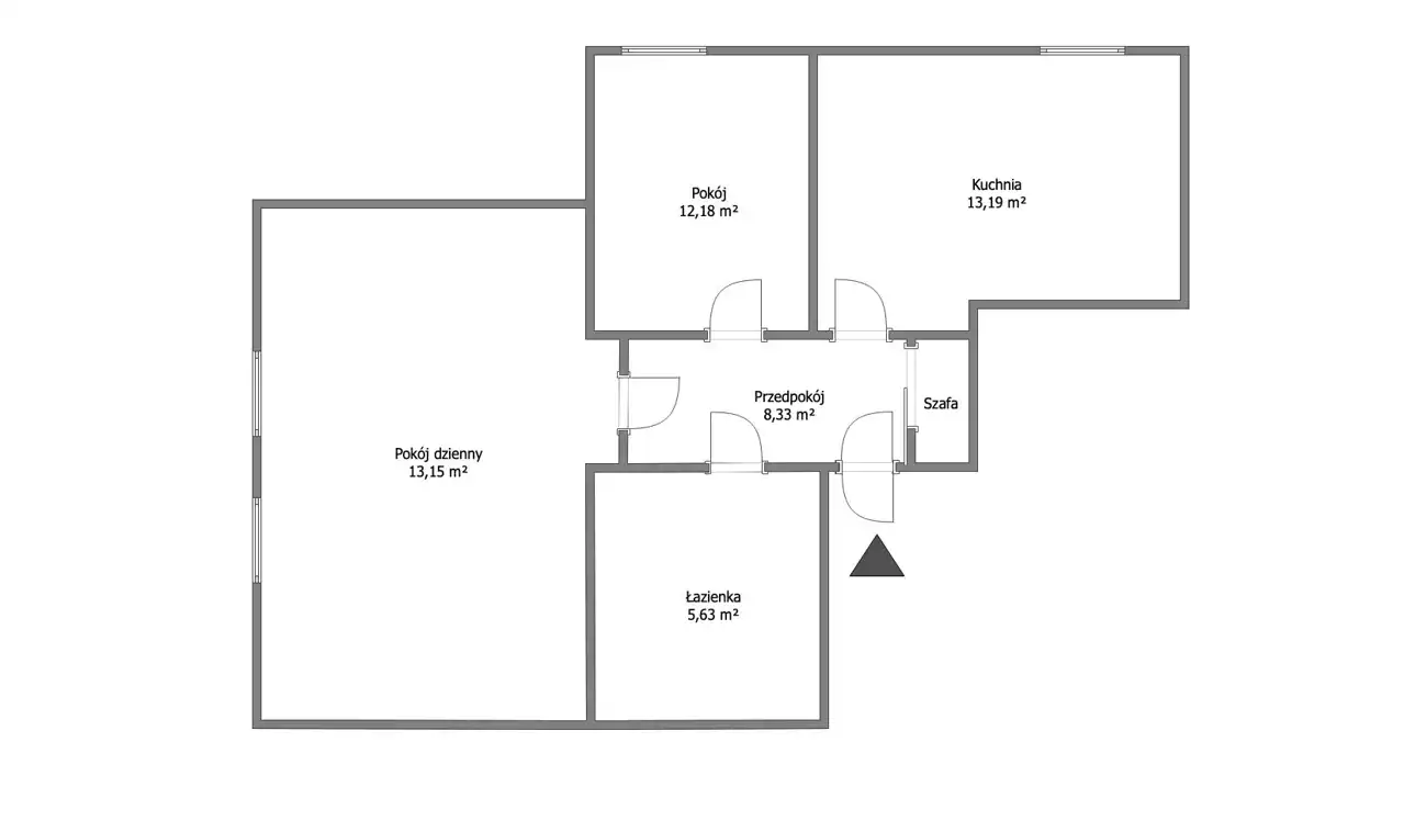
Mieszkanie to powierzchnia użytkowa 52,48 m2, na którą składa się:
- przedpokój 8,33 m2
- łazienka 5,63 m2
- kuchnia 13,19 m2
- pokój dzienny 13,15 m2
- pokój 12,18 m2
Mieszkanie z klimatem na poddaszu – wyjątkowe wnętrze z charakterem
To mieszkanie na poddaszu ma niepowtarzalną atmosferę, którą czuć od pierwszego kroku. Skosy w salonie i łazience nadają wnętrzu przytulności, a wyeksponowane belki podkreślają jego unikalny styl. W salonie uwagę przyciąga także fragment ściany z oryginalnej czerwonej cegły, który dodaje całości loftowego uroku i elegancji. To idealna propozycja dla osób, które szukają nieruchomości z duszą — innej niż wszystkie.
Świetna lokalizacja
Mieszkanie położone jest w bardzo dogodnej lokalizacji, w spokojnej okolicy z łatwym dostępem do wszelkich udogodnień. W pobliżu znajdują się liczne sklepy, takie jak Biedronka, Żabka co znacząco ułatwia codzienne zakupy. W okolicy dostępne są również apteki, piekarnie, punkty usługowe oraz lokale gastronomiczne. Dodatkowym atutem tej lokalizacji jest bliskość przystanków autobusowych, które gwarantują wygodne połączenie z centrum miasta oraz innymi dzielnicami. W okolicy funkcjonuje Szkoła Muzyczna oraz Szkoła Podstawowa.
Osoby aktywnie spędzające czas mogą korzystać z pobliskich parków oraz ścieżek rowerowych, które stanowią idealne miejsce na rekreacyjne przejażdżki i spacery. Mieszkanie znajduje się w zadbanej kamienicy z czystą klatką schodową oraz spokojnym sąsiedztwem. Budynek jest dobrze utrzymany, a w pobliżu znajdują się liczne miejsca parkingowe dostępne dla mieszkańców.
Dodatkowe informacje:
- status prawny – pełna własność, brak obciążeń w KW,
- czynsz do Wspólnoty Mieszkaniowej 1100 zł/3 osoby,
- przynależne pomieszczenie na strychu ok. 5m2,
- ogrzewanie oraz ciepła woda z sieci miejskiej,
- mieszkanie szczytowe,
- miejsca parkingowe ogólnodostępne,
- wszystkie okna PCV,
- spokojne osiedle.
Cena nieruchomości: 380 000 PLN
Strona Kupująca pokrywa wynagrodzenie prowizyjne dla biura.
Więcej informacji uzyskasz kontaktując się z nami:
799 799 397 – Dominika Szramiak (opiekun oferty)
728 20 20 30 – Marta Patyna, licencja 31772
669 647 067 – Karolina Jakuczun
503 901 101 – Adrianna Iwanicka, licencja 23687
799 333 633 – Dominika Wójcik
799 077 000 – Wiktoria Gołębiewska
728 111 007 – Przemysław Pryzwan, licencja 31771
Serdecznie zapraszam Państwa na prezentację nieruchomości, z przyjemnością odpowiem na wszelkie pytania oraz udzielę dodatkowych informacji.
Zamierzasz kupić nieruchomość i skorzystać z finansowania banku? Pomożemy dokonać Ci dobrego wyboru najlepszej oferty spośród wielu banków. Nasz doradca dostosuje ofertę kredytu hipotecznego do Twoich potrzeb i oczekiwań oraz będzie do Twojej dyspozycji na każdym etapie procesu kredytowego.
Niniejsza oferta nie stanowi oferty w rozumieniu Kodeksu Cywilnego, a dane w niej zawarte mają jedynie charakter informacyjny i mogą ulec zmianie.