Mieszkanie na sprzedaż















Szczegóły ogłoszenia
- Symbol oferty GRS-MS-3043
- Typ oferty mieszkanie na sprzedaż
- Cena 389 000 zł
- Charakterystyka mieszkania 61.89 m2, 3 pokoje
- Budynek blok; rok budowy: 1991
- Rozkład mieszkania parter piętro
- Balkon jest
- Dojazd asfalt
- Okna PCV
- Otoczenie osiedle
- Stan lokalu do remontu
- Umeblowanie częściowo umeblowane
Lokalizacja
- Adres pomorskie, Słupsk
Opis nieruchomości
Proponujemy do sprzedaży trzypokojowe mieszkanie o powierzchni 61,89 m2 na parterze z dużym balkonem przy ulicy Kotarbińskiego w Słupsku!
Lokal mieszkalny usytuowany na parterze, czteropiętrowego bloku w idealnej lokalizacji – przy ulicy Kotarbińskiego w Słupsku. Mieszkanie znajduje się w estetycznym kompleksie osiedlowym, pośród terenów zielonych w pobliżu, którego znajdują się liczne sklepy i punkty usługowe. Drzwi wejściowe na klatkę schodową zabezpieczone domofonem. Do mieszkania przynależy piwnica. Ogólnodostępne miejsca parkingowe wokół budynku.
Układ mieszkania
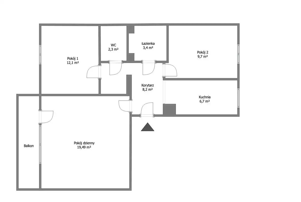
Mieszkanie to powierzchnia 61,89 m2, na którą składa się:
- pokój dzienny (19,49m2) z wyjściem na balkon,
- pokój 1 (12,1m2),
- pokój 2 (9,7m2),
- kuchnia (6,7m2),
- łazienka (3,4m2),
- WC (2,3 m2)
- przedpokój (8,2m2).
Do mieszkania przedostajemy się z czystej klatki schodowej. W korytarzu znajduje się pakowna szafa, na podłodze kafelki. Do dyspozycji 3 pokoje, z największego wyjście na duży balkon, to bardzo ustawne pomieszczenie, idealnie spełniające swoją funkcję. W pokoju dziennym na podłodze panele zwieńczone listwami. W oknach zamontowano rolety. Kuchnia z widokiem na piękny, zielony park. Wyposażona w podstawową zabudowę kuchenną wraz ze sprzętem tj.: kuchenka gazowa, piekarnik oraz okap kuchenny. W pozostałych pokojach na podłogach znajdują się panele. Łazienka oraz WC wyłożona glazurą i terakotą, wyposażona w wannę, szafkę z umywalką oraz toaletę. Mieszkanie częściowo umeblowane.
Idealna lokalizacja dla rodzin – Osiedle Niepodległości
Osiedle Niepodległości, na którym znajduje się mieszkanie, jest dobrze skomunikowane z resztą miasta, co gwarantuje komfortowy dojazd do różnych części Słupska. W odległości kilkunastu minut spacerem znajduje się Centrum Handlowe Jantar, które oferuje wiele punktów usługowych, sklepów i restauracji. Dodatkowym atutem jest obecność kina, które zapewnia doskonałą rozrywkę dla całej rodziny. Dla miłośników sportu nieopodal mieszkania znajdują się również boiska, zapewniając miejsce do aktywnego spędzania wolnego czasu. Obecnie Osiedle Niepodległości uznawane jest za jedno z najbardziej pożądanych osiedli w Słupsku.
Dodatkowe informacje:
- stan prawny – pełna własność,
- mieszkanie do remontu,
- mieszkanie dwustronne,
- mieszkanie w pełni rozkładowe,
- czynsz na rzecz Spółdzielni Mieszkaniowej „Kolejarz” – ok. 640 zł/4 osoby (ciepła i zimna woda, ogrzewanie, fundusz remontowy, wywóz nieczystości, sprzątanie klatek, wynagrodzenie zarządcy, eksploatacja),
- ogrzewanie oraz ciepła woda z sieci miejskiej,
- wszystkie okna PCV,
- przynależna do mieszkania piwnica,
- ogólnodostępne miejsca parkingowe wokół budynku,
- ekspozycja lokalu: wschód-zachód,
- budynek zabezpieczony domofonem.
Cena nieruchomości: 389 000 PLN
Strona Kupująca pokrywa wynagrodzenie prowizyjne dla biura.
Więcej informacji uzyskasz kontaktując się z nami:
728 111 007 – Przemek Pryzwan (opiekun oferty)
799 799 397 – Dominika Szramiak
503 901 101 – Adrianna Iwanicka
669 647 067 – Karolina Jakuczun
728 202 030 – Marta Patyna
799 077 000 – Wiktoria Gołębiewska
799 333 633 – Dominika Wójcik
Więcej zdjęć znajdziecie Państwo na Naszej stronie:
www.gryfnieruchomosci.pl
Serdecznie zapraszam Państwa na prezentację nieruchomości, z przyjemnością odpowiem na wszelkie pytania oraz udzielę dodatkowych informacji.
Zamierzasz kupić nieruchomość i skorzystać z finansowania banku? Pomożemy dokonać Ci dobrego wyboru najlepszej oferty spośród wielu banków. Nasz doradca dostosuje ofertę kredytu hipotecznego do Twoich potrzeb i oczekiwań oraz będzie do Twojej dyspozycji na każdym etapie procesu kredytowego.
Niniejsza oferta nie stanowi oferty w rozumieniu Kodeksu Cywilnego, a dane w niej zawarte mają jedynie charakter informacyjny i mogą ulec zmianie.