Mieszkanie na sprzedaż





















Szczegóły ogłoszenia
- Symbol oferty GRS-MS-3122
- Typ oferty mieszkanie na sprzedaż
- Cena 399 000 zł
- Charakterystyka mieszkania 61.63 m2, 3 pokoje
- Budynek rok budowy: 1993
- Rozkład mieszkania 3p piętro
- Media Woda: ciepła - miejska
- Balkon jest
- Garaż garaż
- Instalacje dobre
- Okna PCV
- Otoczenie centrum miasta
- Stan lokalu bardzo dobry
Lokalizacja
- Adres pomorskie, Słupsk
Opis nieruchomości
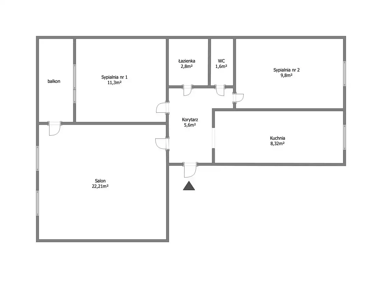
PROPONUJEMY NA SPRZEDAŻ PRZESTRONNE 3-POKOJOWE MIESZKANIE O POWIERZCHNI 61,63 m² POŁOŻONE NA III PIĘTRZE W CENTRUM MIASTA PRZY UL. KOŁŁĄTAJA!
Oferujemy na sprzedaż jasne, dwustronne i bardzo funkcjonalne mieszkanie o powierzchni 61,63 m², położone na trzecim piętrze w budynku z 1993 roku. Nieruchomość znajduje się w doskonałej lokalizacji – w samym centrum miasta, z pełną infrastrukturą w zasięgu ręki.
Mieszkanie jest bardzo dobrze doświetlone dzięki dwustronnej ekspozycji oraz dużym oknom PCV, które zapewniają naturalne światło przez cały dzień. Dodatkowym atutem jest przestronna loggia, idealna do wypoczynku.
W skład mieszkania wchodzi:
- przestronny, ustawny salon z wyjściem na dużą loggię,
- dwie niezależne sypialnie,
- osobna, funkcjonalna kuchnia,
- łazienka,
- oddzielne WC,
- przedpokój.
Do mieszkania przynależy piwnica, która zapewnia dodatkowe miejsce do przechowywania.
Budynek jest na bieżąco administrowany, wykonano remont dachu oraz balkonów. W planach na przyszłość jest wykonanie nowej elewacji wraz z dociepleniem budynku, co dodatkowo podniesie standard oraz komfort mieszkańców.
Czynsz do administracji wynosi około 650 zł miesięcznie (zależny od zużycia mediów).
W mieszkaniu wykonana została instalacja miedziana. Przed budynkiem oraz z jego tyłu dostępne są ogólnodostępne miejsca parkingowe dla mieszkańców.
Istnieje możliwość zakupu murowanego garażu w cenie 50 000 PLN – idealne rozwiązanie dla osób poszukujących dodatkowego komfortu i bezpieczeństwa dla swojego samochodu.
Lokalizacja – ścisłe centrum miasta:
Nieruchomość położona jest w bardzo atrakcyjnej i wygodnej części miasta. W pobliżu znajdują się:
- Kaufland,
- dworzec PKS i PKP,
- przychodnia lekarska,
- liczne sklepy, punkty usługowe i gastronomiczne,
- szkoły, przedszkola oraz komunikacja miejska.
To idealna propozycja dla rodzin, par oraz osób ceniących komfort życia w centrum miasta z łatwym dostępem do wszystkich udogodnień.
CENA: 399 000 PLN
Strona Kupująca pokrywa wynagrodzenie prowizyjne dla biura.
Więcej informacji uzyskasz kontaktując się z nami:
669 647 067 – Karolina Jakuczun (opiekun oferty)
728 202 030 – Marta Patyna
503 901 101 – Adrianna Iwanicka, licencja 23687
728 111 007 – Przemek Pryzwan
799 799 397 – Dominika Szramiak
799 333 633 - Dominika Wójcik
Serdecznie zapraszam Państwa na prezentację nieruchomości, z przyjemnością odpowiem na wszelkie pytania oraz udzielę dodatkowych informacji.
Zamierzasz kupić nieruchomość i skorzystać z finansowania banku? Pomożemy dokonać Ci dobrego wyboru najlepszej oferty spośród wielu banków. Nasz doradca dostosuje ofertę kredytu hipotecznego do Twoich potrzeb i oczekiwań oraz będzie do Twojej dyspozycji na każdym etapie procesu kredytowego.
Niniejsza oferta nie stanowi oferty w rozumieniu Kodeksu Cywilnego, a dane w niej zawarte mają jedynie charakter informacyjny i mogą ulec zmianie.