Mieszkanie na sprzedaż












Szczegóły ogłoszenia
- Symbol oferty GRS-MS-3050
- Typ oferty mieszkanie na sprzedaż
- Cena 439 000 zł
- Charakterystyka mieszkania 57.2 m2, 4 pokoje
- Rozkład mieszkania 2p piętro
- Media Ogrzewanie: miejskie; Woda: ciepła - miejska; Gaz: jest
- Balkon jest
- Czynsz Czynsz letni: 850 zł
- Dojazd asfalt
- Instalacje dobre
- Okna PCV
- Otoczenie bloki
- Stan lokalu bardzo dobry
- Umeblowanie nieumeblowane
Lokalizacja
- Adres pomorskie, Słupsk
Opis nieruchomości
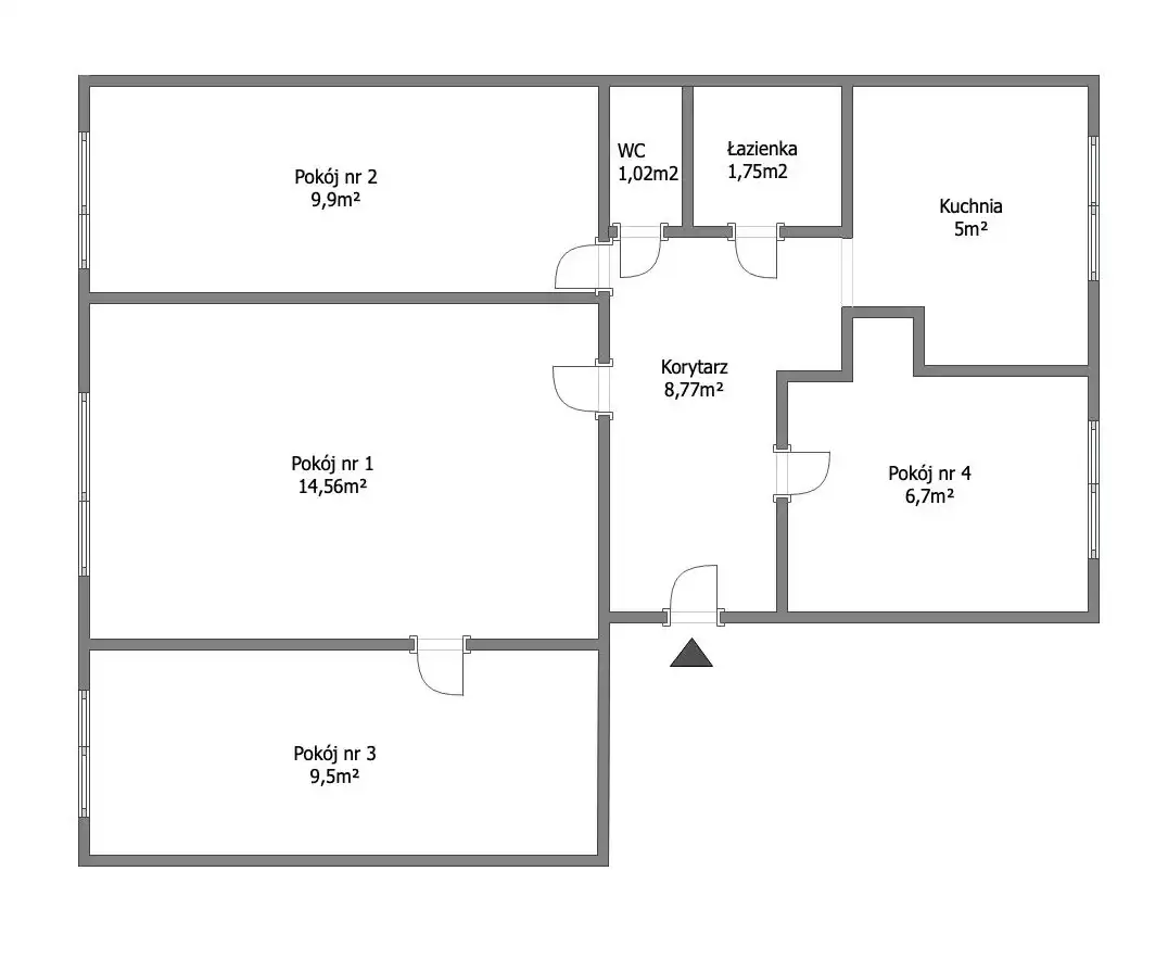
NA SPRZEDAŻ – 4-POKOJOWE MIESZKANIE, 57,20 m² | 2 PIĘTRO | BALKON | OSIEDLE PIASTÓW – UL. KOSZALIŃSKA, SŁUPSK
Na sprzedaż oferuję przestronne, funkcjonalne i dobrze doświetlone mieszkanie o powierzchni 57,20 m², zlokalizowane na 2. piętrze w zadbanym budynku na cenionym Osiedlu Piastów. To lokal, który świetnie sprawdzi się zarówno dla rodziny, jak i inwestora poszukującego mieszkania z dużym potencjałem.
UKŁAD MIESZKANIA
- cztery niezależne, ustawne pokoje,
- osobna, widna kuchnia,
- łazienka,
- osobne WC,
- przestronny przedpokój,
- balkon,
- piwnica przynależna do lokalu.
Rozkład zapewnia pełną funkcjonalność – każdy pokój stanowi oddzielną przestrzeń, co daje wiele możliwości aranżacyjnych.
STANDARD I INFORMACJE TECHNICZNE
- podłogi w panelach,
- ściany pokryte gładzią,
- okna PCV,
- kaloryfery żeliwne,
- nowa skrzynka elektryczna,
- ogrzewanie oraz ciepła woda z sieci miejskiej,
- kuchnia i łazienka wymagające odświeżenia.
Lokal utrzymany w dobrym stanie, z dużym potencjałem do stworzenia wnętrza zgodnego z własnym stylem.
Mieszkanie spółdzielczo-własnościowe, co umożliwia zakup również cudzoziemcom bez konieczności uzyskania zgody MSWiA.
Czynsz administracyjny przy 3 osobach wynosi ok. 850 zł.
Prąd i gaz rozliczane według zużycia.
LOKALIZACJA – OSIEDLE PIASTÓW
Osiedle zapewnia pełen komfort codziennego życia:
- plac zabaw bezpośrednio przed budynkiem,
- miejsca parkingowe pod blokiem,
- w bliskiej odległości Galeria Jantar, E.Leclerc, McDonald’s,
- w sąsiedztwie szkoły, przedszkola i żłobki,
- sklepy, usługi i tereny zielone w zasięgu kilku minut,
- bardzo dobra komunikacja – szybki dojazd do centrum i innych części miasta,
- przystanki autobusowe tuż obok.
To wygodne i rodzinne miejsce do zamieszkania.
PODSUMOWANIE
4-pokojowe, rozkładowe mieszkanie z balkonem, dużą piwnicą i miejskim ogrzewaniem, zlokalizowane na popularnym Osiedlu Piastów. Doskonałe dla rodzin, osób pracujących z domu oraz inwestorów poszukujących pewnej lokaty kapitału.
Mieszkanie jest aktualnie wynajmowane do końca lutego.
Możliwa prezentacja mieszkania w trakcie obowiązywania najmu.
Zdjęcia dostępne po kontakcie z pośrednikiem.
Cena: 439 000 zł
Strona Kupująca pokrywa wynagrodzenie prowizyjne dla biura.
Więcej informacji uzyskasz kontaktując się z nami:
669 647 067 - Karolina Jakuczun (opiekun oferty)
799 333 633 - Dominika Wójcik
728 202 030 - Marta Patyna, licencja 31772
728 111 007 - Przemek Pryzwan, licencja 31771
503 901 101 - Adrianna Iwanicka, licencja 23687
799 799 397 - Dominika Szramiak
799 077 000 - Wiktoria Gołębiewska
Serdecznie zapraszam Państwa na prezentację nieruchomości, z przyjemnością odpowiem na wszelkie pytania oraz udzielę dodatkowych informacji.
Zamierzasz kupić nieruchomość i skorzystać z finansowania banku? Pomożemy dokonać Ci dobrego wyboru najlepszej oferty spośród wielu banków. Nasz doradca dostosuje ofertę kredytu hipotecznego do Twoich potrzeb i oczekiwań oraz będzie do Twojej dyspozycji na każdym etapie procesu kredytowego.
Niniejsza oferta nie stanowi oferty w rozumieniu Kodeksu Cywilnego, a dane w niej zawarte mają jedynie charakter informacyjny i mogą ulec zmianie.