Mieszkanie na sprzedaż












Szczegóły ogłoszenia
- Symbol oferty NHM-MS-36640
- Typ oferty mieszkanie na sprzedaż
- Cena 565 000 zł
- Charakterystyka mieszkania 66.66 m2, 4 pokoje
- Budynek szeregowiec; rok budowy: 2025
- Rozkład mieszkania parter piętro
- Media Ogrzewanie: pompa ciepła; Woda: jest; Gaz: brak
- Dojazd asfalt
- Garaż miejsce parkingowe przy budynku
- Ilość sypialni 3
- Instalacje nowe
- Okna PCV
- Otoczenie zabudowa jednorodzinna
- Stan lokalu deweloperski
- Technologia budowlana beton komórkowy
Lokalizacja
- Adres dolnośląskie, średzki, Środa Śląska
Opis nieruchomości
OFERTA BEZ PCC I PROWIZJI DLA BIURA
Nowe mieszkanie z tarasem i ogrodem – Środa Śląska, ul. Kolejowa
Na sprzedaż mieszkanie o powierzchni 63,83 m², położone na parterze nowoczesnego budynku w zabudowie szeregowej.
Do lokalu przynależy miejsce postojowe, przestronny taras (13 m²) oraz ogrodzony ogródek o powierzchni od 118 m² do 267 m² – idealny na rodzinny wypoczynek czy własną aranżację zielonej przestrzeni.
Atuty nieruchomości:
-
Niezależne wejście z zewnątrz – komfort i prywatność.
-
Taras i własny ogród – świetne miejsce do relaksu.
-
Funkcjonalny układ – 3 pokoje + salon.
-
Nowoczesne instalacje – internet, RTV, telefoniczna, siła w kuchni.
-
Ogrzewanie podłogowe z pompą ciepła – energooszczędność i wygoda.
-
Miejsce postojowe tuż przed budynkiem.
Lokalizacja:
To propozycja dla rodzin i osób, które cenią bliskość natury, a jednocześnie chcą mieć szybki dostęp do miasta.
W okolicy znajdują się:
-
stacja kolejowa Środa Śląska – szybki dojazd do Wrocławia i Legnicy,
-
akwen rekreacyjny „Kajaki”,
-
Aquapark oraz infrastruktura handlowo-usługowa.
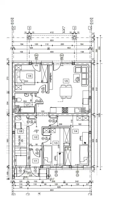
Charakterystyka lokalu:
-
Pokój dzienny z aneksem kuchennym – 19,26 m²
-
Pokój – 12,13 m²
-
Pokój – 8,84 m²
-
Pokój – 8,68 m²
-
Przedpokój – 7,77 m²
-
Łazienka – 3,66 m²
-
Wiatrołap – 1,91 m²
-
Pomieszczenie gospodarcze – 1,58 m² (4,4 m² po podłodze)
Termin oddania: IV kwartał 2026 r.
Mieszkania dostępne w trzech konfiguracjach:
-
Parterowe mieszkanie z ogródkiem
-
Mieszkanie na piętrze z balkonem
-
Mieszkanie na piętrze z balkonem i ogródkiem
Serdecznie zapraszam do kontaktu.
Justyna Molińska
Tel. 884 707 325
E-mail: justyna.m@n-home.pl
Przy zakupie oferuję pomoc w uzyskaniu finansowania na zakup nieruchomości oraz dodatkowe korzyści!
Oferuję szereg innych usług związanych z rynkiem nieruchomości. Zapraszam do współpracy z naszym biurem.
Prezentowana oferta nie stanowi oferty handlowej w rozumieniu Art. 66 par. 1 Kodeksu Cywilnego, a dane w niej zawarte mają charakter jedynie informacyjny i mogą ulec zmianie