Działka na sprzedaż
144 900 zł
805 m2














1 / 14
Szczegóły ogłoszenia
- Symbol oferty PSS-GS-1981
- Typ oferty działka na sprzedaż
- Cena 144 900 zł
- Charakterystyka mieszkania 805 m2
Lokalizacja
- Adres dolnośląskie, Strzegom
Opis nieruchomości
DZIAŁKI POD ZABUDOWĘ MIESZKANIOWĄ JEDNORODZINNĄ W DWÓCH LOKALIZACJACH - BLISKO CENTRUM ORAZ NA OBRZEŻACH STRZEGOMIA. DZIAŁKA BLIŻEJ CENTRUM POSIADA DODATKOWO FUNKCJĘ MIESZKANIOWĄ WIELORODZINNĄ. CENA 180 ZŁ/M2.
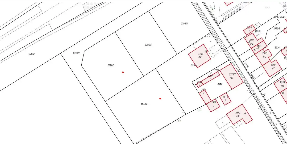
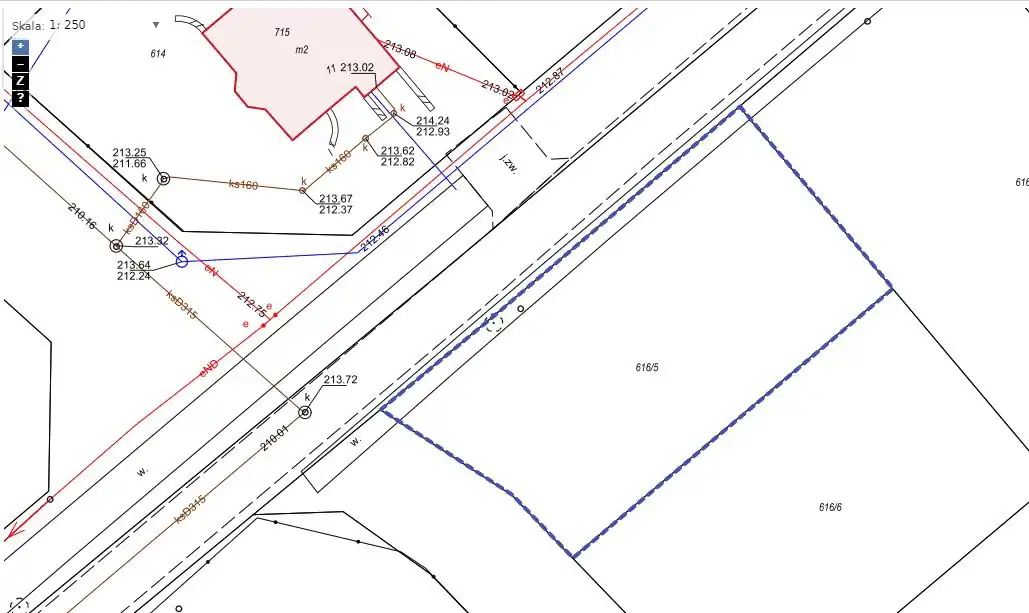
Do sprzedania działki pod zabudowę jednorodzinną oraz wielorodzinną o pow, 1357 m2 oraz 1804 m2 położone są blisko centrum Strzegomia i posiadają dostęp do sieci wodociągowej oraz kanalizacyjnej blisko granicy działek. Dojazd drogą asfaltową.
Kolejne działki usytuowane na obrzeżach Strzegomia przeznaczone są w miejscowym planie zagospodarowania przestrzennego pod zabudowę jednorodzinną o pow. 800 m2, 801 m2, 1088, 1091 m2. Dostępne media: sieć kanalizacyjna do pierwszej z działek około 20 m. Sieć wodociągowa oraz kanalizacyjna wymaga wykonania.
Do sprzedania działki pod zabudowę jednorodzinną oraz wielorodzinną o pow, 1357 m2 oraz 1804 m2 położone są blisko centrum Strzegomia i posiadają dostęp do sieci wodociągowej oraz kanalizacyjnej blisko granicy działek. Dojazd drogą asfaltową.
Kolejne działki usytuowane na obrzeżach Strzegomia przeznaczone są w miejscowym planie zagospodarowania przestrzennego pod zabudowę jednorodzinną o pow. 800 m2, 801 m2, 1088, 1091 m2. Dostępne media: sieć kanalizacyjna do pierwszej z działek około 20 m. Sieć wodociągowa oraz kanalizacyjna wymaga wykonania.
Nota prawna
Opis oferty zawarty na stronie internetowej sporządzany jest na podstawie oględzin nieruchomości oraz informacji uzyskanych od właściciela, może podlegać aktualizacji i nie stanowi oferty określonej w art. 66 i następnych K.C.
Kalkulator kredytowy
Formularz kontaktowy