Działka na sprzedaż
435 000 zł
607 m2






1 / 6
Szczegóły ogłoszenia
- Symbol oferty PSS-GS-2047
- Typ oferty działka na sprzedaż
- Cena 435 000 zł
- Charakterystyka mieszkania 607 m2
- Media Woda: tak; Kanalizacja: w ulicy; Prąd: w ulicy
Lokalizacja
- Adres dolnośląskie, Strzegom
Opis nieruchomości
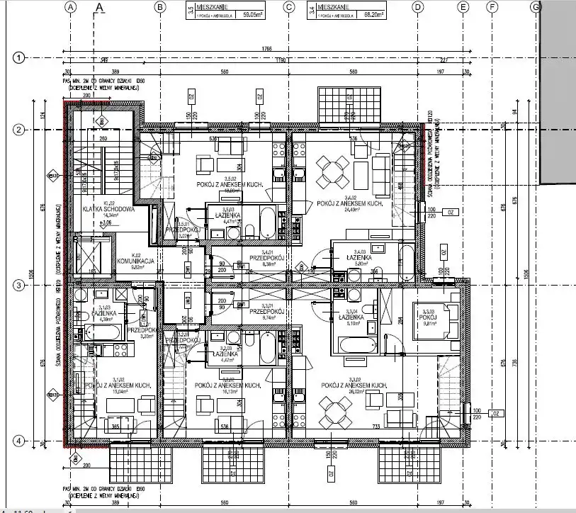
ATRAKCYJNA DZIAŁKA POD ZABUDOWĘ WIELORODZINNĄ Z PROJEKTEM ORAZ POZWOLENIEM NA BUDOWĘ. Działka o pow 607 m2 przeznaczona jest w miejscowym planie zagospodarowania przestrzennego pod zabudowę mieszkaniową wielorodzinną położona blisko Rynku w Strzegomiu (ul. Parkowa) posiada pozwolenie na budowę budynku czterekondygnacyjnego (trzy kondygnacje nadziemne oraz garaż podziemny) składającego się z 11 lokali mieszkalnych. Powierzchnia całkowita budynku to 1119 m2 (pow całkow. kondygnacji podziemnych 402 m2, pow. całkow. kondygnacji nadziemnych to 717 m2), a wysokość zaprojektowanego budynku to 12,49 m2. Sieci bezpośrednio w drodze przy działce. W pobliżu znajdują się przedszkole oraz ścisłe centrum miasta.
Więcej szczegółów zdjęć oraz ofert nieruchomości w Strzegomiu oraz gminie na stronie biura nieruchomości Possessio, ul. Witosa 9, Strzegom.
Oferujemy wsparcie, bezpieczeństwo i doradztwo w pośrednictwie nieruchomościami oraz darmową i skuteczną pomoc w uzyskaniu atrakcyjnych warunków kredytu
Więcej szczegółów zdjęć oraz ofert nieruchomości w Strzegomiu oraz gminie na stronie biura nieruchomości Possessio, ul. Witosa 9, Strzegom.
Oferujemy wsparcie, bezpieczeństwo i doradztwo w pośrednictwie nieruchomościami oraz darmową i skuteczną pomoc w uzyskaniu atrakcyjnych warunków kredytu
Nota prawna
Opis oferty zawarty na stronie internetowej sporządzany jest na podstawie oględzin nieruchomości oraz informacji uzyskanych od właściciela, może podlegać aktualizacji i nie stanowi oferty określonej w art. 66 i następnych K.C.
Kalkulator kredytowy
Formularz kontaktowy