Obiekt na wynajem





Szczegóły ogłoszenia
- Symbol oferty TRA-BW-4987
- Typ oferty obiekt na wynajem
- Czynsz wynajmu 62 zł / miesiąc
- Charakterystyka mieszkania 940 m2
- Media Ogrzewanie: centralne; Woda: ciepła - miejska; Kanalizacja: miejska; Prąd: jest; Gaz: jest
- Miejsce parkingowe Tak
- Dojazd ASFALTOWA
- Kaucja trzymiesięczna
- Otoczenie centrum miasta
Lokalizacja
- Adres dolnośląskie, strzeliński, Strzelin (gw)
Opis nieruchomości
Do wynajęcia atrakcyjny obiekt usługowo – handlowy w Strzelinie
OPIS:
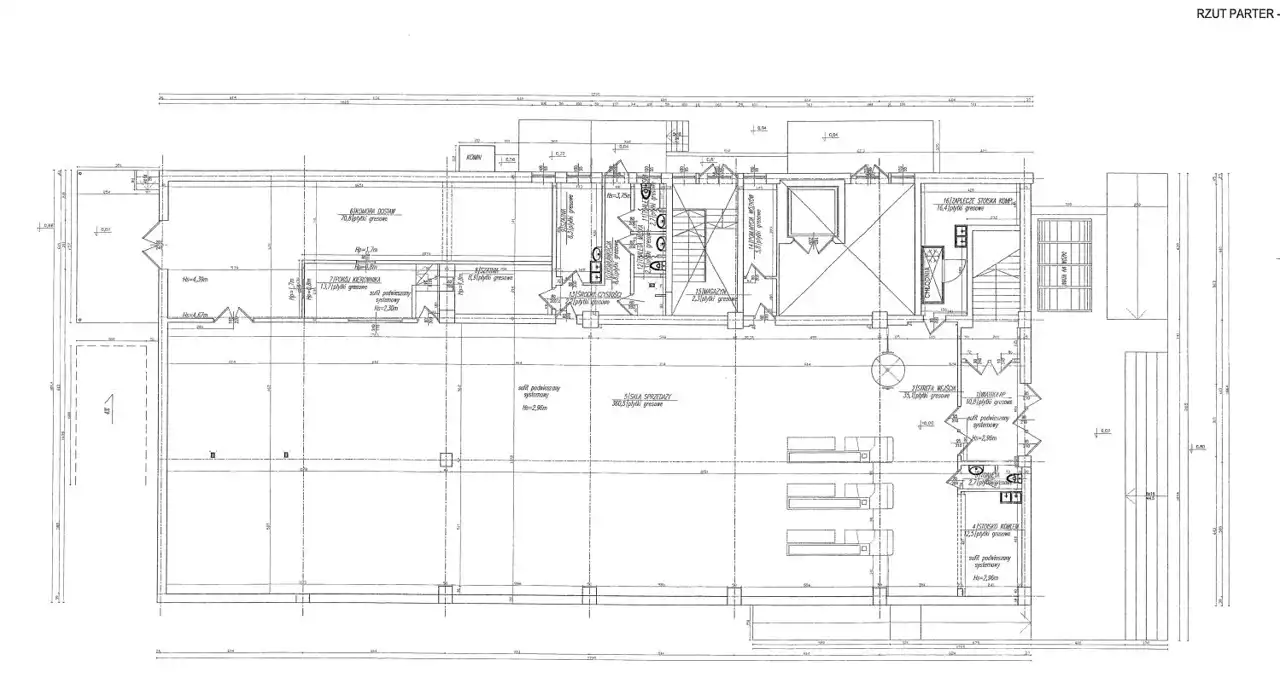
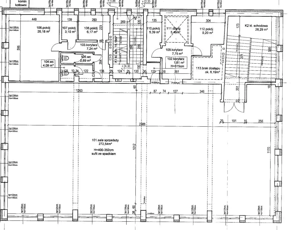
Nieruchomość o powierzchni 940 m2, podpiwniczona, położona w centrum Strzelina na działce w o powierzchni 2291 m2 z wydzielonym miejscem parkingowym na 25 samochodów. Powierzchnia parteru to ok. 540 m2, na I piętrze mamy ok. 400 m2.
Lokal po remoncie z wymienionymi oknami, posiada świetne warunki do prowadzenia różnego rodzaju działalności, m.in. handlowo – usługowej. Wejście do budynku jest przystosowane dla osób niepełnosprawnych.
Możliwość rozładunku samochodów dostawczych (rampa) i winda towarowa jest dodatkowym atutem. Istnieje możliwość wykonania projektu windy osobowej.
Media: instalacja wodno – kanalizacyjna, elektryczna (Moc 38 kW), telefoniczna, ogrzewanie gazowe, osobne dla każdej kondygnacji.
Istniej możliwość wynajęcia tylko 1 piętra.
LOKALIZACJA:
Atrakcyjna lokalizacja w centrum Strzelina, w pobliżu duża inwestycja mieszkaniowa w budowie, komunikacja miejska, sklepy, osiedla mieszkaniowe dające spory potencjał przyszłych klientów, obiekty biurowe i usługowe.
Sąsiedztwo nieruchomości to także tereny rekreacyjne i ścieżki spacerowo – rowerowe.
Strzelin – miasto w województwie dolnośląskim, w powiecie strzelińskim, siedziba gminy miejsko-wiejskiej Strzelin i powiatu strzelińskiego.
Miasto leży nad Oławą na granicy Wzgórz Strzelińskich należących do Przedgórza Sudeckiego i Niziny Śląskiej, 37 km na południe od Wrocławia.
Przez Strzelin przebiega linia kolejowa łącząca Warszawę z Pragą. Znajduje się tu najgłębsze wyrobisko granitu w Europie. Miasto jest także ośrodkiem przemysłu cukrowniczego – cukrownię założono w roku 1872.
CZYNSZ NAJMU - DO NEGOCJACJI !
- 20 000,00 zł netto / miesięcznie plus dodatkowo media wg. wskazań liczników
- kaucja 3-miesięczna
ZALETY:
- Atrakcyjna lokalizacja - centrum miasta
- Dobry dojazd do Wrocławia (40km) drogą DK 395 oraz A4
- Możliwość wykorzystania na cele usługowo – handlowe o zróżnicowanym charakterze.
- 25 naziemnych miejsc parkingowych
Zadzwoń po więcej informacji, Zapraszamy na prezentację, Traczyk Nieruchomości
Niniejsze ogłoszenie nie stanowi oferty w rozumieniu przepisów Kodeksu Cywilnego oraz innych właściwych przepisów prawnych, a dane w niej zawarte mają jedynie charakter informacyjny.