Obiekt na sprzedaż
449 000 zł
450 m2















1 / 15
Szczegóły ogłoszenia
- Symbol oferty LNH-BS-1742
- Typ oferty obiekt na sprzedaż
- Cena 449 000 zł
- Charakterystyka mieszkania 450 m2
- Media Woda: jest; Kanalizacja: tak; Prąd: jest; Gaz: jest
- Miejsce parkingowe Tak
Lokalizacja
- Adres lubelskie, Strzyżewice, Strzyżewice
Opis nieruchomości
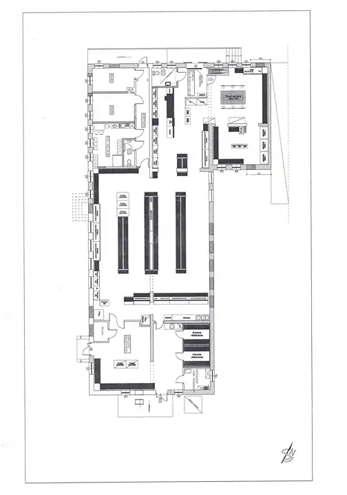
Obiekt handlowo-usługowy w remoncie.
W centrum Strzyżewic znajduje się obiekt do adaptacji, z przeznaczeniem na usługi, handel, gastronomię.
Na chwilę obecną jest projekt wraz z pozwoleniami na wykonanie prac remontowych, dotąd oczyszczono budynek ze starych instalacji, tynków, zbędnych ścian i urządzeń. Projekt przewiduje sale sprzedażowe, pomieszczenia biurowe, socjalne, techniczne.
W budynku są przyłącza energii elektrycznej, gazu, wody, kanalizacji. Działka ma powierzchnię 1401 m2.
Na obecnym etapie remontu jest możliwość wydzielenia kilku odrębnych lokali z osobnymi wejściami z zewnątrz budynku. Na teren obiektu jest wjazd z dwóch stron. Możliwość długoterminowego wynajmu nieruchomości.
Świetna lokalizacja, w samym centrum miejscowości, przy głównej ulicy. W pobliżu jest Urząd Gminy, przychodnia zdrowia, apteka, sklepy.
W centrum Strzyżewic znajduje się obiekt do adaptacji, z przeznaczeniem na usługi, handel, gastronomię.
Na chwilę obecną jest projekt wraz z pozwoleniami na wykonanie prac remontowych, dotąd oczyszczono budynek ze starych instalacji, tynków, zbędnych ścian i urządzeń. Projekt przewiduje sale sprzedażowe, pomieszczenia biurowe, socjalne, techniczne.
W budynku są przyłącza energii elektrycznej, gazu, wody, kanalizacji. Działka ma powierzchnię 1401 m2.
Na obecnym etapie remontu jest możliwość wydzielenia kilku odrębnych lokali z osobnymi wejściami z zewnątrz budynku. Na teren obiektu jest wjazd z dwóch stron. Możliwość długoterminowego wynajmu nieruchomości.
Świetna lokalizacja, w samym centrum miejscowości, przy głównej ulicy. W pobliżu jest Urząd Gminy, przychodnia zdrowia, apteka, sklepy.
Nota prawna
Opis oferty zawarty na stronie internetowej sporządzany jest na podstawie oględzin nieruchomości oraz informacji uzyskanych od właściciela, może podlegać aktualizacji i nie stanowi oferty określonej w art. 66 i następnych K.C.
Kalkulator kredytowy
Formularz kontaktowy