Hala na sprzedaż
2 499 000 zł
560 m2



























1 / 27
Szczegóły ogłoszenia
- Symbol oferty PRF-HS-7389
- Typ oferty hala na sprzedaż
- Cena 2 499 000 zł
- Charakterystyka mieszkania 559.8 m2
- Budynek rok budowy: 1990
- Miejsce parkingowe Tak
- Dojazd asfalt
- Otoczenie działki zabudowane
Lokalizacja
- Adres wielkopolskie, Suchy Las
Opis nieruchomości
FUNKCJONALNA HALA PRODUKCYJNO-MAGAZYNOWA Z BUDYNKIEM BIUROWYM OD FRONTU BEZPOŚREDNIO PRZY UL.OBORNICKIEJ W SUCHYM LESIE
Polecam Państwu bardzo dobrze utrzymany obiekt z bezpośrednim wjazdem z ul.Obornickiej blisko Poznania.
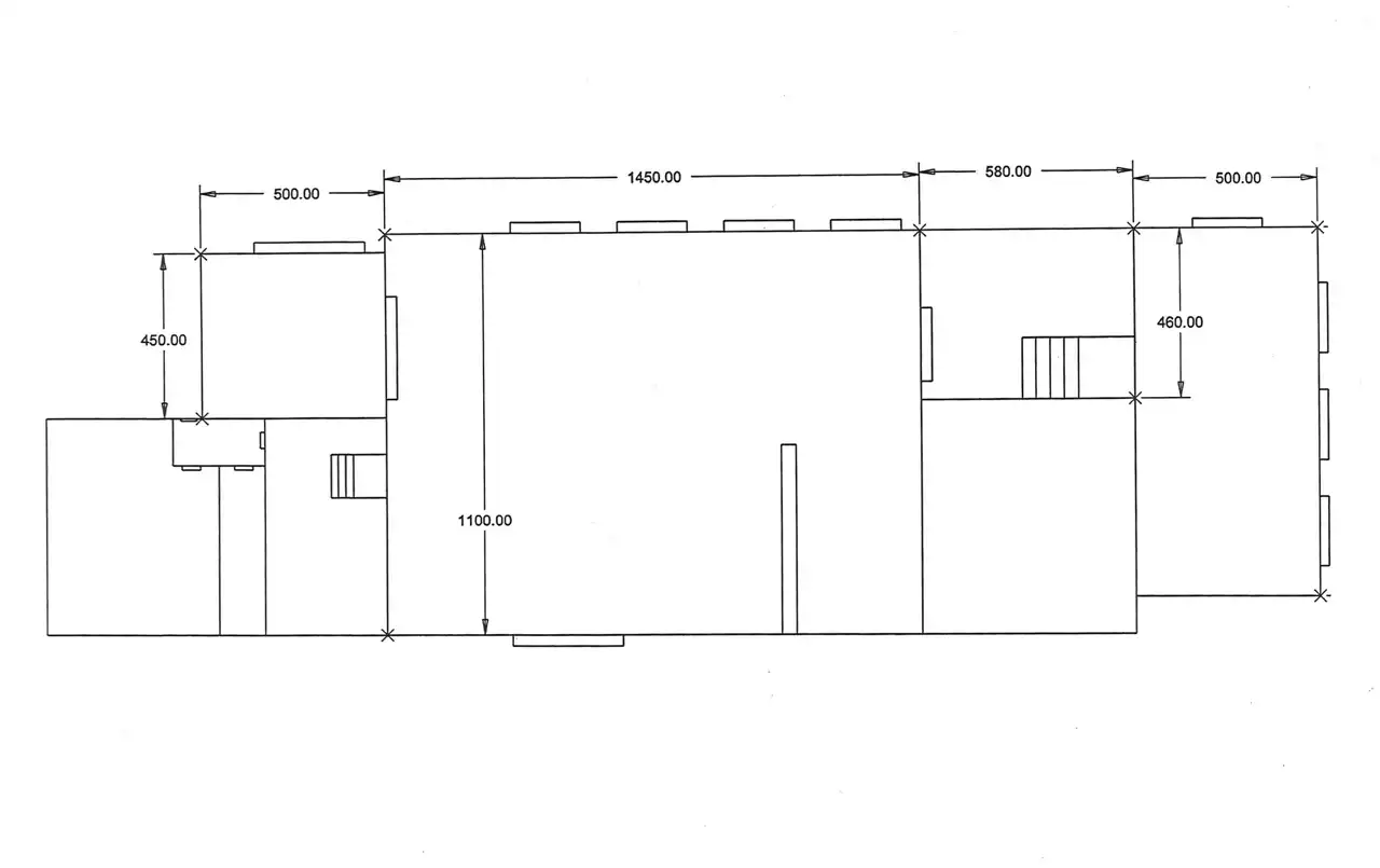
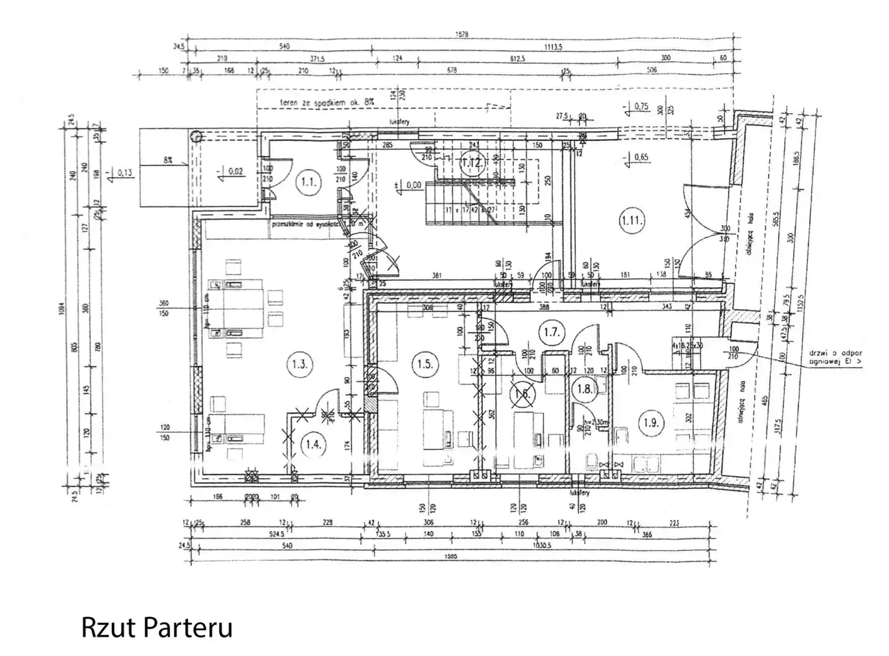
Obiekt składa się z frontowego piętrowego budynku biurowego (z parkingiem) o powierzchni 292,8 mkw, połączonego z halą produkcyjną i stolarnią o powierzchni 267 mkw. Usytuowany jest na działce o wielkości 1216 mkw.
Oba budynki posiadają zaplecza socjalne. W części produkcyjnej są łazienki, toalety, szafki i aneks kuchenny, a w części biurowej znajdują się toalety i większa kuchnia (na pietrze).
Część biurowa składa się oprócz tego z dużego biura o powierzchni około 40 mkw (parter), 3 pomieszczeń biurowych i salki konferencyjnej (piętro).
Nieruchomość jest zadbana i dobrze zorganizowana komunikacyjnie. Część budynku powstała w latach 90-tych, całość została wyremontowana i rozbudowana w roku 2008. Budynek produkcyjny posiada dojazdy boczne, dwie bramy przemysłowe (3,8 m wysokości) po dwóch stronach oraz posadzki przemysłowe o dużej nośności.
Budynek biurowy orzewany jest piecem gazowym, budynek przemysłowy piecem olejowym.
Aktualna moc przyłączeniowa - 50kW.
Obecnie zakład jest przystosowany dla ponad 20-u pracowników. Firma zajmuje się wzornictwem przemysłowym, wykonuje między innymi przestrzenne modele odlewnicze i posiada nowoczesny specjalistyczny sprzęt, który może (ale nie musi) być zakupiony razem z nieruchomością. Na życzenie klienta przesyłamy szczegółowy spis i wycenę urządzeń.
To bardzo ciekawa oferta zarówno dla firm produkcyjnych, handlowych, jak również dla inwestorów. Działka nie jest objęta MPZP , a sąsiedztwo pozwala zarówno na kontynuowanie funkcji przemysłowej, jak i zmianę na funkcję usługową lub mieszkaniową.
Zapraszam na prezentację. Kupujący nie płaci prowizji pośrednika.
Nota prawna
Opis oferty zawarty na stronie internetowej sporządzany jest na podstawie oględzin nieruchomości oraz informacji uzyskanych od właściciela, może podlegać aktualizacji i nie stanowi oferty określonej w art. 66 i następnych K.C.
Kalkulator kredytowy
Formularz kontaktowy