Działka na sprzedaż
1 732 080 zł
4 124 m2







1 / 7
Szczegóły ogłoszenia
- Symbol oferty CEN-GS-2827
- Typ oferty działka na sprzedaż
- Cena 1 732 080 zł
- Charakterystyka mieszkania 4124 m2
- Media Woda: w ulicy; Kanalizacja: w ulicy; Prąd: w ulicy; Gaz: w drodze dojazdowej
- Bezpieczeństwo ogrodzenie działki: brak
- Dojazd droga gruntowa
- Działka Niezagospodarowana, płaska, prostokąt
- Otoczenie działki zabudowane
Lokalizacja
- Adres podlaskie, Supraśl (gw), Ogrodniczki
Opis nieruchomości
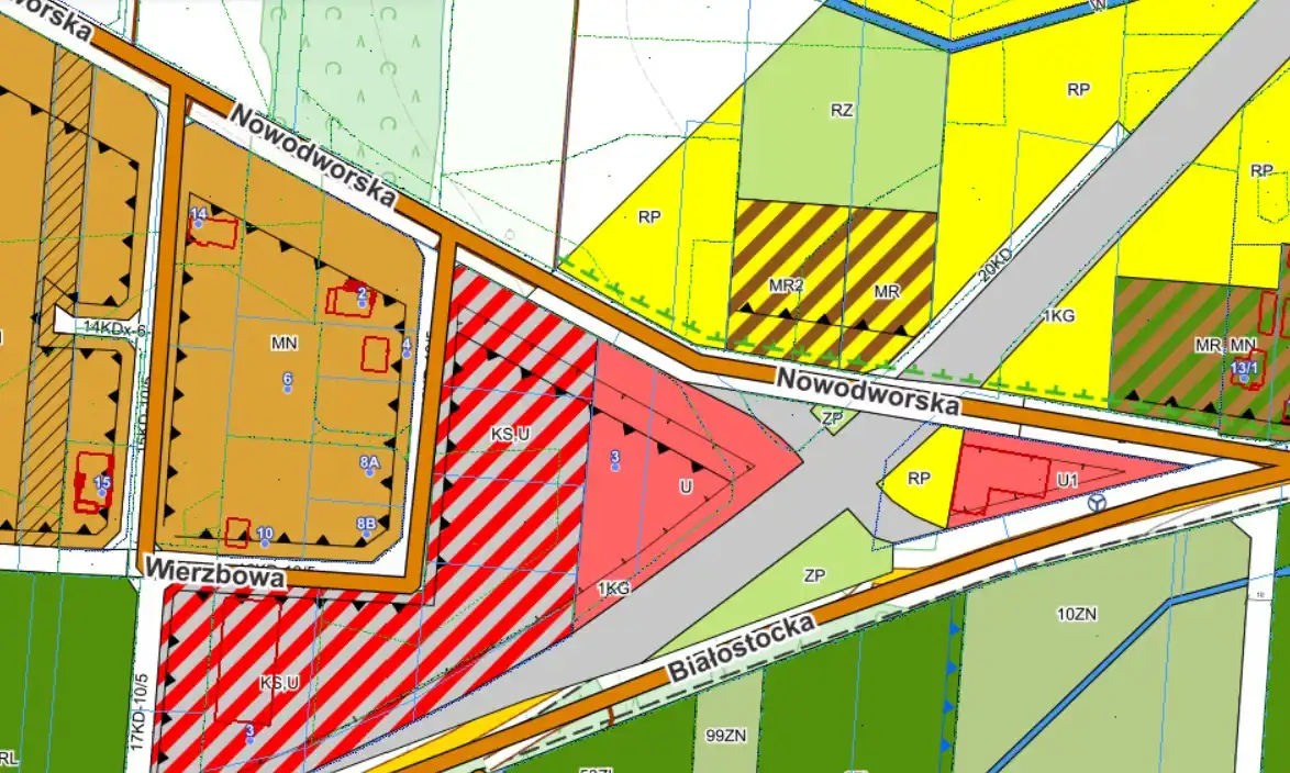
Na sprzedaż dwie działki inwestycyjne – Ogrodniczki, gm. Supraśl
Na sprzedaż dwie przyległe działki o łącznej powierzchni 4124 m², położone w miejscowości Ogrodniczki, gmina Supraśl.
Wymiary łączne: ok. 78 m x 59 m
Obręb: Ogrodniczki
MPZP: teren objęty miejscowym planem zagospodarowania przestrzennego
Przeznaczenie terenu:
KS – tereny obsługi komunikacji:
stacja paliw, obsługa techniczna pojazdów, motel oraz obiekty i urządzenia towarzyszące.
U – tereny usługowe:
handel, rzemiosło, usługi nieuciążliwe dla otoczenia, z możliwością łączenia funkcji usługowej z mieszkaniową
Atuty nieruchomości:
Działki sprzedawane razem.
Idealna propozycja dla inwestora poszukującego gruntu pod działalność usługową, handlową lub inwestycję z funkcją mieszkaniową.
tel. 531 790 133
Na sprzedaż dwie przyległe działki o łącznej powierzchni 4124 m², położone w miejscowości Ogrodniczki, gmina Supraśl.
Wymiary łączne: ok. 78 m x 59 m
Obręb: Ogrodniczki
MPZP: teren objęty miejscowym planem zagospodarowania przestrzennego
Przeznaczenie terenu:
KS – tereny obsługi komunikacji:
stacja paliw, obsługa techniczna pojazdów, motel oraz obiekty i urządzenia towarzyszące.
U – tereny usługowe:
handel, rzemiosło, usługi nieuciążliwe dla otoczenia, z możliwością łączenia funkcji usługowej z mieszkaniową
Atuty nieruchomości:
- korzystne położenie przy drodze o dużym natężeniu ruchu, idealne pod działalność usługowo-handlową lub stację paliw,
- teren objęty MPZP – brak konieczności uzyskiwania warunków zabudowy,
- działki posiadają pełne uzbrojenie terenu – dostępne są wszystkie niezbędne media: prąd, woda, kanalizacja oraz gaz.
- kształtne, ustawne działki o dogodnych wymiarach,
- szybki dojazd do Białegostoku, Wasilkowa i Supraśla.
Działki sprzedawane razem.
Idealna propozycja dla inwestora poszukującego gruntu pod działalność usługową, handlową lub inwestycję z funkcją mieszkaniową.
tel. 531 790 133
Nota prawna
Opis oferty zawarty na stronie internetowej sporządzany jest na podstawie oględzin nieruchomości oraz informacji uzyskanych od właściciela, może podlegać aktualizacji i nie stanowi oferty określonej w art. 66 i następnych K.C.
Kalkulator kredytowy
Formularz kontaktowy