Mieszkanie na sprzedaż



















Szczegóły ogłoszenia
- Symbol oferty WMB-MS-2462
- Typ oferty mieszkanie na sprzedaż
- Cena 159 900 zł
- Charakterystyka mieszkania 138.7 m2, 6 pokoi
- Budynek budynek wolnostojący; rok budowy: 1955
- Rozkład mieszkania 1p piętro
- Media Ogrzewanie: C.O. GAZOWE; Woda: jest; Gaz: jest
- Dojazd ASFALTOWA
- Instalacje ELEKTRYCZNA, WODNA, GAZOWA
- Okna drewniane
- Otoczenie tereny rekreacyjne
- Stan lokalu do generalnego remontu
- Technologia budowlana beton, cegła
Lokalizacja
- Adres dolnośląskie, Świdnica (gw), Burkatów
Opis nieruchomości
Oferta sprzedaży lokalu użytkowego z potencjałem – spokojna okolica, blisko parku i PKP
OFERTA NA WYŁĄCZNOŚĆ !!! Tylko w naszym biurzeOpis nieruchomości:
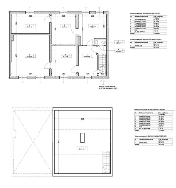
WOMBAT NIERUCHOMOŚCI oferuje na sprzedaż lokal niemieszkalny o powierzchni 138,70 m² (wraz z pomieszczeniami przynależnymi), położony na I piętrze budynku mieszkalno–usługowego.
Lokal składa się z:
-
6 przestronnych pokoi,
-
klatki schodowej z niezależnym wejściem,
-
toalety (WC),
-
poddasza z osobnym wejściem z poziomu lokalu – z możliwością adaptacji na dodatkową przestrzeń użytkową lub mieszkalną.
Układ pomieszczeń jest funkcjonalny, a wnętrza są jasne i dobrze doświetlone.
Według dostępnych informacji, istnieje możliwość przekształcenia lokalu w lokal mieszkalny, co stanowi dużą wartość inwestycyjną.
Stan techniczny:
-
lokal wymaga remontu i modernizacji,
-
instalacje (elektryczna, wodno-kanalizacyjna, gazowa) – starego typu,
-
poszycie dachu kompletne, jednak wymaga przeglądu i ewentualnych napraw,
-
ogólny stan budynku dobry, elewacja w przyzwoitym stanie, brak potwierdzonych informacji o ociepleniu lub termomodernizacji.
Ogrzewanie: gazowe.
Atuty nieruchomości:
-
niezależne wejście i prywatna klatka schodowa,
-
I piętro – wygodny dostęp,
-
jasne, przestronne pomieszczenia,
-
wydzielony strych z możliwością adaptacji,
-
mało sąsiadów, spokojna okolica,
-
w pobliżu park, kompleks sportowy i stacja PKP,
-
duży potencjał aranżacyjny i inwestycyjny.
Dodatkowe informacje:
Nieruchomość idealna pod:
-
lokal biurowy, usługowy lub pracownię,
-
adaptację na cele mieszkalne – np. przestronne mieszkanie lub dwa mniejsze lokale.
Lokalizacja:
Nieruchomość położona w spokojnej, zielonej okolicy, w bezpośrednim sąsiedztwie parku, kompleksu sportowego oraz przystanku PKP. Lokalizacja zapewnia doskonały dostęp do komunikacji publicznej oraz wygodny dojazd do centrum miasta i pobliskich miejscowości.
Cena: 159 900zł do negocjacji
Zadzwoń i umów się na prezentację – ta nieruchomość może być Twoja!
Agent prowadzący:
Daniel Kruk tel. +48 697 605 265, +48 575 479 259
WOMBAT NIERUCHOMOŚCI