Mieszkanie na sprzedaż


















Szczegóły ogłoszenia
- Symbol oferty MPH-MS-340
- Typ oferty mieszkanie na sprzedaż
- Cena 630 000 zł
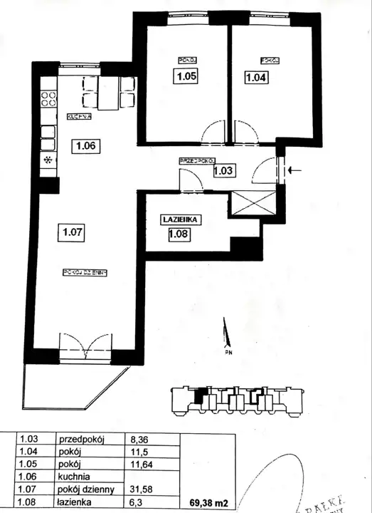
- Charakterystyka mieszkania 69.38 m2, 3 pokoje
- Budynek blok; rok budowy: 2008
- Rozkład mieszkania 1p piętro
- Media Ogrzewanie: gazowe; Woda: piec gazowy dwufunkcyjny; Gaz: jest
- Balkon jest
- Czynsz Czynsz letni: 320 zł
- Dojazd asfalt
- Garaż garaż podziemny
- Ilość sypialni 2
- Instalacje nowe
- Okna PCV
- Otoczenie osiedle
- Plac zabaw Tak
- Stan lokalu do wprowadzenia
- Umeblowanie do uzgodnienia
Lokalizacja
- Adres dolnośląskie, Świdnica (gw), Komorów
Opis nieruchomości
Oferujemy na sprzedaż nowocześnie urządzone 3 pokojowe mieszkanie zlokalizowane na zamkniętym Osiedlu Arkadia w Komorowie, niedaleko Świdnicy.
Mieszkanie dwustronne, jasne i bardzo ciepłe, usytuowane w bloku na 1. piętrze.
Na powierzchnię 69,38 m2 składa się:
- salon z wyjściem na balkon (w części salonu wydzielona dodatkowa sypialnia),
- otwarta na salon kuchnia w zabudowie,
- 2 oddzielne ustawne pokoje,
- łazienka z wc i prysznicem,
- przedpokój,
Standard i wyposażenie:
- Mieszkanie po generalnym remoncie, nowocześnie urządzone;
- Na podłogach panele i płytki, nowe drzwi; na ścianach gładzie;
- W kuchni meble w zabudowie z wyposażeniem AGD (zmywarka, piekarnik, płyta, okap)- w cenie;
- W łazience ogrzewanie podłogowe, toaleta, lustro, umywalka, prysznic wraz z armaturą;
- W pokojach i w przedpokoju szafy w zabudowie;
- Ogrzewanie i woda- z pieca gazowego dwufunkcyjnego;
- Z salonu wychodzi się na słoneczny balkon;
Opłaty:
Miesięczne koszty utrzymania (czynsz) w wysokości ok. 320 zł (w tym opłaty eksploatacyjne, fundusz remontowy); dodatkowo płatne śmieci w zależności od ilości osób oraz media według zużycia- prąd, woda, gaz.
Dodatkowo:
- Do mieszkania przynależne miejsce parkingowe w garażu podziemnym- w cenie.
- Możliwość parkowania pod budynkiem- miejsca ogólnodostępne.
- Teren zamknięty, brama otwierana na pilota.
Budynek i okolica:
- Zadbany blok.
- Wokół dostępne miejsca parkingowe.
- Spokojna lokalizacja, a jednocześnie niedaleko do Świdnicy.
Zachęcam do zapoznania się z ofertą sprzedaży i zapraszam na bezpłatną prezentację tego mieszkania w Komorowie.
Biuro Nieruchomości MP Home
Marta Puklicka
e-mail: biuro@mpnieruchomosci.pl
tel.: 502-002-077
*Do ceny transakcyjnej należy doliczyć koszty notarialne oraz wynagrodzenie biura nieruchomości
Biuro nieruchomości MP home w ramach swojej działalności zapewnia:
- Pełną obsługę transakcji, począwszy od rzetelnego zbadania stanu prawnego nieruchomości,
- Prezentacji nieruchomości,
- Współpracy z ekspertami finansowymi w sprawach udzielania kredytów hipotecznych / w wyborze najlepszych ubezpieczeń, a także
- Współpracy przy przygotowaniu certyfikatów energetycznych,
- Indywidualne podejście do negocjowania warunków transakcji oraz prowizji,
- Przygotowanie umów przedwstępnych i innych dokumentów dotyczących nabycia nieruchomości,
- Koordynowanie obsługi notarialnej transakcji, aż do przekazania nieruchomości.
Treść niniejszego ogłoszenia nie stanowi oferty handlowej w rozumieniu Kodeksu Cywilnego. Opis ma charakter informacyjny i sporządzony jest na podstawie oględzin nieruchomości oraz informacji uzyskanych od właściciela, zalecamy więc ich osobistą weryfikację. Kontaktując się z biurem Klient wyraża zgodę na przetwarzanie danych osobowych zgodnie z przepisami ustawy z dnia 29 sierpnia 1997 roku o ochronie danych osobowych / Dz.U.Nr. 133 poz. 883/. Klientowi przysługuje prawo do wglądu do swoich danych osobowych i ich aktualizacji.