Mieszkanie na sprzedaż

















Szczegóły ogłoszenia
- Symbol oferty BAJ-MS-6482
- Typ oferty mieszkanie na sprzedaż
- Cena 384 735 zł
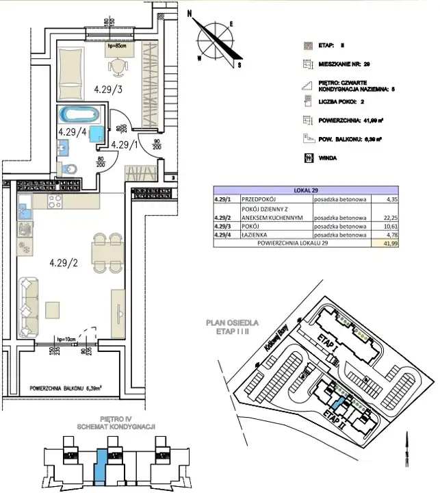
- Charakterystyka mieszkania 41.99 m2, 2 pokoje
- Budynek apartamentowiec
- Rozkład mieszkania 4p piętro
- Media Ogrzewanie: C.O. GAZOWE; Woda: ciepła - sieć; Gaz: tak - miejski
- Dojazd ASFALTOWA
- Garaż garaż pod budynkiem
- Ilość sypialni 1
- Instalacje ELEKTRYCZNA
- Okna PCV
- Otoczenie osiedle
- Stan lokalu deweloperski
- Taras taras
- Technologia budowlana beton komórkowy
- Winda Tak
Lokalizacja
- Adres kujawsko-pomorskie, Świecie, Marianki
Opis nieruchomości
Wyobraź sobie poranek z kawą na tarasie z widokiem na wschód słońca i panoramą miasta, popołudnie spędzone w przytulnym salonie zaprojektowanym z myślą o Twoim komforcie i wieczór w miejscu, które naprawdę możesz nazwać domem.
Dla tych, którzy cenią detale, nowoczesną architekturę i codzienną wygodę – powstała ta wyjątkowa inwestycja.
W samym sercu rozwijającej się dzielnicy Marianki w Świeciu powstaje osiedle, które redefiniuje standard mieszkań w regionie. To tu zaczyna się nowa jakość życia.
BONA PRESTIGE APARTAMENTY to nie tylko inwestycja – to przestrzeń do życia, która dopasowuje się do Ciebie.
BONA Prestige Apartamenty to nowatorskie podejście do projektowania, nowoczesna i niespotykana architektura zainspirowana kwiatem Notocactus Buiningii. Te niezwykłe budynki których tarasy, niczym różnej szerokości liczne listki barwnego kwiatu Notocactusa, rozszerzają się ku górze. Szerokość tarasów rośnie od dolnych kondygnacji gdzie szerokość tarasu wynosi 1,56 m rośnie ku górze we wszystkich kierunkach aż do 2,3 m szerokości.
BONA PRESTIGE APARTAMENTY to 5 kondygnacyjny, 3 klatkowy budynek, w którym znajdują 43 mieszkania o pow. od 42 m² – do 95 m², a także podpiwniczoną kondygnację, w której znajdują się komórki lokatorskie do każdego mieszkania oraz 15 samodzielnych garaży. Na parkingu zewnętrznym znajduje się 50 miejsc postojowych, w tym 1 miejsce dla osób o ograniczonej zdolności poruszania się.
Prezentowane w ofercie mieszkanie nr 29 o pow. 41,86 m2 składa się z:
· salon z aneksem kuchennym : 22,25 m²,
· pokój : 10,61 m²,
· przedpokój : 4,35 m²,
· łazienka : 4,78 m²,
+ taras: 6,39 m²,
+ komórka lokatorska 2,16 m2 w cenie mieszkania.
Istnieje możliwość dodatkowo zakupu garażu znajdującego się w budynku (poziom _-1) za kwotę 75.000 zł
Niewątpliwe atuty nieruchomości:
- Lokalizacja: inwestycja zlokalizowana jest w odległości 2 km od Rynku Głównego w Świeciu, a jednocześnie ta odległość powoduje, że jest zlokalizowana blisko terenów zielonych, miejsc wypoczynku i rekreacji. Jest to idealne miejsce: dla osób aktywnych ceniących przestrzeń i możliwość aktywnego spędzania czasu, dla rodzin z dziećmi z uwagi na bliskość szkół, przedszkoli oraz placów zabaw parków, dla starszych osób ceniących komfort i wygodę mieszkania (windy, parkingi pod blokiem i przestronne balkony z pięknym widokiem).
rekreacyjną infrastrukturą rozrywkową
Spacerem można dotrzeć:
- w 3 minuty do Duży Blankusz
- w 5 minuty do Marketu Spożywczego , Apteki, Cukierni
- w 7 minut do Przedszkola Motylek
- w 8 minut do Szkoły Podstawowej Nr.8
- komfort, wygoda i bezpieczeństwo: wszystkie mieszkania zostały starannie zaprojektowane przez doświadczonych projektantów, przemyślana architektura oraz funkcjonalność każdego z pomieszczeń zapewnia komfort i wygodę mieszkania, elektryczne windy cichobieżne jeżdżące od poziomu -1 (komórki lokatorskie, garaże) do poziomu 4 piętra, klatki schodowe przystosowane dla osób niepełnosprawnych, drzwi zewnętrzne do lokali antywłamaniowe, przeciwpożarowe wysokiej klasy;
- usytuowanie tarasów: wszystkie tarasy mają ekspozycję południową, południowo-zachodnią, dzięki czemu każde mieszkanie jest bardzo dobrze doświetlone przez promienie słoneczne.
- nowoczesna architektura budynku: zastosowanie nowoczesnego oświetlenia LED budynku, duże balkony/tarasy widokowe z przeszklonymi, przyciemnianymi balustradami ze szkła hartowanego z pięknym widokiem na panoramę Świecia, klatki jasne, doświetlone dużymi oknami, nowoczesna stylizacja części wspólnych;
- komórka lokatorska w cenie mieszkania,
- atrakcyjnie zaaranżowana przestrzeń zewnętrzna pomiędzy blokami: liczne, oznakowane miejsca parkingowe, chodniki wokół budynków, trawniki i liczne nasadzenia przy budynkach, liczne punkty świetle.
Standard wykończenia stanu deweloperskiego:
Wysokość lokali od parteru do III piętra) - 2,75 m
Wysokość lokali na IV piętrze kondygnacji 2,98 m
1. Ściany i posadzki:
- ścianki działowe murowane gr. 8 lub 6 cm + tynki,
- tynk cementowo-wapienny na ścianach.
- sufit nie tynkowany,
- posadzki – wylewka betonowa, zatarta na gładko z balkonem.
2. Stolarka drzwiowa i okienna:
- drzwi wejściowe antywłamaniowe, przeciwpożarowe wysokiej klasy,
- stolarka okienna PCV, 5 - Komorowa, zewnętrznym kolorem RAL7016- antracyt, wewnętrzny kolor -biały,
- parapety wewnętrzne kamienne – konglomerat jasny,
- parapety zewnętrzne z blachy stalowej- powlekane,
- nowoczesne szklane balustrady na tarasach ( przyciemniane – grafitowe szkło bezpieczne oraz szkło z refleksem).
3. Wyposażenie sanitarne:
-podejścia do muszli przygotowane na muszlę ,rura kanalizacyjna częściowo
schowana w posadzce,
- podejście do wanny, umywalki i zlewozmywaka,
- podłączenia do pralki – odpływ i zimna woda,
- liczniki na wodę zimną,
- licznik na ciepłą wodę,
- ciepłomierz na ogrzewanie.
4. Ogrzewanie:
- centralne ogrzewanie kotłownia kontenerowa,
- grzejniki płytowe w pokojach i kuchni,
- w łazience grzejnik rurkowy.
5.Piwnica z drzwiami:
- dostępna z klatki schodowej,
- posadzka z wylewki betonowej,
- pełne drzwi do komórek lokatorskich -kolor antracyt (płyta metalowa wzmocniona na trzech poziomach ),
-1 pojedynczy wypust oświetleniowy sufitowy.
6. Instalacje elektryczne:
6.1. punkty świetlne:
Wg(projektu) rzutu zawierającego plan instalacji elektrycznych:
- łazienka – jeden wypust oświetleniowy sufitowy,
- kuchnia – co najmniej pojedynczy wypust oświetleniowy sufitowy,
- korytarz – co najmniej pojedynczy wypust oświetleniowy sufitowy,
- pokoje – po 1 pojedynczym wypuście oświetleniowym sufitowym na pokój,
- w pokoju dziennym – co najmniej jeden wypust oświetleniowy.
6.2. Punkty elektryczne:
wg (projektu)rzutu zawierającego plan instalacji elektrycznych
- instalacja telefoniczna -1szt- ( w korytarzu),
- instalacja RTV w każdym pokoju :1 szt.,
- instalacja LAN w każdym pokoju : 1 szt.,
- instalacja dzwonkowa,
- instalacja domofonowa ( słuchawka przy drzwiach wejściowych do mieszkania).
7.Garaże:
- sufit nie tynkowany,
- tynk cementowo-wapienny na ścianach,
- posadzki – wylewka betonowa, zatarta na gładko,
- bramy garażowe segmentowe ( bez silnika ),
- wypusty kablowe wg. (projektu)rzutu zawierającego plan instalacji elektrycznych.
SERDECZNIE ZAPRASZAMY NA PREZENTACJĘ.
Zainteresowane osoby zapraszam kontaktu pod nr tel. 604 765 378.
KUPUJĄCY NIE PŁACI PODATKU PCC ORAZ PROWIZJI DO BIURA.
Udogodnienia przy współpracy:
Bezpieczeństwo i ułatwienia przy załatwianiu formalności podczas zakupu nieruchomości oparte są na umowie deweloperskiej, profesjonalnej obsłudze, naszym doświadczeniu i prostocie w otrzymaniu ewentualnego kredytu. Dołożymy wszelkich starań, aby podjęta przez Państwa decyzja o wyborze partnera biznesowego, czyli banku, była najlepsza i najkorzystniejsza, a zapisy w umowie kredytowej nie były dla Państwa zaskakujące i niejasne. Doradcy bankowi pomogą Państwu zgromadzić niezbędne dokumenty, podpisać wniosek kredytowy i wynegocjować najlepsze warunki kredytowe. Nawet po wypłaceniu środków przez bank, jak również na każdym innym etapie spłacania zobowiązania, mogą Państwo zwrócić się do nas o bezpłatną poradę.
BIURO NIERUCHOMOŚCI BAJ HOME POMAGA RÓWNIEŻ W UZYSKANIU NAJKORZYSTNIEJSZEJ OFERTY KREDYTOWEJ !
Oferta ma charakter informacyjny i nie stanowi oferty handlowej w rozumieniu art. 66 §1 Kodeksu Cywilnego.
Zapraszamy na prezentację, oferując rzetelną i profesjonalną opiekę nad całością transakcji przeprowadzonej w bezpieczny sposób przez licencjonowanego Pośrednika. Nr licencji zawodowej 22219. Posiadamy ubezpieczenie OC pośrednika nieruchomości.
www.apartado.pl