Mieszkanie na sprzedaż
410 000 zł
42 m2



























1 / 27
Szczegóły ogłoszenia
- Symbol oferty LUX-MS-2259
- Typ oferty mieszkanie na sprzedaż
- Cena 410 000 zł
- Charakterystyka mieszkania 41.59 m2, 2 pokoje
- Budynek blok
- Rozkład mieszkania 2p piętro
- Balkon jest
- Czynsz Czynsz letni: 400 zł
- Garaż garaż w budynku
- Ilość sypialni 1
- Instalacje nowe
- Okna PCV
Lokalizacja
- Adres wielkopolskie, leszczyński, Święciechowa
Opis nieruchomości
Biuro nieruchomości "Luxus Home" Leszno, oferuje do sprzedaży NOWE MIESZKANIE, zlokalizowane na granicy Leszna - Zatorza i Święciechowy - ul. Owocowa.
Mieszkanie nr 40.
Powierzchnia: 41,59 m2.
Ilość pokoi: 2.
Piętro: II.
Media: prąd, woda, kanalizacja, centralne ogrzewanie, klimatyzacja z funkcją chłodzenia i ogrzewania.
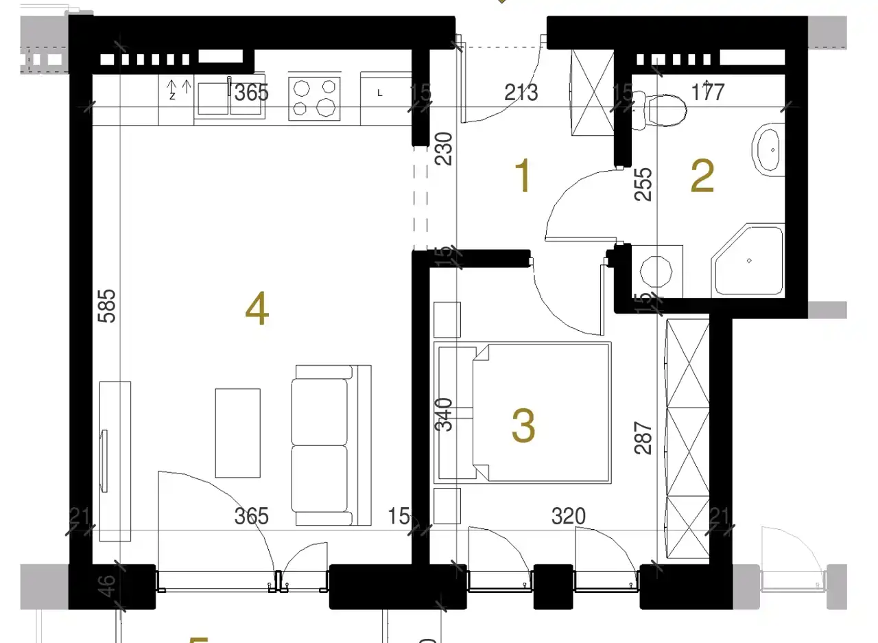
ROZKŁAD POMIESZCZEŃ:
- salon z aneksem kuchennym,
- sypialnia,
- łazienka,
- korytarz.
Mieszkanie posiada balkon o powierzchni: 3,3 m2.
Dodatkowo istnieje możliwość zakupu:
- naziemnego miejsca postojowego - cena 10.000 PLN,
- komórki lokatorskiej - cena od 12.000 PLN do 13.600 PLN.
Standard wykończenia: ściany w pokojach gładzone i malowane, na podłogach panele. Aneks kuchenny wyposażony w zabudowę oraz sprzęt AGD (płyta elektryczna, piekarnik, zmywarka, lodówko - zamrażarka, zlewozmywak). Okna PCV dwukolorowe (wewnątrz białe, na zewnątrz brązowe) z roletami zewnętrznymi. Zamontowane drzwi zewnętrzne oraz wewnętrzne. Łazienka wyłożona płytkami ceramicznymi wyposażona w kabinę prysznicową, szafkę oraz toaletę.
OPŁATY:
CZYNSZ do Wspólnoty Mieszkaniowej: 400 PLN (w tym zaliczki na centralne ogrzewanie, ciepłą i zimną wodę, fundusz remontowy, sprzątanie klatki schodowej, wywóz śmieci, administracja).
OPŁATA DODATKOWA: zużycie prądu, według licznika.
Lokalizacja: spokojna okolica, w sąsiedztwie zabudowań mieszkaniowych jednorodzinnych.
Mieszkanie nr 40.
Powierzchnia: 41,59 m2.
Ilość pokoi: 2.
Piętro: II.
Media: prąd, woda, kanalizacja, centralne ogrzewanie, klimatyzacja z funkcją chłodzenia i ogrzewania.
ROZKŁAD POMIESZCZEŃ:
- salon z aneksem kuchennym,
- sypialnia,
- łazienka,
- korytarz.
Mieszkanie posiada balkon o powierzchni: 3,3 m2.
Dodatkowo istnieje możliwość zakupu:
- naziemnego miejsca postojowego - cena 10.000 PLN,
- komórki lokatorskiej - cena od 12.000 PLN do 13.600 PLN.
Standard wykończenia: ściany w pokojach gładzone i malowane, na podłogach panele. Aneks kuchenny wyposażony w zabudowę oraz sprzęt AGD (płyta elektryczna, piekarnik, zmywarka, lodówko - zamrażarka, zlewozmywak). Okna PCV dwukolorowe (wewnątrz białe, na zewnątrz brązowe) z roletami zewnętrznymi. Zamontowane drzwi zewnętrzne oraz wewnętrzne. Łazienka wyłożona płytkami ceramicznymi wyposażona w kabinę prysznicową, szafkę oraz toaletę.
OPŁATY:
CZYNSZ do Wspólnoty Mieszkaniowej: 400 PLN (w tym zaliczki na centralne ogrzewanie, ciepłą i zimną wodę, fundusz remontowy, sprzątanie klatki schodowej, wywóz śmieci, administracja).
OPŁATA DODATKOWA: zużycie prądu, według licznika.
Lokalizacja: spokojna okolica, w sąsiedztwie zabudowań mieszkaniowych jednorodzinnych.
Nota prawna
Opis oferty zawarty na stronie internetowej sporządzany jest na podstawie oględzin nieruchomości oraz informacji uzyskanych od właściciela, może podlegać aktualizacji i nie stanowi oferty określonej w art. 66 i następnych K.C.
Kalkulator kredytowy
Formularz kontaktowy