Działka na sprzedaż

Szczegóły ogłoszenia
- Symbol oferty NET-GS-1877
- Typ oferty działka na sprzedaż
- Cena 1 000 000 zł
- Charakterystyka mieszkania 7033 m2
Lokalizacja
- Adres śląskie, Świętochłowice
Opis nieruchomości
Świętochłowice, 26 stycznia 2026 r.
GN.6840.1.4.2025.BA
Na podstawie § 13 Rozporządzenia Rady Ministrów z dnia 14 września 2004 r. w sprawie sposobu i trybu przeprowadzania przetargów oraz rokowań na zbycie nieruchomości (Dz. U. z 2021 r., poz. 2213), Uchwały Nr IV/24/14 Rady Miejskiej w Świętochłowicach z dnia 19 grudnia 2014 r. w sprawie określenia zasad nabywania, zbywania i obciążania nieruchomości oraz ich wydzierżawiania lub wynajmowania na okres dłuższy niż trzy lata, Zarządzenia Nr 44/2026 Prezydenta Miasta Świętochłowice z 26 stycznia 2026 r. w sprawie sprzedaży w drodze III przetargu ustnego nieograniczonego nieruchomości niezabudowanej, położonej w Świętochłowicach przy ul. Krokusów i ul. Bolesława Chrobrego
Prezydent Miasta Świętochłowice
ogłasza III przetarg ustny nieograniczony na sprzedaż
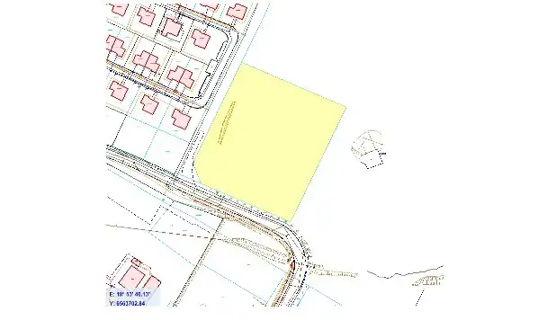
niezabudowanej nieruchomości, stanowiącej własność Gminy Świętochłowice, jednostka rejestrowa G. 125, obręb 0001 Chropaczów, działka nr:
3441 o powierzchni 7033 m2 (0,7033 ha), użytek: ŁV-22 m2, RIVa-4119 m2, RIVb-2892 m2, położona przy ulicy Krokusów i ulicy Bolesława Chrobrego.
-
Opis nieruchomości:
Lokalizacja:
Nieruchomość gruntowa położona jest w północno-zachodniej części miasta - w dzielnicy Chropaczów, w rejonie granicy Świętochłowic z Rudą Śląską. W otoczeniu znajdują się: łąki, domy mieszkalne, zabytkowy schron bojowy, baza transportowa. W bliskim sąsiedztwie znajduje się duży teren zielony miejscami gęsto zadrzewiony z potokiem Lipinka i stawem Ajska, ogródki działkowe. W dalszej odległości na terenie Rudy Śląskiej, dzielnicy Godula znajdują się punkty handlowo-usługowe, osiedle bloków mieszkalnych oraz przystanki komunikacji miejskiej tramwajowej i autobusowej. Odległość od centrum miasta - ok. 4 km.
Kształt, topografia terenu i uzbrojenie:
Działka ma kształt zbliżony do kwadratu. Stanowi nieogrodzony, niezagospodarowany teren porośnięty nieuporządkowaną zielenią niską i pojedynczymi drzewami, w północnej części działki znajduje się rów. W pobliżu przebiegają sieci uzbrojenia terenu: wodociągowa, kanalizacyjna sanitarna, elektroenergetyczna, telekomunikacyjna, gazociągowa.
-
Przeznaczenie nieruchomości i sposób jej zagospodarowania:
Nieruchomość niezabudowana. Dla przedmiotowego terenu obowiązuje plan zagospodarowania przestrzennego - Uchwała nr LXXII/573/23 Rady Miejskiej w Świętochłowicach z 26 czerwca 2023 r. w sprawie zmiany miejscowego planu zagospodarowania przestrzennego dla obszaru położonego w północno-zachodniej części miasta Świętochłowice ograniczonego granicą administracyjną miasta, ulicą Chorzowską oraz projektowaną drogą północ-południe przyjętego Uchwałą nr V/39/15 Rady Miejskiej w Świętochłowicach z dnia 28 stycznia 2015 r. z późniejszymi zmianami - zapis planu - L2.45U – tereny zabudowy usługowej, przeznaczenie podstawowe - tereny usług: handlu, gastronomii, zdrowia i pomocy społecznej, nauki, edukacji, sportu i rekreacji, kultury i rozrywki.
-
Obciążenia, które dotyczą przedmiotu sprzedaży:
W dziale III księgi wieczystej prowadzonej dla nieruchomości znajdują się wpisy:
Ograniczone prawo rzeczowe związane z inną nieruchomością:
Nieodpłatna służebność przejazdu i przechodu w pasie gruntu o szerokości 7 m na działce nr 2909/4 na rzecz każdoczesnego właściciela, użytkownika wieczystego bądź posiadacza działki gruntu oznaczonej numerem 2909/3 objętej księgą wieczystą KA1C/(...) - a tu z urzędu przeniesiono wpis do współobciążenia z księgi wieczystej KA1C/(...);
Inny wpis:
Do rejestru zabytków nieruchomych Województwa Śląskiego po numerem rejestru A/807/21 wpisano obiekt - dwukondygnacyjny schron bojowy (nr 15), stanowiący element grupy bojowej "Zgorzelec" obszaru warownego "Śląsk" położony w miejscowości Świętochłowice przy ulicy Kolonia Zygmunt/ulicy Ostatniej zlokalizowany na działce ewidencyjnej numer 3116/11;
Ograniczone prawo rzeczowe:
Służebność gruntowa polegająca na prawie przechodu i przejazdu celem zapewnienia dostępu do drogi publicznej po działce nr 3116/176, pasem gruntu o obszarze 0,6750 ha - na rzecz każdoczesnego właściciela nieruchomości stanowiącej działkę nr 3116/175, objętej księgą wieczystą numer KA1C/(...).
Dział IV księgi wieczystej nie zawiera wpisów.
-
Zobowiązania, które dotyczą przedmiotu sprzedaży:
Brak
W dniu 24.08.2025 r. upłynął termin do złożenia wniosków przez osoby, którym przysługuje pierwszeństwo w nabyciu ww. nieruchomości na podstawie art. 34 ust.1 pkt 1 i pkt 2 ustawy z dnia 21 sierpnia 1997 r. o gospodarce nieruchomościami (Dz. U. z 2024 r. poz. 1145).
-
I (pierwszy) przetarg odbył się 30 października 2025 r. o godz. 1100 w Urzędzie Miejskim w Świętochłowicach, ul. Katowicka 54. Przetarg zakończył się wynikiem negatywnym.
-
II (drugi) przetarg odbył się 20 stycznia 2026 r. o godzinie 1100 w Urzędzie Miejskim w Świętochłowicach, ul. Katowicka 54. Przetarg zakończył się wynikiem negatywnym.
-
III (trzeci) przetarg odbędzie się 31 marca 2026 r. o godzinie 1200 w Urzędzie Miejskim w Świętochłowicach, ul. Katowicka 54.
-
Cenę wywoławczą do III (trzeciego) przetargu ustala się w wysokości 1 000 000,- zł (jeden milion złotych 00/100). Do wylicytowanej ceny sprzedaży zostanie doliczony podatek VAT według stawki obowiązującej na dzień wpłaty.
-
Wadium w kwocie 100.000,- zł (słownie: sto trzydzieści tysięcy złotych 00/100) należy wnieść przelewem na konto prowadzone przez PKO BP S.A. nr 73 1020 2313 0000 3602 0574 0586 do 26 marca 2026 r. (za datę wpłaty wadium przyjmuje się datę jego wpływu na rachunek bankowy Urzędu Miejskiego) z dopiskiem: „GN/2026/wadium do przetargu ul. Chrobrego”.
-
O wysokości postąpienia decydują uczestnicy przetargu, z tym, że postąpienie nie może wynosić mniej niż 1% ceny wywoławczej, z zaokrągleniem w górę do pełnych dziesiątek złotych.
-
W przetargu może brać udział każdy, kto posiada zdolność prawną i zdolność do czynności prawnych, jeżeli wpłaci wadium w określonej wysokości i w wyznaczonym terminie oraz przedłoży komisji przetargowej najpóźniej w dniu przetargu:
-
Pisemne zgłoszenie uczestnictwa w przetargu zawierające dane osobowe: imiona, nazwisko, imiona rodziców, serię i nr dowodu osobistego, PESEL wraz z oświadczeniami o treści:
-
„Wyrażam zgodę na przetwarzanie moich danych osobowych, w tym również udostępnienie ich do publicznej wiadomości, w zakresie zbycia w drodze przetargu w/w. nieruchomości”;
-
„Zapoznałem/am się ze stanem prawnym i technicznym nieruchomości”;
-
„W przypadku potrzeby wznowienia granic nieruchomości zobowiązuję się do zlecenia wykonania tej czynności na własny koszt”.
Oświadczenie można pobrać pod poniższym adresem internetowym:
https://www.bip.swietochlowice.pl/res/serwisy/pliki/26265151?version=1.0
-
Dowód tożsamości, a w przypadku podmiotów gospodarczych – aktualny wypis z Krajowego Rejestru Sądowego, wydany w ciągu ostatnich trzech miesięcy. W przypadku reprezentowania osoby prawnej przez pełnomocnika oprócz aktualnego wypisu z KRS winny przedłożyć pełnomocnictwo w formie aktu notarialnego upoważniające do działania na każdym etapie postępowania przetargowego.
W przypadku małżeńskiej wspólności majątkowej wymagana jest obecność małżonków na przetargu lub zwykłe pełnomocnictwo udzielone przez nieobecnego małżonka do uczestnictwa w przetargu w jego imieniu i składania oświadczeń związanych z przetargiem.
-
Cudzoziemcy mogą uczestniczyć w przetargu na zasadach określonych w ustawie z dnia 24 marca 1920 r. o nabywaniu nieruchomości przez cudzoziemców (Dz. U. z 2017 r. poz. 2278).
-
Wadium wpłacone przez uczestnika przetargu, który przetarg wygrał, zalicza się na poczet ceny nabycia prawa własności nieruchomości, a wadium wpłacone przez pozostałe osoby zwraca się nie później niż przed upływem 3 dni od dnia odwołania lub zamknięcia przetargu.
-
Osoba, która wygrała przetarg jest zobowiązana, przed zawarciem aktu notarialnego, do wpłaty przelewem na rachunek bankowy Urzędu Miejskiego w Świętochłowicach prowadzony przez PKO BP SA nr 70 1020 2313 0000 3202 0574 0545 wpłaty ceny nabycia prawa własności nieruchomości wraz z należnym podatkiem VAT. Miejsce i termin zawarcia umowy zostaną podane w pisemnym zawiadomieniu najpóźniej w ciągu 21 dni od dnia rozstrzygnięcia przetargu.
-
Wadium nie podlega zwrotowi, jeżeli osoba ustalona jako nabywca prawa własności nieruchomości nie stawi się bez usprawiedliwienia w miejscu i terminie ustalonym do zawarcia umowy nabycia prawa własności nieruchomości, podanym w zawiadomieniu, o którym mowa w pkt poprzedzającym niniejszego ogłoszenia. W takim przypadku organizator przetargu może odstąpić od zawarcia umowy.
-
Koszty sporządzenia umowy notarialnej oraz opłaty sądowe związane z dokonaniem wpisów w księgach wieczystych ponosi nabywca.
-
Nabywca przejmuje nieruchomość w stanie istniejącym, na zasadach określonych w ustawie z dnia 21 sierpnia 1997 r. o gospodarce nieruchomościami (Dz. U. z 2024 r., poz. 1145).
-
Prezydent Miasta Świętochłowice zastrzega sobie prawo odwołania przetargu z ważnych powodów.
-
Ogłoszenie niniejsze podlega publikacji w Infopublikatorze.pl, w Biuletynie Informacji Publicznej oraz zostało wywieszone na tablicy ogłoszeń w siedzibie Urzędu Miejskiego w Świętochłowicach przy ul. Katowickiej 54.
-
Dodatkowe informacje można uzyskać w Wydziale Gospodarki Nieruchomościami Urzędu Miejskiego w Świętochłowicach, pokój nr 118, tel. 32 34 91 934.
Z up. Prezydenta Miasta
Pierwszy Zastępca
Prezydenta Miasta
Sławomir Pośpiech