Lokal na wynajem



Szczegóły ogłoszenia
- Symbol oferty SZN-LW-89
- Typ oferty lokal na wynajem
- Czynsz wynajmu 6 900 zł / miesiąc
- Charakterystyka mieszkania 152 m2
- Otoczenie centrum miasta
- Stan lokalu deweloperski
Lokalizacja
- Adres zachodniopomorskie, Szczecin
Opis nieruchomości
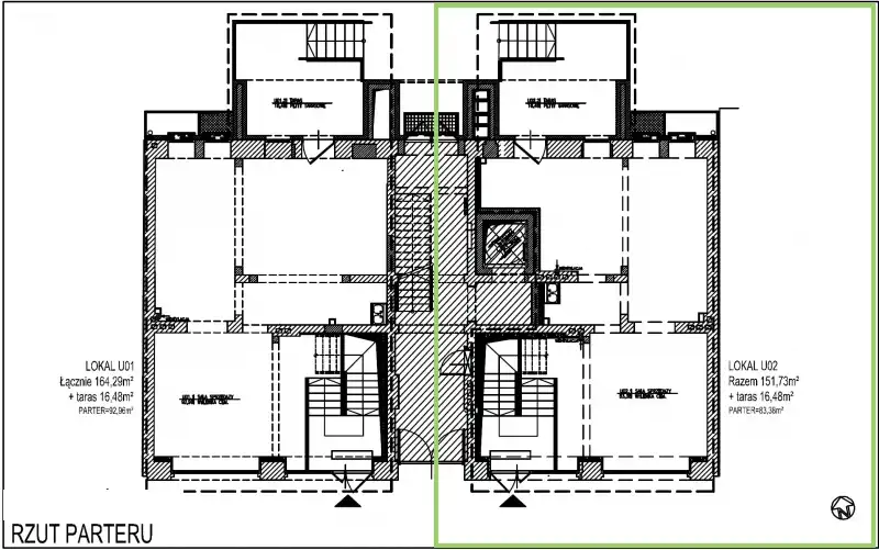
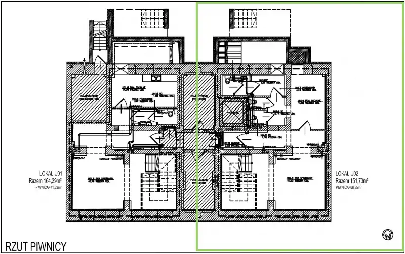
Na wynajem przestronny, dwupoziomowy lokal użytkowy o łącznej powierzchni 152 m² z dodatkowym tarasem 16 m², zlokalizowany w ścisłym centrum Szczecina.
PARAMETRY LOKALU:
-
Powierzchnia całkowita: 152 m²
-
Parter: 83 m²,
-
Wysoka piwnica z oknami: 69 m².
-
-
Taras: 16 m²
-
Czynsz najmu: 6 900 zł netto miesięcznie + VAT
Lokal o bardzo funkcjonalnym układzie, z dużym potencjałem aranżacyjnym. Parter (83 m²) stanowi przestronną powierzchnię idealną pod działalność usługową, handlową, biurową, showroom, gabinety specjalistyczne lub kancelarie.
Dodatkową przestrzeń stanowi wysoka piwnica (69 m²), która może pełnić funkcję zaplecza biurowego, magazynowego, sali szkoleniowej lub dodatkowych gabinetów.
Atutem nieruchomości jest również taras o powierzchni 16 m², który może zostać wykorzystany jako strefa relaksu dla pracowników lub przestrzeń dodatkowa dla klientów.
Lokal znajduje się w atrakcyjnej części miasta, w centralnej strefie Szczecina, z bardzo dobrą komunikacją miejską oraz dostępem do pełnej infrastruktury handlowo-usługowej. Lokalizacja zapewnia wygodny dojazd zarówno dla klientów, jak i pracowników.
Zapraszamy do kontaktu w celu uzyskania dodatkowych informacji oraz umówienia prezentacji.