Mieszkanie na sprzedaż
1 282 275 zł
70 m2














1 / 14
Szczegóły ogłoszenia
- Symbol oferty PRP-MS-74623
- Typ oferty mieszkanie na sprzedaż
- Cena 1 282 275 zł
- Charakterystyka mieszkania 69.5 m2, 2 pokoje
- Budynek aparthotel; rok budowy: 2025
- Rozkład mieszkania 2p piętro
- Media Ogrzewanie: C.O. GAZOWE; Woda: jest; Gaz: jest
- Balkon jest
- Dojazd ASFALTOWA
- Garaż garaż pod budynkiem
- Ilość sypialni 1
- Instalacje nowe
- Okna PCV
- Otoczenie góry
- Stan lokalu deweloperski
- Winda Tak
Lokalizacja
- Adres śląskie, Szczyrk
Opis nieruchomości
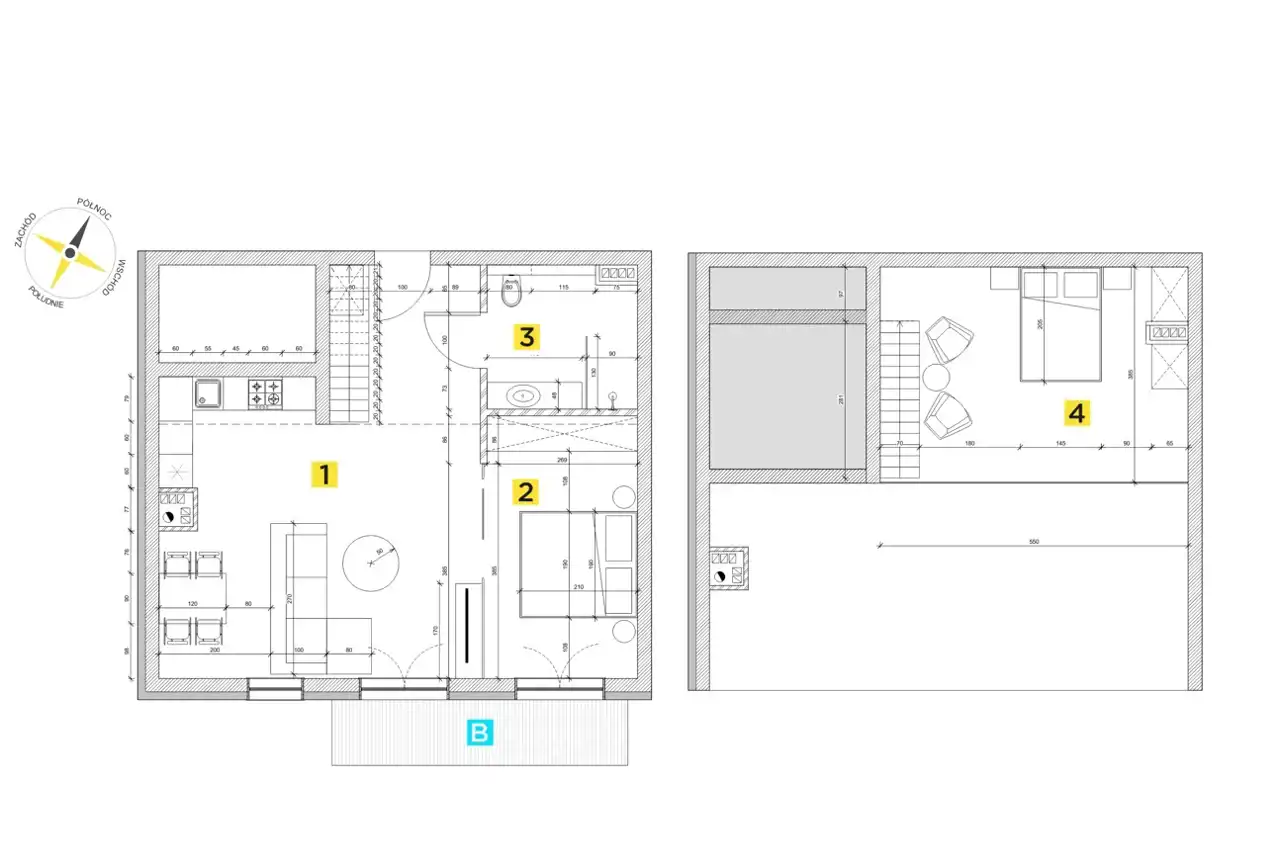
Na sprzedaż 2 - pokojowy apartament o pow. 69,50 m2, dostępny na II piętrze budynku, zlokalizowanego w nowoczesnej inwestycji z widokiem na góry, w Szczyrku. Apartamenty oferowane są w standardzie deweloperskim z możliwością wykończenia pod klucz. Podana cena jest kwotą brutto, zawierającą 23% podatku VAT.
W skład mieszkania wchodzą:
a) salon z aneksem kuchennym (pow. 37,80 m2),
b) sypialnia (pow. 13,55 m2),
c) łazienka (pow. 7,20 m2),
d) antresola (pow. 10,95 m2).
Do lokalu przynależy balkon o powierzchni 5,80 m2.
Ogrzewanie i ciepła woda z własnej kotłowni gazowej.
Możliwość zakupu miejsca postojowego w hali garażowej w cenie brutto 40 000 PLN netto - 49 200 PLN brutto, miejsce postojowe zewnętrzne w cenie 20 000 PLN netto -24 600 PLN brutto.
Termin zakończenia inwestycji - 31.03.2026r.
Cena apartamentu 1 042 500 PLN netto - 1 282 275.00 PLN brutto.
Cena wykończenia mieszkania pod klucz 3250PLN netto/m2 - 3997 PLN/m2 brutto.
Dla klientów zainteresowanych czerpaniem przychodu z wynajmu apartamentu, istnieje możliwość powierzenia go operatowi najmu krótkoterminowego.
Inwestycja składa się z dwóch budynków o trzech kondygnacjach naziemnych i jednej podziemnej, każdy składający się z 18 lokali wraz z garażami podziemnymi (10 stanowisk w każdym z budynków), narciarnią i rowerownią. Parking zewnętrzny obejmuje 20 miejsc postojowych.
Łącznik pomiędzy dwoma budynkami będzie przeszklony co zapewni piękny widok na góry. W łączniku zaplanowano utworzenie strefy SPA z kompleksem saun, jacuzzi, gabinetem masażu i siłownią.
Szczyrk to malownicza miejscowość położona w Beskidzie Śląskim, na południe od Bielska-Białej. To również jedna z najchętniej odwiedzanych miejscowości w okresie ferii zimowych przez amatorów sportów zimowych.
Adres strony internetowej, o którym mowa w art. 19a ust. 3 ustawy z dnia 20 maja 2021 r. o ochronie praw nabywcy lokalu mieszkalnego lub domu jednorodzinnego oraz Deweloperskim Funduszu Gwarancyjnym to apartandspa(kropka)pl. Adres strony został ujęty fonetycznie.
>> Kupujący zwolniony z kosztów obsługi biura i podatku PCC <<
Dane kontaktowe do agenta: Dorota Pękalska - Perz Tel: 608-827-080 E-mail: dorota.pekalska-perz@properco.pl For service in English call Magdalena Prokopoudi at +48 888-889-594.
Nota prawna
Opis oferty zawarty na stronie internetowej sporządzany jest na podstawie oględzin nieruchomości oraz informacji uzyskanych od właściciela, może podlegać aktualizacji i nie stanowi oferty określonej w art. 66 i następnych K.C.
Kalkulator kredytowy
Formularz kontaktowy