Mieszkanie na sprzedaż

































Szczegóły ogłoszenia
- Symbol oferty APN-MS-1359
- Typ oferty mieszkanie na sprzedaż
- Cena 495 000 zł
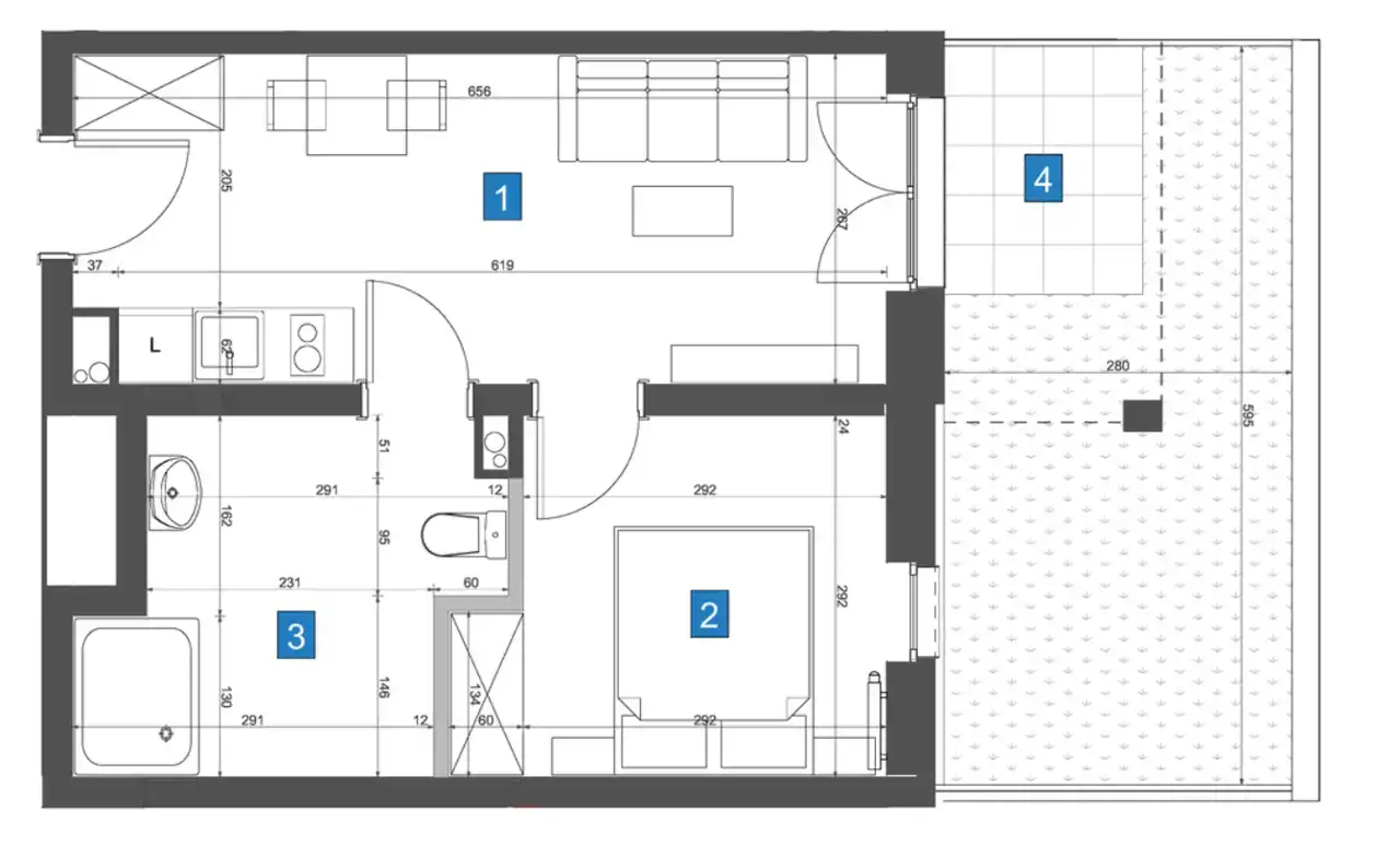
- Charakterystyka mieszkania 34.48 m2, 2 pokoje
- Budynek apartamentowiec; rok budowy: 2025
- Rozkład mieszkania wysoki parter piętro
- Media Ogrzewanie: C.O. GAZOWE; Woda: tak; Gaz: jest
- Balkon jest
- Czynsz Czynsz letni: 600 zł
- Dojazd asfalt
- Garaż brak
- Ilość sypialni 1
- Instalacje nowe
- Okna PCV 3 szyby, ciepły montaż
- Otoczenie zabudowa mieszana
- Stan lokalu częściowo po remoncie
- Taras taras mały
- Technologia budowlana beton, cegła
- Winda Tak
Lokalizacja
- Adres dolnośląskie, Szklarska Poręba, Marysin
Opis nieruchomości
Na sprzedaż Apartamenty ( lokal usługowy ) położony w samym centrum Szklarskiej Poręby ul. Słoneczna 8a.
Belle View Apartamenty z mini spa.
Pełna własność, możliwość wynajmu lub korzystania we własnym zakresie.
Lokal położony na parterze z niewielkim balkonem i ogródkiem. Strona świata północ / zachód - w okresie letnim słońce na koniec dnia zagląda do okien.
Za oknami na wprost znajduje się ogródek przedwojennego domu jednorodzinnego.
W budynku SAUNA, JACUZZI, ,NARCIARNIA, BAWIALNIA.
Ponad to terem jest monitorowany i budynku jest ochrona - jest tu bezpiecznie.
Lokal jest po remoncie - na ścianach są gładzie, panele na podłogach, łazienka ( jasne kafle, kabina typu walk in ), częściowo wykonany biały montaż.
Lokal sprzedawany na fakturę VAT - cena netto.
Miejsce postojowe dla samochodu to oddalony o 30 metrów od budynku parking publiczny - całoroczny.
Lokalizacja
Ul. Słoneczna 8a. Samo centrum Szklarskiej Poręby
240 metrów od ul. 1 Maja ( deptak )
Biedronka 150 metrów
Szlak Żółty - Schronisko od Łabskim Szczytem - Szrenica - Śnieżne Kotły 400 metrów
Najlepsza lokalizacja w Szklarskiej Porębie