Działka na sprzedaż

























Szczegóły ogłoszenia
- Symbol oferty KNF-GS-2037
- Typ oferty działka na sprzedaż
- Cena 1 500 000 zł
- Charakterystyka mieszkania 4424 m2
- Media Woda: brak; Kanalizacja: brak; Prąd: na działce; Gaz: brak
- Bezpieczeństwo ogrodzenie działki: mieszane
- Dojazd droga utwardzona
- Działka częściowo zagospodarowana, lekko nachylona, prostokąt
- Otoczenie rzeka
Lokalizacja
- Adres wielkopolskie, Szydłowo (gw), Tarnowo
Opis nieruchomości
Na sprzedaż – działka budowlana nad rzeką z potencjałem!
Działka oferuje bezpośredni, niczym nieprzysłonięty widok na rzekę, co stanowi wyjątkowy walor tej nieruchomości.
Prezentujemy atrakcyjną działkę budowlaną o powierzchni 4424 m², położoną w miejscowości Tarnowo, gmina Szydłowo – w spokojnej i malowniczej okolicy, z bezpośrednim dostępem do rzeki Dobrzycy.
Działka ma kształt prostokąta, jest w przeważającej części płaska a w pobliżu zejścia do rzeki- pochyła, z dostępem do drogi publicznej, co zapewnia wygodny dojazd przez cały rok. Dojazd drogą utwardzoną.
Najważniejsze atuty:
- Możliwość budowy domu jednorodzinnego – zostały już wyznaczone linie zabudowy.
- Działka oferuje bezpośredni, niczym nieprzysłonięty widok na rzekę, co stanowi wyjątkowy walor tej nieruchomości.
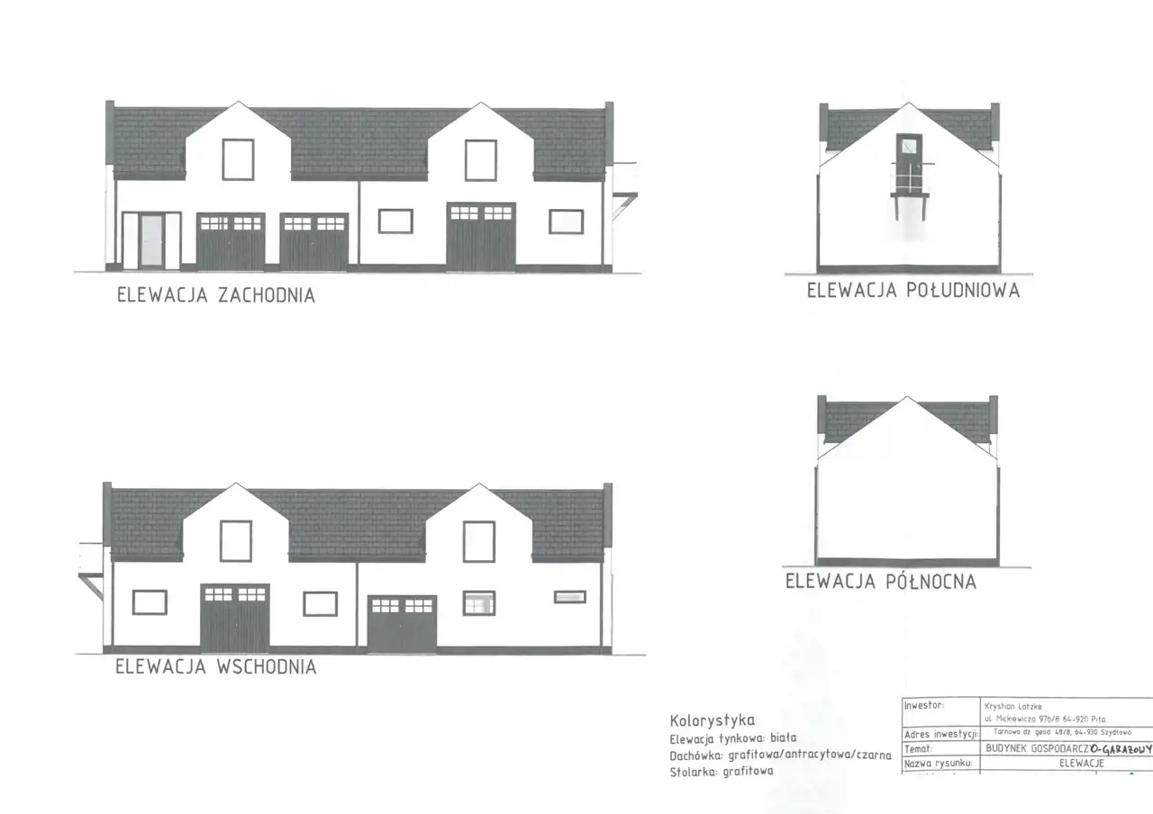
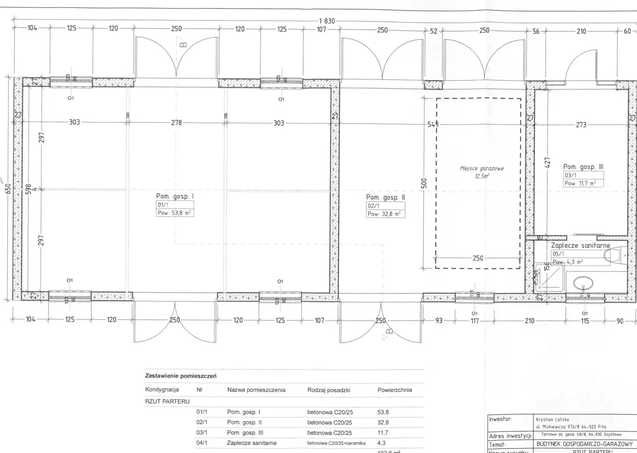
- Na działce rozpoczęto inwestycję budowy budynku gospodarczo-garażowego w stanie surowym otwartym (bez dachu) o łącznej powierzchni użytkowej 102,6 m², obejmującej:
- Pomieszczenie gospodarcze nr 1 – 53,8 m²
- Pomieszczenie gospodarcze nr 2 z wydzielonym garażem – 32,8 m²
- Pomieszczenie gospodarcze nr 3 – 11,7 m²
- Zaplecze sanitarne – 4,3 m²
To miejsce doskonale sprawdzi się zarówno pod zabudowę mieszkalną, jak i rekreacyjną — dla osób szukających przestrzeni, spokoju i kontaktu z naturą.
Warunki zabudowy budynku mieszkalnego:
- powierzchnia zabudowy od 90 do 180 m2
- szerokość elewacji frontowej od 10 do 14 m
- dach wielospadowy o kącie nachylenia od 30 do 45 stopni
- wysokość kalenicy od 6 do 9m
Zapraszamy do kontaktu i na prezentację!