Działka na sprzedaż
795 000 zł
223 m2













1 / 13
Szczegóły ogłoszenia
- Symbol oferty FRP-GS-198875
- Typ oferty działka na sprzedaż
- Cena 795 000 zł
- Charakterystyka mieszkania 223.17 m2
- Budynek rok budowy: 2025
- Media Woda: w drodze; Kanalizacja: w ulicy; Prąd: w ulicy; Gaz: w ulicy
- Bezpieczeństwo ogrodzenie działki: ogrodzona
- Dojazd asfalt
- Działka lekko nachylona, prostokąt
Lokalizacja
- Adres wielkopolskie, Szydłowo (gw), Szydłowo
Opis nieruchomości
Szydłowo
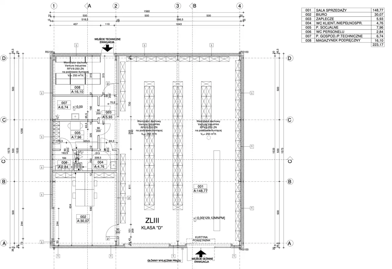
Przedmiotem oferty jest działka gruntu o pow. 4834m2 zabudowana halą magazynową (w trakcie budowy)
Hala magazynowa konstrukcji stalowej o pow. 223,17m2. Według projektu składająca się następujących pomieszczeń:
Media: (prąd, woda, kanalizacja, gaz) przy działce
Działka o pow. 4834m2 w całości ogrodzona.
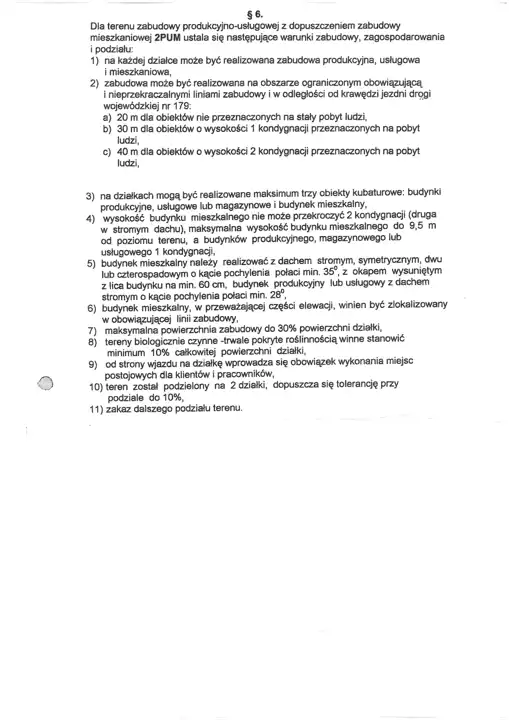
Teren objęty jest aktualnym planem zagospodarowania przestrzennego - teren zabudowy produkcyjno-usługowej z dopuszczeniem zabudowy mieszkaniowej.
Bardzo dobra lokalizacja - bezpośrednio przy drodze wojewódzkiej nr 179
Przedmiotem oferty jest działka gruntu o pow. 4834m2 zabudowana halą magazynową (w trakcie budowy)
Hala magazynowa konstrukcji stalowej o pow. 223,17m2. Według projektu składająca się następujących pomieszczeń:
- sala sprzedaży - 148,77m2
- biuro - 30,07m2
- zaplecze - 5,93m2
- wc klient - 4,76m2
- pom.socjalne - 7,96m2
- wc personelu - 2,84m2
- pom.gospodarcze/techniczne - 6,74m2
- magazynek podręczny - 16,10m2
Media: (prąd, woda, kanalizacja, gaz) przy działce
Działka o pow. 4834m2 w całości ogrodzona.
Teren objęty jest aktualnym planem zagospodarowania przestrzennego - teren zabudowy produkcyjno-usługowej z dopuszczeniem zabudowy mieszkaniowej.
Bardzo dobra lokalizacja - bezpośrednio przy drodze wojewódzkiej nr 179
Nota prawna
Opis oferty zawarty na stronie internetowej sporządzany jest na podstawie oględzin nieruchomości oraz informacji uzyskanych od właściciela, może podlegać aktualizacji i nie stanowi oferty określonej w art. 66 i następnych K.C.
Kalkulator kredytowy
Formularz kontaktowy