Lokal na wynajem





Szczegóły ogłoszenia
- Symbol oferty BEST-LW-15224
- Typ oferty lokal na wynajem
- Czynsz wynajmu 1 995 zł / miesiąc
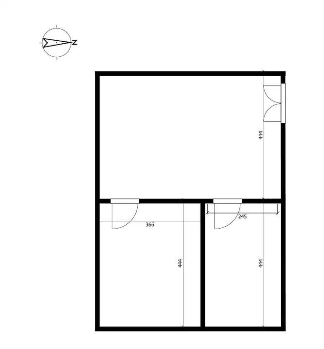
- Charakterystyka mieszkania 57 m2, 3 pokoje
- Budynek biurowo-usługowy; rok budowy: 2000
- Rozkład mieszkania 3p piętro
- Media Ogrzewanie: C.O. GAZOWE
- Miejsce parkingowe Tak
- Dojazd asfalt
- Instalacje ELEKTRYCZNA
- Okna aluminiowe
- Otoczenie centrum miasta
- Stan lokalu bardzo dobry
- Winda Tak
Lokalizacja
- Adres małopolskie, Tarnów
Opis nieruchomości
Oferujemy do wynajmu funkcjonalny lokal zlokalizowany w kultowym biurowcu przy najbardziej rozpoznawalnej ulicy miasta – ulicy Krakowskiej. To adres, który zapewnia doskonałą widoczność Twojej firmy.
Najważniejsze atuty nieruchomości:
-
Lokalizacja Premium: Ścisłe centrum Tarnowa gwarantuje łatwy dostęp dla klientów oraz świetną komunikację z każdą częścią miasta (bliskość dworca PKP/PKS oraz przystanków komunikacji miejskiej).
-
Nowoczesny Standard: Lokal znajduje się na trzecim piętrze zadbanego budynku handlowo-usługowego wyposażonego w cichobieżną windę, fotowoltaikę oraz duże okna zajmujące całą ścianę.
-
Funkcjonalny Układ: Na powierzchni 57m2 wydzielono trzy niezależne pomieszczenia - wygodny podział na gabinety, salę konferencyjną lub recepcję.
-
Komfort Pracy: Budynek jest w pełni klimatyzowany, co zapewnia optymalne warunki pracy nawet w upalne dni.
Pełne Uzbrojenie i Media:
Lokal jest gotowy do wejścia i wyposażony we wszystkie niezbędne media:
-
Klimatyzacja i wydajne ogrzewanie.
-
Szybki Internet i instalacja elektryczna.
-
Dostęp do wody i sanitariatów.
Przeznaczenie:
Ze względu na wysoki standard oraz strategiczne położenie, oferta jest idealna pod:
-
Szeroko pojętą działalność biurową (księgowość, IT, kancelarie).
-
Usługi profesjonalne (ubezpieczenia, doradztwo, szkolenia).
-
Firmy sieciowe szukające stabilnego punktu w centrum miasta.
Informacje finansowe i kontakt:
-
Cena: Podana kwota jest ceną netto.
-
Bezpieczeństwo: Zapewniamy pełne wsparcie – od pierwszej prezentacji po przekazanie kluczy. Przygotujemy dla Ciebie całą dokumentację najmu.
Nr oferty: LW 15224
Zadzwoń do mnie: Grzebień Krzysztof
tel.: +48 790 854 090
tel.: +48146888070
e-mail: kgrzebien@bestate.com.pl
BESTATE Tarnów
www.bestate.com.pl