Mieszkanie na sprzedaż


Szczegóły ogłoszenia
- Symbol oferty PKP-MS-550
- Typ oferty mieszkanie na sprzedaż
- Cena 130 000 zł
- Charakterystyka mieszkania 0 m2, 2 pokoje
- Budynek kamienica
- Technologia budowlana cegła
Lokalizacja
- Adres opolskie, Tarnów Opolski, Tarnów Opolski
Opis nieruchomości
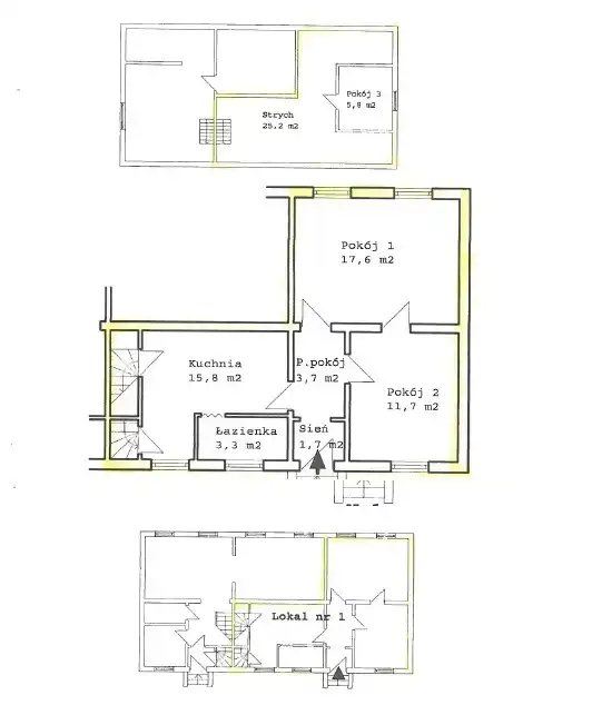
PKP S.A. Oddział Gospodarowania Nieruchomościami we Wrocławiu przedstawia Państwu ofertę sprzedaży, w drodze przetargu ustnego nieograniczonego, lokalu mieszkalnego położonego na parterze oraz poddaszu budynku mieszkalnego przy ulicy Dworcowej 11 o powierzchni użytkowej 59,60 m2.W skład lokalu mieszkalnego wchodzą 2 pokoje zlokalizowane na parterze o powierzchni 17,60 m2 i 11,70 m2 oraz pokój na poddaszu o powierzchni 5,80 m2 oraz kuchnia (15,80 m2), łazienka (3,30 m2), przedpokój oraz sień. Do mieszkania przynależą strych (25,20 m2), piwnica (4,00 m2) oraz pomieszczenia w budynku gospodarczy.
Lokal mieszkalny wyposażony w instalacje: elektryczną, wodną, kanalizacja z odprowadzeniem do zbiornika wybieralnego. Ogrzewanie: piece węglowe.
Atutem jest położenie nieruchomości w niedalekim sąsiedztwie dworca kolejowego.
PRZETARG ODBĘDZIE SIĘ 26.01.2018 o godz. 13.00 w siedzibie PKP S.A.
ODDZIAŁ GOSPODAROWANIA NIERUCHOMOŚCIAMI
WE WROCŁAWIU
UL. JOANNITÓW 13, 50-525 WROCŁAW
Cena wywoławcza nieruchomości:105 000,00 zł netto
Wadium: 10 500,00 zł ; Postąpienie: 2000,00 zł