Lokal na wynajem
7 840 zł
98 m2







1 / 7
Szczegóły ogłoszenia
- Symbol oferty PRT-LW-13348
- Typ oferty lokal na wynajem
- Czynsz wynajmu 7 840 zł / miesiąc
- Charakterystyka mieszkania 98 m2
- Budynek blok
- Rozkład mieszkania parter piętro
- Okna nowe PCV
- Stan lokalu bardzo dobry
Lokalizacja
- Adres kujawsko-pomorskie, Toruń, Bydgoskie Przedmieście
Opis nieruchomości
LOKAL 98M !!!! WITRYNA!!! PARKING!!
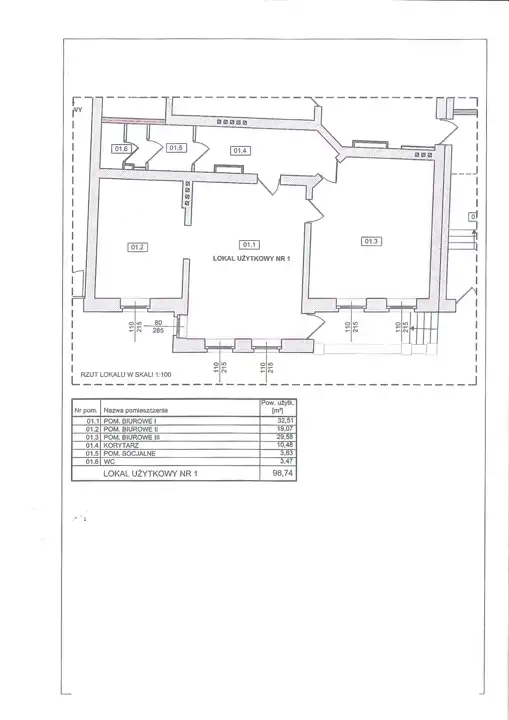
Lokal położony na parterze w reprezentacyjnym budynku, składa się z :
Lokal z dużym potencjałem, miejsce idealne pod kawiarnię, biuro, sklep , gabinet kosmetyczny, rehabilitacyjny, kancelarię, itd.
Czynsz najmu 80zł/m2 netto, czynsz do wspólnoty ok. 700zł ( ogrzewanie miejskie) plus energia według faktury. Dla konkretnego klienta cena do negocjacji.
Jednorazowa opłata dla biura nieruchomości wartość jednomiesięcznego czynszu najmu netto.
Szczegółowych informacji udzieli Państwu osoba prowadząca: tel.508 034 503, mail: izabela@partnernieruchomosci.net.pl
Lokal położony na parterze w reprezentacyjnym budynku, składa się z :
- komunikacja 10,48 m.kw
- powierzchnia biurowa 32,51 m.kw
- powierzchnia biurowa 19,07 m.kw
- powierzchnia biurowa 29,58 m.kw
- toaleta 3,47 m.kw
- pomieszczenie socjalne 3,63 m.kw
Lokal z dużym potencjałem, miejsce idealne pod kawiarnię, biuro, sklep , gabinet kosmetyczny, rehabilitacyjny, kancelarię, itd.
Czynsz najmu 80zł/m2 netto, czynsz do wspólnoty ok. 700zł ( ogrzewanie miejskie) plus energia według faktury. Dla konkretnego klienta cena do negocjacji.
Jednorazowa opłata dla biura nieruchomości wartość jednomiesięcznego czynszu najmu netto.
Szczegółowych informacji udzieli Państwu osoba prowadząca: tel.508 034 503, mail: izabela@partnernieruchomosci.net.pl
Nota prawna
Opis oferty zawarty na stronie internetowej sporządzany jest na podstawie oględzin nieruchomości oraz informacji uzyskanych od właściciela, może podlegać aktualizacji i nie stanowi oferty określonej w art. 66 i następnych K.C.
Formularz kontaktowy