Mieszkanie na sprzedaż













Szczegóły ogłoszenia
- Symbol oferty DNX-MS-29734
- Typ oferty mieszkanie na sprzedaż
- Cena 690 000 zł
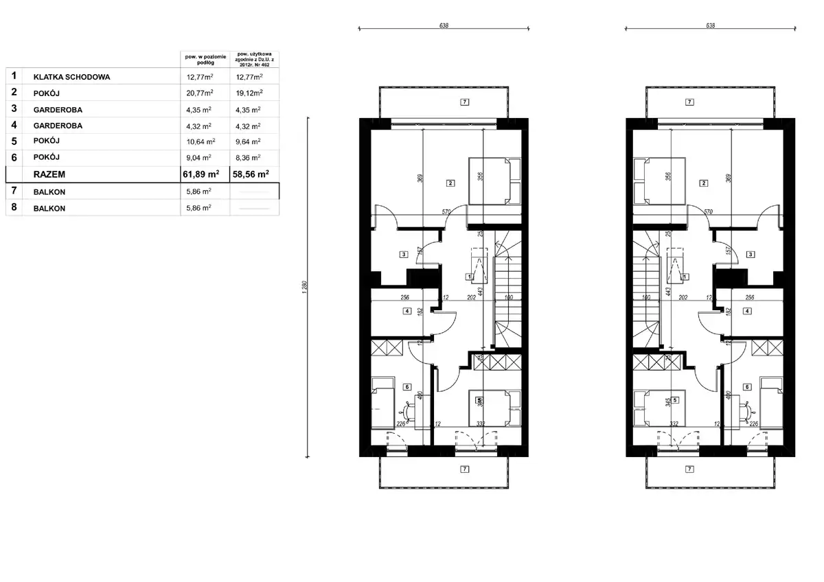
- Charakterystyka mieszkania 126 m2, 6 pokoi
- Budynek rok budowy: 2024
- Rozkład mieszkania 1p piętro
- Media Ogrzewanie: C.O. GAZOWE; Woda: ciepła - piecyk gazowy; Gaz: jest
- Balkon jest
- Okna PCV
- Stan lokalu deweloperski
Lokalizacja
- Adres małopolskie, chrzanowski, Trzebinia
Opis nieruchomości
DO SRZEDAŻY NOWE MIESZKANIA W STANDARDZIE DEWELOPERSKIM ZNAJDUJĄCE SIĘ W MŁOSZOWEJ OBOK TRZEBINI
OFERTA BEZ PROWIZJI ORAZ PODATKU PCC
Do sprzedaży mieszkanie dwupiętrowe o powierzchni 126 m2 znajdujące się na 1 i 2 piętrze. Mieszkanie z bezpośrednim i własnym wejściem klatką schodową, która przynależy tylko do tego mieszkania. Budynek, w którym znajduje się mieszkanie wybudowany został w wysokim standardzie. Przestronne balkony oraz duże przeszklenia nadają bryłą budynków nowoczesnego i eleganckiego charakteru. Osiedle zamknięte z monitoringiem, furtką i przesuwną bramą wjazdową. Wystawa mieszkania na północny wschód oraz południowy zachód. W całym mieszkaniu złożona jest podłogówka. Ogrzewanie oraz ciepła woda z pieca gazowego. Mieszkanie posiada 4 balkony. Istnieje możliwość wydzielenia dwóch niezależnych mieszkań po około 60 m2 każde. Istnieje możliwość zakupu dwóch miejsc postojowych naziemnych przynależnych do tego mieszkania. Cena jednego miejsca postojowego to 10 000,00 zł
Mieszkanie wyposażone jest w instalację takie jak:
- regulacji ciepła w każdym pokoju,
- instalacja klimatyzacji,
- instalacja zmiękczacza wody,
- instalacja pod panele fotowoltaiczne,
- instalacja pod elektryczne rolety,
- instalacja pod alarm.
LOKALIZACJA
Umiejscowienie inwestycji zapewnia szybki dojazd do dworca PKP w Trzebini, skąd odjeżdża szybka kolej do Krakowa i Katowic. W bliskiej odległości znajdują się również przystanki autobusowe, dzięki którym można dostać się do pobliskich miejscowości np. Chrzanowa, Krakowa i Katowic. Inwestycja zlokalizowana jest dokładnie po środku trasy Kraków – Katowice. Czas dojazdu samochodem do Krakowa i Katowic to około 35- 40 minut, a odległość to 40 km.
W bliskiej odległości Puszcza Dulowska i Pałac w Młoszowej. Dwa kilometry do Ośrodka Rekreacyjnego „Balaton” w Trzebini i 4 km do Zalewu Chechło w Trzebini. W odległości około 500 metrów znajduje się Szkoła Podstawowa nr 8, Zespół Szkół Ekonomiczno-Chemicznych oraz hala Widowiskowo – Sportowa w Trzebini.
W pobliżu pełna infrastruktura handlowo- usługowa. Najbliższy sklep w odległości 50 metrów od inwestycji. Do rynku w Trzebini ok. 2-3 minut autem oraz 10 minut na piechotę.
ZACHĘCAM DO KONTAKTU. Z MIŁĄ CHĘCIĄ PRZEPROWADZĘ CIEBIE PRZEZ CAŁY PROCES ZAKUPU TEJ NIERUCHOMOŚCI