Działka na sprzedaż

Szczegóły ogłoszenia
- Symbol oferty NET-GS-1906
- Typ oferty działka na sprzedaż
- Cena 3 300 000 zł
- Charakterystyka mieszkania 16799 m2
- Bezpieczeństwo ogrodzenie działki: brak
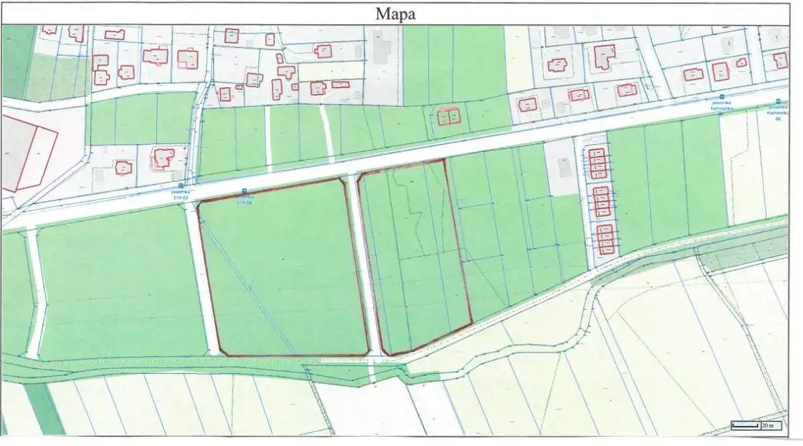
- Działka Niezagospodarowana, płaska, prostokąt
Lokalizacja
- Adres podkarpackie, Trzebownisko
Opis nieruchomości
Wójt Gminy Trzebownisko
Działając na podstawie art. 38 ust. 1 i 2 ustawy z dnia 21 sierpnia 1997 r. o gospodarce nieruchomościami ( Dz.U z 2024r., poz. 1145 ze zm. ) oraz uchwały Rady Gminy Trzebownisko nr XLIX/476/2023 z dnia 28 lutego 2023r. w sprawie sprzedaży w drodze przetargu części nieruchomości położonej w Jasionce, stanowiącej własność Gminy Trzebownisko.
ogłasza I przetarg ustny nieograniczony (licytacja) na sprzedaż nieruchomości gruntowych, stanowiących własność Gminy Trzebownisko, oznaczonych jako:
|
Lp. |
Położenie |
Oznaczenie nieruchomości wg księgi wieczystej oraz ewidencji gruntów |
Cena wywoławcza nieruchomości za całość netto |
Wadium |
|
1. |
Jasionka, gm. Trzebownisko 181613_2.0001.3370/2 181613_2.0001.3369/2 181613_2.0001.3367/5
|
księga wieczysta: RZ1Z/00072196/1, RZ1Z/00233094/3 - kompleks działek nr 3370/2, 3369/2, 3367/5 o łącznej pow. 1,6799 ha (obręb 0001)
|
3 300 000,00 zł netto* |
330 000,00 zł |
|
2. |
Jasionka, 181613_2.0001.3371/2 181613_2.0001.3372 181613_2.0001.3373 181613_2.0001.3374/2
|
księga wieczysta: RZ1Z/00072196/1 - kompleks działek nr 3371/2, 3372, 3373, 3374/2 o łącznej pow. 1,0492 ha
|
2 100 000,00 zł netto* |
210 000,00 zł |
- *Uwaga: Do ceny nabycia nieruchomości należy doliczyć podatek Vat 23%.
- Postąpienie nie może być niższe niż 1% ceny wywoławczej z zaokrągleniem do pełnych dziesiątek złotych.
Przeznaczenie nieruchomości:
Nieruchomości zostały objęte obowiązującym Planem Zagospodarowania Przestrzennego
w miejscowości Jasionka uchwalonym przez Radę Gminy Trzebownisko w dniu 27 czerwca 2022r. Uchwałą nr XLII/407/2022, zgodnie z którym leżą w terenie oznaczonym: kompleks działek nr 3370/2, 3369/2, 3367/5- 1MW/U- teren zabudowy mieszkaniowej wielorodzinnej z dopuszczeniem usług, kompleks działek nr 3371/2, 3372, 3373, 3374/2- 1MN- teren zabudowy mieszkaniowej jednorodzinnej.
Opis nieruchomości:
Lokalizacja nieruchomości określona jest jako dobra, działki położone są we wschodniej części miejscowości Jasionka, od północnej strony przylegają do drogi relacji Jasionka- Medynia Łańcucka. Dojazd do działek odbywa się poprzez wydzielone drogi wewnętrzne z drogi powiatowej. Działki sprzedawane są na podstawie danych z ewidencji gruntów. Przed wykonaniem inwestycji należy wykonać badanie geologiczne gruntu.
Kompleks działek nr 3370/2, 3369/2, 3367/5- Północna część kompleksu przylega do drogi asfaltowej, od południa do drogi gruntowej, od wschodu i zachodu graniczy z wydzielonymi drogami wewnętrznymi. Dojazd do kompleksu w skali ocen określono jako dobry. W północno- zachodnim rogu działki nr 3370/2 znajduje się niewielki odcinek sieci gazowej g150, południową część działek przecinają sieć wodociągowa i kanalizacyjna. Kompleks przecinają dwie równoległe względem siebie linie elektroenergetyczne, na działce nr 3370/2 stoją obok siebie dwa słupy elektroenergetyczne. Dodatkowo w południowo- zachodnim rogu działki nr 3370/2 przechodzi podziemna sieć elektroenergetyczna. Teren płaski, kształt regularny, przybliżony do prostokąta. Działki stanowią następujące użytki: nr 3370/2-PsV- 1,3161ha, dr-0,0001ha, 3369/2- PsV-0,0384ha, 3367/5- PsV- 0,3253.Działki znajdują się w obszarze szczególnego zagrożenia powodzią zgodnie z mapą zagrożenia powodziowego.
Kompleks działek nr 3371/2, 3372, 3373, 3374/2- Północna część kompleksu przylega do drogi asfaltowej, od południa i zachodu do dróg gruntowych, od wschodu graniczy z terenami podobnymi. Dojazd z drogi publicznej powiatowej poprzez drogę wewnętrzną. Południową część nieruchomości przecinają sieć wodociągowa i kanalizacyjna, kompleks przecinają dwie równoległe względem siebie linie elektroenergetyczne, w południowej części kompleksu stoją obok siebie dwa słupy elektroenergetyczne. Działki stanowią następujące użytki: 3371/2- ŁIV-0,0856ha, 3372- ŁIV-0,26ha, 3373-Lzr-RIVb-0,12ha, RIVa-0,23ha, RIVb-0,11ha, 3374/2- LzRIVb-0,0603 ha, RIVa- 0,1149 ha, RIVb-0,0684ha. Działki znajdują się w obszarze szczególnego zagrożenia powodzią zgodnie
z mapą zagrożenia powodziowego.
Obciążenia nieruchomości:
Nieruchomości nie są obciążone i nie są przedmiotem zobowiązań, objęte są księgą wieczystą nr RZ1Z/00072196/1. Dla działki nr 3369/2 prowadzona jest księga wieczysta nr RZ1Z/00233094/3.
*Informacje dodatkowe:
1. Nieruchomości posiadają możliwość uzbrojenia. Szczegóły dotyczące rozbudowy sieci zostaną zawarte w warunkach rozbudowy sieci wod. kan. po określeniu przez Inwestora szczegółowego zapotrzebowania ilościowego na dostawę wody i odbiór ścieków. Koszt wpięcia do sieci pokrywa Inwestor. Ewentualna przebudowa linii elektroenergetycznych, które przecinają działki ciążą po stronie Inwestora.
2. Ograniczenia- informuję, że działki znajdują się w sąsiedztwie obszaru przewidywanej lokalizacji wariantu inwestorskiego (W2) projektowanej linii kolejowej w ramach inwestycji pn. „Budowa linii kolejowej nr 58 Łętownia- Rzeszów”.
Przetarg odbędzie się w dniu 5 maja 2026r. o godz. 1000 w siedzibie Urzędu Gminy w Trzebownisku, 36-001 Trzebownisko 976.
Warunkiem dopuszczenia do udziału w przetargu jest uiszczenie wadium, które należy wpłacić w pieniądzu polskim przelewem na konto Gminy Trzebownisko w Banku Spółdzielczym w Jasionce Nr 24 9191 0000 2001 0000 0143 0062 do dnia 29 kwietnia 2026r. włącznie ( liczy się termin wpływu na rachunek bankowy). Wadium należy wpłacić dla każdego kompleksu działek osobno. W tytule przelewu należy podać imię i nazwisko wpłacającego lub nazwę oraz nr działek z dopiskiem przetarg.
Uczestnik przetargu może działać przez pełnomocnika, który powinien posiadać stosowne pełnomocnictwo szczególnie do udziału w przetargu w imieniu mocodawcy.
Działki sprzedawane są na podstawie danych z ewidencji gruntów i budynków. Geodezyjne okazanie granic nieruchomości następuje na koszt nabywcy.
Wójt Gminy może odwołać ogłoszony przetarg z ważnych powodów (art. 38 ust.4 ustawy o gospodarce nieruchomościami, Dz. U. z 2024r., poz. 1145 ze zm.).
W ciągu 21 dni od dnia rozstrzygnięcia przetargu, organizator przetargu zawiadomi osobę ustaloną jako nabywcę nieruchomości o miejscu i terminie zawarcia umowy sprzedaży. Jeżeli osoba ustalona jako nabywca nieruchomości nie przystąpi bez usprawiedliwienia do zawarcia umowy w podanym miejscu i terminie organizator przetargu może odstąpić od zawarcia umowy, a wpłacone wadium nie podlega zwrotowi.
Termin uiszczenia ceny sprzedanej nieruchomości upływa najpóźniej w dniu poprzedzającym dzień zawarcia umowy sprzedaży.
Ogłoszenie o przetargu wywiesza się na tablicach ogłoszeń w siedzibach:
1. Urzędu Gminy Trzebownisko,
2. Sołectwa Jasionka
3. na stronie internetowej Urzędu Gminy: www.trzebownisko.pl oraz BIP Gminy Trzebowisko www.bip.trzebownisko.pl
4. Wyciąg z ogłoszenia o przetargu zamieszcza się w prasie.
Szczegółowe informacje dotyczące w/w nieruchomości można uzyskać w Urzędzie Gminy w Trzebownisku, 36-001 Trzebownisko 976, tel. (017) 77- 13- 714, 713., pok. 23, II piętro.