Mieszkanie na sprzedaż
229 000 zł
79 m2






















1 / 22
Szczegóły ogłoszenia
- Symbol oferty CNG-MS-2982
- Typ oferty mieszkanie na sprzedaż
- Cena 229 000 zł
- Charakterystyka mieszkania 79.38 m2, 4 pokoje
- Budynek budynek wielorodzinny; rok budowy: 1960
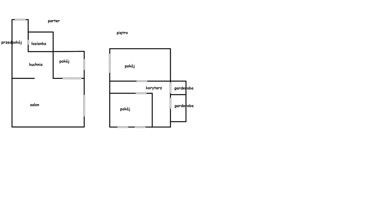
- Rozkład mieszkania 1p piętro
- Media Ogrzewanie: KOMINEK; Woda: ciepła - piecyk gazowy; Gaz: jest
- Czynsz Czynsz letni: 168.33 zł
- Ilość sypialni 4
- Instalacje dobre
- Okna PCV
- Stan lokalu do wprowadzenia
- Technologia budowlana cegła
Lokalizacja
- Adres wielkopolskie, Ujście
Opis nieruchomości
Chcesz sprawdzić swoją zdolność kredytową? Skorzystaj z bezpłatnych usług Naszego eksperta kredytowego.
Na SPRZEDAŻ w rewelacyjnej cenie mieszkanie dwupoziomowe w Ujściu! Zaledwie 10 minut od Piły, co daje wyjątkowe połączenie wygody miejskiego życia i spokoju zacisznej okolicy domów jednorodzinnych przy ulicy Browarskiej.
Polecam uwadze wyjątkową nieruchomość znajdującą się na I piętrze w budynku wielorodzinnym, w spokojnym otoczeniu, nad rzeką.
Mieszkanie składa się z przestronnego salonu stanowiącego strefę dzienną i jadalnianą, otwartego na kuchnię, łazienki i korytarza. Salon oddzielony od strefy sypialnej przesuwnymi, nowoczesnymi drzwiami. Na górze dwa niezależne pokoje oraz dwie garderoby.
Powierzchnia całkowita 79,38 m2, użytkowa 53,05 m2.
Wielkości pomieszczeń prezentują się następująco:
- salon 19,10 m2 ,
- kuchnia 3,47 m2,
- łazienka 2,64 m2,
- sypialnia 4,71 m2,
- pokój 10,63 m2 (po odliczeniu skosów 6,30 m2),
- pokój 7,69 m2 (po odliczeniu skosów 3,60 m2),
- garderoba 3,76 m2,
- garderoba 1,16 m2.
Do mieszkania przynależy duża piwnica o powierzchni aż 13,30 m2.
Nieruchomość po remoncie nie wymaga wkładu, gotowa do zamieszkania. Na podłogach w pokojach panele, ściany odmalowane, wytapetowane. W korytarzu, kuchni i łazience kafelki.
Miejsce idealne dla rodziny z dziećmi.
Miesięczny czynsz wynosi 168,33 zł. Dodatkowe opłaty wg zużycia woda, gaz oraz prąd. Ogrzewanie - kominek na drewno i brykiet drzewny z rozprowadzeniem do wszystkich pomieszczeń. Dodatkowym źródłem ogrzewania są kaloryfery elektryczne.
Część strychowa zaaranżowana na przestrzeń użytkową w ramach miesięcznej opłaty 42,58 zł (wliczonej w czynsz), istnieje możliwość wykupienia na własność za zgodą wspólnoty .
Serdecznie zapraszam do kontaktu oraz na prezentację!
Dane opisu nieruchomości podane są przez zamawiającego. Powyższy opis ma charakter informacyjny i nie stanowi oferty w rozumieniu przepisów Kodeksu Cywilnego. Wszelkie prawa zastrzeżone! Opis oraz zdjęcia są własnością biura. Kopiowanie, powielanie, wykorzystywanie zdjęć i opisu bez zgody autora zabronione. Przy zakupie tej nieruchomości należy uwzględnić koszty notarialne oraz wynagrodzenie biura nieruchomości za usługę.
Na SPRZEDAŻ w rewelacyjnej cenie mieszkanie dwupoziomowe w Ujściu! Zaledwie 10 minut od Piły, co daje wyjątkowe połączenie wygody miejskiego życia i spokoju zacisznej okolicy domów jednorodzinnych przy ulicy Browarskiej.
Polecam uwadze wyjątkową nieruchomość znajdującą się na I piętrze w budynku wielorodzinnym, w spokojnym otoczeniu, nad rzeką.
Mieszkanie składa się z przestronnego salonu stanowiącego strefę dzienną i jadalnianą, otwartego na kuchnię, łazienki i korytarza. Salon oddzielony od strefy sypialnej przesuwnymi, nowoczesnymi drzwiami. Na górze dwa niezależne pokoje oraz dwie garderoby.
Powierzchnia całkowita 79,38 m2, użytkowa 53,05 m2.
Wielkości pomieszczeń prezentują się następująco:
- salon 19,10 m2 ,
- kuchnia 3,47 m2,
- łazienka 2,64 m2,
- sypialnia 4,71 m2,
- pokój 10,63 m2 (po odliczeniu skosów 6,30 m2),
- pokój 7,69 m2 (po odliczeniu skosów 3,60 m2),
- garderoba 3,76 m2,
- garderoba 1,16 m2.
Do mieszkania przynależy duża piwnica o powierzchni aż 13,30 m2.
Nieruchomość po remoncie nie wymaga wkładu, gotowa do zamieszkania. Na podłogach w pokojach panele, ściany odmalowane, wytapetowane. W korytarzu, kuchni i łazience kafelki.
Miejsce idealne dla rodziny z dziećmi.
Miesięczny czynsz wynosi 168,33 zł. Dodatkowe opłaty wg zużycia woda, gaz oraz prąd. Ogrzewanie - kominek na drewno i brykiet drzewny z rozprowadzeniem do wszystkich pomieszczeń. Dodatkowym źródłem ogrzewania są kaloryfery elektryczne.
Część strychowa zaaranżowana na przestrzeń użytkową w ramach miesięcznej opłaty 42,58 zł (wliczonej w czynsz), istnieje możliwość wykupienia na własność za zgodą wspólnoty .
Serdecznie zapraszam do kontaktu oraz na prezentację!
Dane opisu nieruchomości podane są przez zamawiającego. Powyższy opis ma charakter informacyjny i nie stanowi oferty w rozumieniu przepisów Kodeksu Cywilnego. Wszelkie prawa zastrzeżone! Opis oraz zdjęcia są własnością biura. Kopiowanie, powielanie, wykorzystywanie zdjęć i opisu bez zgody autora zabronione. Przy zakupie tej nieruchomości należy uwzględnić koszty notarialne oraz wynagrodzenie biura nieruchomości za usługę.
Nota prawna
Opis oferty zawarty na stronie internetowej sporządzany jest na podstawie oględzin nieruchomości oraz informacji uzyskanych od właściciela, może podlegać aktualizacji i nie stanowi oferty określonej w art. 66 i następnych K.C.
Kalkulator kredytowy
Formularz kontaktowy