Obiekt na sprzedaż
1 599 000 zł
131 m2

















1 / 17
Szczegóły ogłoszenia
- Symbol oferty YNK-BS-2716
- Typ oferty obiekt na sprzedaż
- Cena 1 599 000 zł
- Charakterystyka mieszkania 130.62 m2
- Budynek rok budowy: 2018
- Media Ogrzewanie: kominkowe; Woda: tak - miejska; Kanalizacja: tak; Prąd: jest
- Miejsce parkingowe Tak
- Dojazd droga utwardzona
Lokalizacja
- Adres pomorskie, Ustka (gw), Przewłoka
Opis nieruchomości
Oferujemy do sprzedaży w pełni działający i znajdujący się w doskonałym stanie technicznym ośrodek wypoczynkowy nad morzem w Przewłoce, gm. Ustka – 1 km od morza Bałtyckiego.
! NOWA NIŻSZA CENA !
UWAGA! – ośrodek sprzedawany z pełnym wyposażeniem – domki i zaplecze, gotowy do przyjęcia gości bez żadnych inwestycji.
Obiekt mieści się zaledwie 1km w linii prostej od wejścia na przepiękną, szeroką, piaszczystą plażę z kilkoma wejściami przez nadmorski las. Plaża z dogodnie usytuowanymi parkingami. Ośrodek zlokalizowany jest na działce o powierzchni 1642m2, składa się z 3 drewnianych domków usytuowanych na palach, w których łącznie możemy swobodnie przygotować noclegi nawet dla kilkunastu osób.
Posiadłość posiada bramę wjazdową. Teren przed każdym domkiem utwardzony polbrukiem, dostępne miejsca parkingowe. Ponadto, każdy domek posiada częściowo zadaszony taras z zestawem mebli ogrodowych.
Na terenie ośrodka, zlokalizowano również domek holenderski służący jako biuro w którym może mieszkać osoba zarządzająca ośrodkiem.
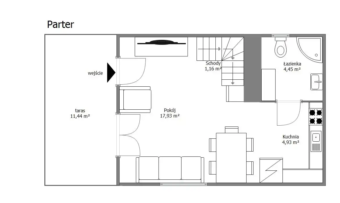
Do dyspozycji 3 domki o jednakowym rozkładzie pomieszczeń. Powierzchnia użytkowa każdego z nich to 43,54m2. Parter składa się z salonu/pokoju dziennego (17,93 m2), kuchni (4,93 m2), łazienki (4,45 m2) oraz schodów (1,16 m2). Ściany w salonie w boazerii, sufit z desek sosnowych z uwidocznionymi belkami stropowymi. W centralnym miejscu posadowiony kominek. Duże drzwi balkonowe prowadzące na taras. Salon otwarty na część kuchenną. Kuchnia zabudowana praktycznymi meblami, wyposażona w podstawowy sprzęt kuchenny (płyta, okap, lodówka, kuchnia mikrofalowa). Łazienka w wyłożona glazurą i terakotą, wyposażona w narożną kabinę prysznicową, umywalkę oraz toaletę. Na górę domku prowadzą ładne, drewniane schody. Do dyspozycji dwie sypialnie - większa z balkonem oraz korytarz. Podłogi drewniane, ściany i sufit – boazeria. Okna (w całym domku) – PCV.
Domki są w doskonałym stanie technicznym i wizualnym i praktycznie nie noszą śladów użytkowania. Konstrukcja drewniana, wzmocniony szkielet konstrukcji dachowej, zabezpieczenie przed silnym wiatrem, dach pokryty blachodachówką.
Media: prąd, woda, kanalizacja.
Ogrzewanie: elektryczne oraz kominek w każdym domku
Forma własności: pełna własność
Rok budowy: 2018
CENA: 1 599 000 zł
Oferujemy Państwu pomoc w uzyskaniu kredytu hipotecznego. Współpracujemy z kilkoma kluczowymi bankami, a ofertę dobieramy indywidualnie biorąc pod uwagę kryteria wskazane przez Ciebie, jak i Twoją kondycję finansową.
Kupujący nie płaci żadnej prowizji pośrednika. Prowizję pośrednika pokrywa Sprzedający. Gwarantujemy bezpieczeństwo i obsługę prawną.
Oferta godna polecenia. Zadzwoń i umów się na prezentację! Kontakt Tomasz: 535 630 680
Niniejsza oferta nie stanowi oferty w rozumieniu kodeksu cywilnego, a dane w niej zawarte mają jedynie charakter informacyjny i mogą ulec zmianie.
! NOWA NIŻSZA CENA !
UWAGA! – ośrodek sprzedawany z pełnym wyposażeniem – domki i zaplecze, gotowy do przyjęcia gości bez żadnych inwestycji.
Obiekt mieści się zaledwie 1km w linii prostej od wejścia na przepiękną, szeroką, piaszczystą plażę z kilkoma wejściami przez nadmorski las. Plaża z dogodnie usytuowanymi parkingami. Ośrodek zlokalizowany jest na działce o powierzchni 1642m2, składa się z 3 drewnianych domków usytuowanych na palach, w których łącznie możemy swobodnie przygotować noclegi nawet dla kilkunastu osób.
Posiadłość posiada bramę wjazdową. Teren przed każdym domkiem utwardzony polbrukiem, dostępne miejsca parkingowe. Ponadto, każdy domek posiada częściowo zadaszony taras z zestawem mebli ogrodowych.
Na terenie ośrodka, zlokalizowano również domek holenderski służący jako biuro w którym może mieszkać osoba zarządzająca ośrodkiem.
Do dyspozycji 3 domki o jednakowym rozkładzie pomieszczeń. Powierzchnia użytkowa każdego z nich to 43,54m2. Parter składa się z salonu/pokoju dziennego (17,93 m2), kuchni (4,93 m2), łazienki (4,45 m2) oraz schodów (1,16 m2). Ściany w salonie w boazerii, sufit z desek sosnowych z uwidocznionymi belkami stropowymi. W centralnym miejscu posadowiony kominek. Duże drzwi balkonowe prowadzące na taras. Salon otwarty na część kuchenną. Kuchnia zabudowana praktycznymi meblami, wyposażona w podstawowy sprzęt kuchenny (płyta, okap, lodówka, kuchnia mikrofalowa). Łazienka w wyłożona glazurą i terakotą, wyposażona w narożną kabinę prysznicową, umywalkę oraz toaletę. Na górę domku prowadzą ładne, drewniane schody. Do dyspozycji dwie sypialnie - większa z balkonem oraz korytarz. Podłogi drewniane, ściany i sufit – boazeria. Okna (w całym domku) – PCV.
Domki są w doskonałym stanie technicznym i wizualnym i praktycznie nie noszą śladów użytkowania. Konstrukcja drewniana, wzmocniony szkielet konstrukcji dachowej, zabezpieczenie przed silnym wiatrem, dach pokryty blachodachówką.
Media: prąd, woda, kanalizacja.
Ogrzewanie: elektryczne oraz kominek w każdym domku
Forma własności: pełna własność
Rok budowy: 2018
CENA: 1 599 000 zł
Oferujemy Państwu pomoc w uzyskaniu kredytu hipotecznego. Współpracujemy z kilkoma kluczowymi bankami, a ofertę dobieramy indywidualnie biorąc pod uwagę kryteria wskazane przez Ciebie, jak i Twoją kondycję finansową.
Kupujący nie płaci żadnej prowizji pośrednika. Prowizję pośrednika pokrywa Sprzedający. Gwarantujemy bezpieczeństwo i obsługę prawną.
Oferta godna polecenia. Zadzwoń i umów się na prezentację! Kontakt Tomasz: 535 630 680
Niniejsza oferta nie stanowi oferty w rozumieniu kodeksu cywilnego, a dane w niej zawarte mają jedynie charakter informacyjny i mogą ulec zmianie.
Nota prawna
Opis oferty zawarty na stronie internetowej sporządzany jest na podstawie oględzin nieruchomości oraz informacji uzyskanych od właściciela, może podlegać aktualizacji i nie stanowi oferty określonej w art. 66 i następnych K.C.
Kalkulator kredytowy
Formularz kontaktowy