Mieszkanie na sprzedaż











Szczegóły ogłoszenia
- Symbol oferty GRS-MS-3032
- Typ oferty mieszkanie na sprzedaż
- Cena 399 000 zł
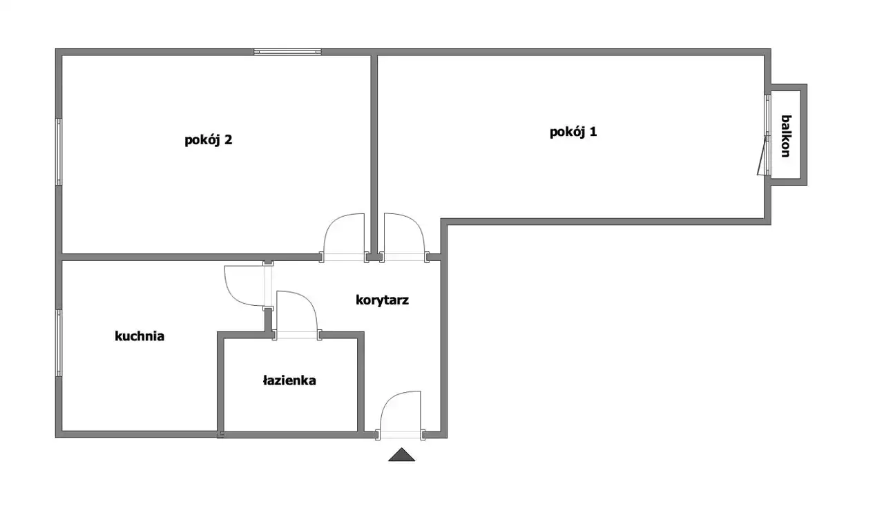
- Charakterystyka mieszkania 45.45 m2, 2 pokoje
- Budynek blok; rok budowy: 1970
- Rozkład mieszkania 3p piętro
- Media Ogrzewanie: C.O. miejskie; Woda: ciepła - miejska; Gaz: jest
- Balkon jest
- Okna PCV
- Stan lokalu do remontu
- Technologia budowlana beton, płyta
Lokalizacja
- Adres pomorskie, Ustka
Opis nieruchomości
Na sprzedaż mieszkanie 2-pokojowe w Ustce – tylko 400 m od morza!
Oferujemy na sprzedaż mieszkanie o powierzchni 45,45 m², położone na 3. piętrze czteropiętrowego bloku w Ustce przy Placu Wolności. Nieruchomość znajduje się w doskonałej lokalizacji – jedynie kilka minut spacerem od plaży i nadmorskiej promenady.
Atuty mieszkania:
- dwa niezależne, ustawne pokoje,
- osobna, jasna kuchnia,
- balkon z widokiem na zieleń,
- mieszkanie rozkładowe, dwustronne,
- nowe okna PCV,
- do lokalu przynależy piwnica,
- ogrzewanie i woda z sieci miejskiej,
- czynsz do wspólnoty 560zł.
Dodatkowym atutem jest możliwość przerobienia układu na 3 pokoje, co znacznie zwiększa funkcjonalność i potencjał inwestycyjny.
Mieszkanie wymaga remontu, co daje przyszłemu właścicielowi możliwość aranżacji wnętrza według własnych potrzeb i gustu.
Lokalizacja – Plac Wolności, serce Ustki:
Plac Wolności to reprezentacyjne centrum Ustki – z licznymi kawiarniami, restauracjami i punktami usługowymi. W najbliższej okolicy znajdują się:
- deptak prowadzący bezpośrednio do portu i plaży,
- sklepy, apteki, banki i urzędy,
- przystanki komunikacji miejskiej,
- tereny spacerowe i rekreacyjne.
Dzięki takiemu położeniu mieszkanie doskonale sprawdzi się zarówno do zamieszkania na stałe, jak i jako inwestycja pod wynajem turystyczny.
Ustka – nadmorski kurort:
Ustka to jedno z najpopularniejszych nadmorskich uzdrowisk w Polsce, cenione za szerokie, piaszczyste plaże, malowniczą promenadę, liczne atrakcje turystyczne oraz bogatą infrastrukturę uzdrowiskową. Miasto przyciąga turystów przez cały rok – latem plażowiczów, zimą kuracjuszy korzystających z usteckiego mikroklimatu i sanatoriów.
Cena: 399 000 zł
Strona Kupująca pokrywa wynagrodzenie prowizyjne dla biura.
Więcej informacji uzyskasz kontaktując się z nami:
799 333 633 – Dominika Wójcik (opiekun oferty)
728 20 20 30 – Marta Patyna
669 647 067 – Karolina Jakuczun
503 901 101 – Adrianna Iwanicka, licencja 23687
799 077 000 – Wiktoria Gołębiewska
728 111 007 – Przemysław Pryzwan
799 799 397 – Dominika Szramiak
Serdecznie zapraszam Państwa na prezentację nieruchomości, z przyjemnością odpowiem na wszelkie pytania oraz udzielę dodatkowych informacji.
Zamierzasz kupić nieruchomość i skorzystać z finansowania banku? Pomożemy dokonać Ci dobrego wyboru najlepszej oferty spośród wielu banków. Nasz doradca dostosuje ofertę kredytu hipotecznego do Twoich potrzeb i oczekiwań oraz będzie do Twojej dyspozycji na każdym etapie procesu kredytowego.
Niniejsza oferta nie stanowi oferty w rozumieniu Kodeksu Cywilnego, a dane w niej zawarte mają jedynie charakter informacyjny i mogą ulec zmianie.