Mieszkanie na sprzedaż



















Szczegóły ogłoszenia
- Symbol oferty GRS-MS-3115
- Typ oferty mieszkanie na sprzedaż
- Cena 429 000 zł
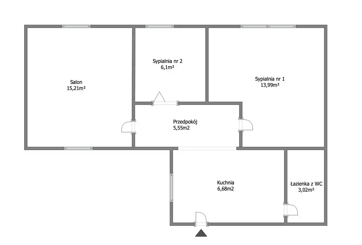
- Charakterystyka mieszkania 50.5 m2, 3 pokoje
- Budynek kamienica wolnostojąca
- Rozkład mieszkania parter piętro
- Okna PCV
- Stan lokalu bardzo dobry
- Umeblowanie pełne
Lokalizacja
- Adres pomorskie, Ustka
Opis nieruchomości
OFERTA SPRZEDAŻY MIESZKANIA – USTKA, UL. MARYNARKI POLSKIEJ
Proponujemy na sprzedaż funkcjonalne, przestronne i bardzo ustawne mieszkanie o powierzchni 50,55 m², położone na parterze zadbanego budynku przy ul. Marynarki Polskiej w nadmorskiej Ustce.
To wyjątkowa propozycja zarówno dla osób poszukujących nieruchomości do zamieszkania nad morzem, jak i dla inwestorów. Lokal dzięki swojej lokalizacji oraz układowi pomieszczeń doskonale sprawdzi się jako mieszkanie pod wynajem krótkoterminowy, apartament wakacyjny lub lokal usługowy.
Funkcjonalny układ pomieszczeń
Mieszkanie jest bardzo dobrze rozplanowane i zapewnia komfort codziennego użytkowania. Pomieszczenia są ustawne, jasne i dają duże możliwości aranżacyjne.
W skład mieszkania wchodzą:
- przestronny salon
- dwie niezależne, ustawne sypialnie
- osobna, widna kuchnia (remont wykonany w 2019 roku)
- łazienka
- przedpokój
Do lokalu przynależy również duża piwnica o powierzchni około 10 m², która stanowi dodatkową przestrzeń do przechowywania.
Standard techniczny i wyposażenie
Mieszkanie jest bardzo ciepłe, zadbane i odświeżone, dzięki czemu nowy właściciel może wprowadzić się lub rozpocząć wynajem praktycznie od razu po zakupie. Lokal sprzedawany jest z wyposażeniem, co stanowi dodatkowy atut inwestycyjny.
- ogrzewanie i ciepła woda z sieci miejskiej
- okna PCV dwuszybowe
- drzwi antywłamaniowe
- kuchnia po remoncie w 2019 roku
- mieszkanie odświeżone, gotowe do użytkowania
- wyposażenie w cenie nieruchomości
Budynek i otoczenie
Budynek jest zadbany i po modernizacjach, co znacząco podnosi komfort mieszkańców oraz ogranicza przyszłe koszty remontowe.
- nowa elewacja oraz ocieplenie budynku wykonane w 2019 roku
- klatka schodowa po remoncie
- wejście do klatki schodowej z dwóch stron budynku
- wspólny ogródek z tyłu budynku do dyspozycji mieszkańców
- możliwość parkowania samochodu z tyłu budynku
To spokojne i kameralne miejsce zapewniające wygodę życia zarówno na co dzień, jak i podczas pobytów wakacyjnych.
Lokalizacja – serce nadmorskiej Ustki
Nieruchomość położona jest przy ul. Marynarki Polskiej – w dobrze skomunikowanej i rozwiniętej części miasta. W najbliższym otoczeniu znajdują się sklepy, lokale usługowe, restauracje, Żabka, stacja paliw, punkty handlowe oraz przystanki komunikacji.
Ogromnym atutem jest bliskość morza – zaledwie około 800 metrów do plaży, co pozwala w kilka minut dotrzeć nad Bałtyk, na promenadę czy do portu. To lokalizacja chętnie wybierana przez turystów i osoby szukające nieruchomości nad morzem.
Idealne pod inwestycję lub działalność
Dzięki położeniu na parterze oraz funkcjonalnemu układowi mieszkanie posiada bardzo duży potencjał inwestycyjny. Może pełnić funkcję:
- apartamentu pod wynajem krótkoterminowy
- mieszkania wakacyjnego
- lokalu pod usługi (gabinet, biuro, kosmetyka, najem apartamentów)
- komfortowego mieszkania do zamieszkania całorocznego
To gotowa nieruchomość nad morzem – zadbana, wyposażona i położona w świetnej lokalizacji, która zapewnia wygodę oraz realny potencjał dochodowy.
CENA: 429 000 PLN
Strona Kupująca pokrywa wynagrodzenie prowizyjne dla biura.
Więcej informacji uzyskasz kontaktując się z nami:
669 647 067 – Karolina Jakuczun (opiekun oferty)
503 901 101 – Adrianna Iwanicka
799 799 397 – Dominika Szramiak
799 799 313 – Marta Rutkowska
728 111 007 – Przemek Pryzwan
728 202 030 – Marta Patyna
Więcej zdjęć znajdziecie Państwo na Naszej stronie:
www.gryfnieruchomosci.pl
Serdecznie zapraszam Państwa na prezentację nieruchomości, z przyjemnością odpowiem na wszelkie pytania oraz udzielę dodatkowych informacji.
Zamierzasz kupić nieruchomość i skorzystać z finansowania banku? Pomożemy dokonać Ci dobrego wyboru najlepszej oferty spośród wielu banków. Nasz doradca dostosuje ofertę kredytu hipotecznego do Twoich potrzeb i oczekiwań oraz będzie do Twojej dyspozycji na każdym etapie procesu kredytowego.
Niniejsza oferta nie stanowi oferty w rozumieniu Kodeksu Cywilnego, a dane w niej zawarte mają jedynie charakter informacyjny i mogą ulec zmianie.