Mieszkanie na sprzedaż










Szczegóły ogłoszenia
- Symbol oferty GRS-MS-3037
- Typ oferty mieszkanie na sprzedaż
- Cena 519 000 zł
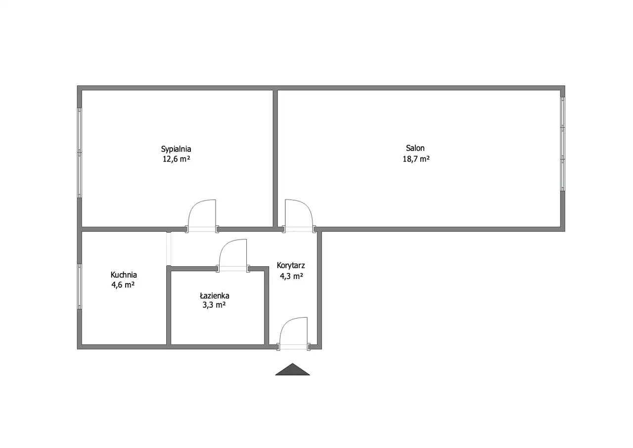
- Charakterystyka mieszkania 43.5 m2, 2 pokoje
- Budynek blok
- Rozkład mieszkania 3p piętro
- Okna PCV
- Stan lokalu do wprowadzenia
- Umeblowanie do uzgodnienia
Lokalizacja
- Adres pomorskie, Ustka
Opis nieruchomości
Mieszkanie 43,5 m² w Ustce przy ul. Jana z Kolna – 300 m od plaży, pełna własność, bez obciążeń
Na sprzedaż oferujemy zadbane i funkcjonalne mieszkanie o powierzchni 43,5 m², położone na 3. piętrze w czteropiętrowym bloku, w bardzo atrakcyjnej części Ustki. Do lokalu przynależy piwnica o powierzchni 3,5 m².
Lokalizacja
Nieruchomość znajduje się około 300 metrów od plaży oraz około 600 metrów od portu. W najbliższym otoczeniu znajdują się sklepy, punkty usługowe oraz pełna infrastruktura pozwalająca wygodnie korzystać z uroków nadmorskiej miejscowości.
Informacje o mieszkaniu:
- powierzchnia: 43,5 m²
- piętro: 3
- ekspozycja okien: północ–południe
- dodatkowo piwnica: 3,5 m²
- forma własności: pełna własność
- brak obciążeń w KW
Standard i wyposażenie:
- mieszkanie zadbane, w ciepłej, neutralnej kolorystyce
- na podłogach panele oraz płytki
- salon: sofa, stół z krzesłami, zabudowa RTV z miejscem na telewizor
- sypialnia: duża szafa w zabudowie, kanapa, telewizor
- kuchnia: jasna zabudowa, drewniany blat, kuchenka gazowa, duża lodówka, zlew z baterią
- łazienka: wanna, szafka z umywalką, WC w zabudowie
- mieszkanie w pełni funkcjonalne i gotowe do zamieszkania
Media i opłaty:
- ogrzewanie i ciepła woda z sieci miejskiej
- czynsz do wspólnoty: 460 zł
Mieszkanie sprawdzi się zarówno do zamieszkania na stałe, jak i jako inwestycja pod wynajem krótkoterminowy dzięki doskonałej lokalizacji i dobremu standardowi wnętrz.
CENA: 519.000 PLN
Strona Kupująca pokrywa wynagrodzenie prowizyjne dla biura nieruchomości.
Więcej informacji uzyskasz kontaktując się z nami:
503 901 101 – Adrianna Iwanicka, licencja 23687 (opiekun oferty)
728 111 007 – Przemysław Pryzwan
799 799 313 – Marta Rutkowska, licencja 23697
669 647 067 – Karolina Jakuczun
799 799 397 – Dominika Szramiak
799 333 633 – Dominika Wójcik
728 202 030 – Marta Patyna
Serdecznie zapraszam Państwa na prezentację nieruchomości, z przyjemnością odpowiem na wszelkie pytania oraz udzielę dodatkowych informacji.
Zamierzasz kupić nieruchomość i skorzystać z finansowania banku? Pomożemy dokonać Ci dobrego wyboru najlepszej oferty spośród wielu banków. Nasz doradca dostosuje ofertę kredytu hipotecznego do Twoich potrzeb i oczekiwań oraz będzie do Twojej dyspozycji na każdym etapie procesu kredytowego.
Niniejsza oferta nie stanowi oferty w rozumieniu Kodeksu Cywilnego, a dane w niej zawarte mają jedynie charakter informacyjny i mogą ulec zmianie.