Działka na sprzedaż
1 600 000 zł
1 980 m2










1 / 10
Szczegóły ogłoszenia
- Symbol oferty BRZ-GS-163557
- Typ oferty działka na sprzedaż
- Cena 1 600 000 zł
- Charakterystyka mieszkania 1980 m2
- Media Woda: tak - miejska; Kanalizacja: tak; Prąd: jest; Gaz: jest
- Dojazd kostka brukowa
Lokalizacja
- Adres mazowieckie, Warszawa, Wawer
Opis nieruchomości
Obsługą transakcji zajmuje się pośrednik geodeta z 25-letnim doświadczeniem w branży nieruchomości.
Na sprzedaż działka budowlana o powierzchni 1980 m2, zlokalizowana w Wawrze (Falenica).
Wymiary: 43 m x 49,5 m.
Media: kanalizacja, wodociąg, gaz i prąd, w ulicy przy działce.
Wydane Pozwolenie na budowę budynku jednorodzinnego wolnostojącego (2025 r., na podstawie WZ).
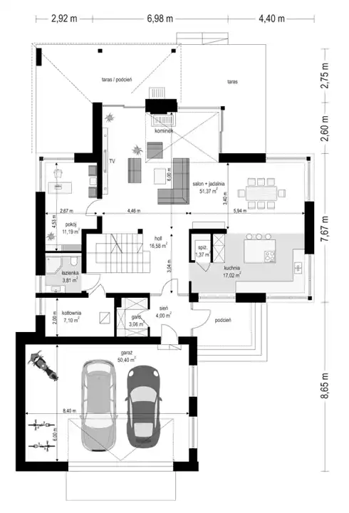
Parametry budynku:
- budynek dwukondygnacyjny,
- powierzchnia użytkowa domu 195 m2,
- 4 sypialnie + salon,
- garaż dwustanowiskowy,
- wysokość budynku 9,22 m z podmurówką,
- uzgodnione przyłączenie wszystkich mediów miejskich,
- wykonana studnia dla potrzeb budowy.
W sąsiedztwie nowe domy wolnostojące.
Dużo zieleni i cisza.
Dojazd do działki ulicą wyłożoną kostką.
Do stacji SKM Falenica ok. 1km.
W pobliżu przystanek autobusowy (3 linie BUS).
W okolicy pełna infrastruktura.
Dużo zieleni i cisza.
Dojazd do działki ulicą wyłożoną kostką.
Do stacji SKM Falenica ok. 1km.
W pobliżu przystanek autobusowy (3 linie BUS).
W okolicy pełna infrastruktura.
Nota prawna
Opis oferty zawarty na stronie internetowej sporządzany jest na podstawie oględzin nieruchomości oraz informacji uzyskanych od właściciela, może podlegać aktualizacji i nie stanowi oferty określonej w art. 66 i następnych K.C.
Kalkulator kredytowy
Formularz kontaktowy