Działka na sprzedaż
27 000 000 zł
30 000 m2









1 / 9
Szczegóły ogłoszenia
- Symbol oferty EMP-GS-5282
- Typ oferty działka na sprzedaż
- Cena 27 000 000 zł
- Charakterystyka mieszkania 30000 m2
- Media Woda: w ulicy; Kanalizacja: na działce; Prąd: na działce; Gaz: w ulicy
- Bezpieczeństwo ogrodzenie działki: brak
- Dojazd ASFALTOWA
- Działka Niezagospodarowana, płaska, prostokąt
- Otoczenie zabudowa jednorodzinna
Lokalizacja
- Adres mazowieckie, Warszawa, Włochy
Opis nieruchomości
Na działkę można dojechać wklejając do Google Maps 52.157778, 20.947304
https://maps.app.goo.gl/TEoRnGeiiobL9ABL6
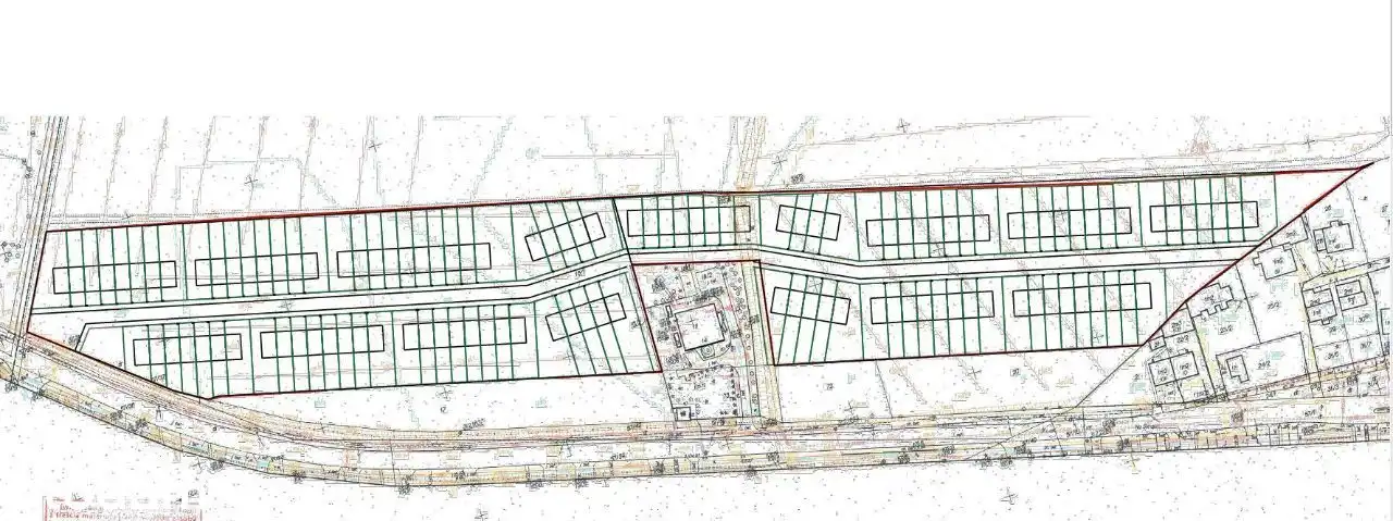
Warszawa, Włochy, Załuski, ul. Na Skraju, obręb 2-06-18, numer ewidencyjny 16/1.
Media:
prąd - na działce
woda, gaz - w ulicy
kanalizacja - na działce
Wymiary działki: 70 m x 450 m
Działka nie jest objęta miejscowym planem zagospodarowania przestrzennego. Zostały wydane warunki zabudowy na budowę na 1/3 działki (około 1ha) na budowę 39 domów w zabudowie szeregowej.
Budynki usytuowane są w ciągach od 4 do 10 budynków obok siebie. Każdy z nich ma pow. zabudowy ok. 60 m2.
Powierzchnia działek dla każdego z budynków to od 120 m2 do 300 m2.
Zapraszam do kontaktu
Maciej Adamczyk
883-106-453
https://maps.app.goo.gl/TEoRnGeiiobL9ABL6
Warszawa, Włochy, Załuski, ul. Na Skraju, obręb 2-06-18, numer ewidencyjny 16/1.
Media:
prąd - na działce
woda, gaz - w ulicy
kanalizacja - na działce
Wymiary działki: 70 m x 450 m
Działka nie jest objęta miejscowym planem zagospodarowania przestrzennego. Zostały wydane warunki zabudowy na budowę na 1/3 działki (około 1ha) na budowę 39 domów w zabudowie szeregowej.
Budynki usytuowane są w ciągach od 4 do 10 budynków obok siebie. Każdy z nich ma pow. zabudowy ok. 60 m2.
Powierzchnia działek dla każdego z budynków to od 120 m2 do 300 m2.
Zapraszam do kontaktu
Maciej Adamczyk
883-106-453
Nota prawna
Opis oferty zawarty na stronie internetowej sporządzany jest na podstawie oględzin nieruchomości oraz informacji uzyskanych od właściciela, może podlegać aktualizacji i nie stanowi oferty określonej w art. 66 i następnych K.C.
Kalkulator kredytowy
Formularz kontaktowy