Lokal na wynajem













Szczegóły ogłoszenia
- Symbol oferty VES-LW-4611
- Typ oferty lokal na wynajem
- Czynsz wynajmu 17 600 zł / miesiąc
- Charakterystyka mieszkania 321.5 m2
- Budynek biurowo-usługowy
- Rozkład mieszkania 1p piętro
- Kaucja dwumiesięczna
- Winda Tak
Lokalizacja
- Adres mazowieckie, Warszawa, Mokotów
Opis nieruchomości
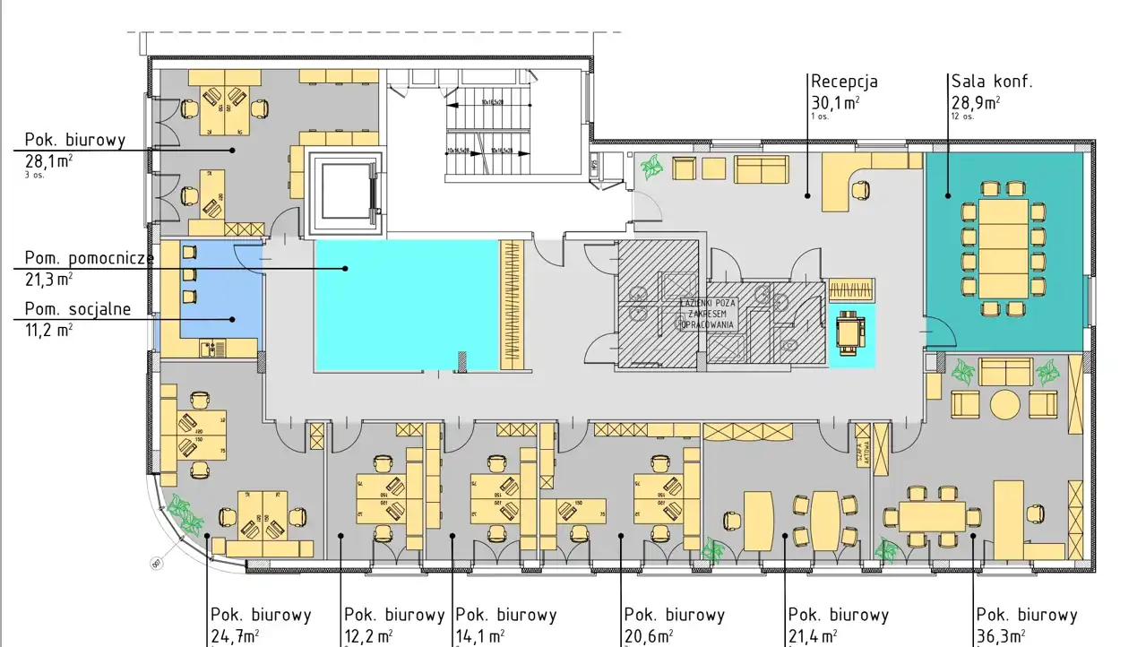
Prywatne Piętro Biurowe 321 m² | Mokotów, ul. Puławska | Możliwość aranżacji i podziału
Oferujemy na wynajem nowoczesną powierzchnię biurową w kameralnym biurowcu klasy B+ przy ul. Puławskiej. To idealna propozycja dla firm ceniących bezpieczeństwo, nowoczesną infrastrukturę IT oraz doskonałą komunikację.
Kluczowe wyróżniki oferty:
-
Pełna prywatność: Biuro zajmuje całe piętro (możliwość wynajmu dwóch pięter – 643 m²).
-
Elastyczność: Możliwość połączenia lub podziału pokoi zgodnie z potrzebami najemcy.
-
Możliwość podziału piętra: Dzięki dwóm niezależnym wejściom i dwóm pionom sanitarnym, istnieje opcja wynajęcia tylko części kondygnacji.
-
Nowoczesne IT: Podniesione podłogi z floorboxami, pełne okablowanie strukturalne oraz światłowód (Orange/Vectra).
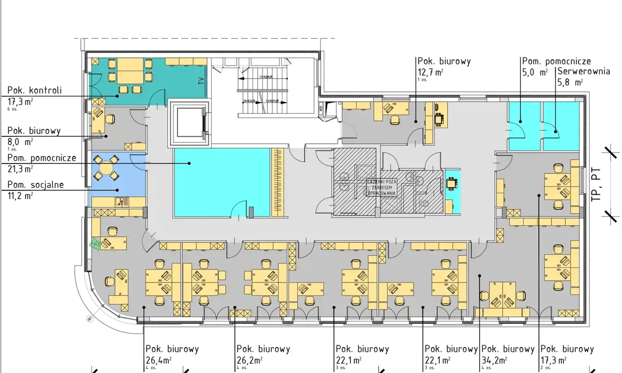
Układ i standard pomieszczeń (I Piętro):
Powierzchnia jest funkcjonalnie podzielona na strefy:
-
7 pokoi biurowych o różnym przeznaczeniu i wielkości.
-
Sale konferencyjne: Większe pomieszczenia idealne na spotkania i szkolenia.
-
Serwerownia: Klimatyzowana, z dodatkowymi drzwiami antywłamaniowymi i alarmem (na II piętrze).
-
Kuchnia: Wydzielone pomieszczenie z zabudową, wyposażone w zmywarkę oraz mikrofalówkę.
-
Węzeł sanitarny: 4 toalety rozmieszczone w dwóch pionach.
-
Bezpieczeństwo: Przed wejściem do biura znajduje się szklany korytarz z zainstalowaną kontrolą dostępu i systemem alarmowym.
Budynek i udogodnienia:
Kameralny biurowiec z 2011 roku, charakteryzujący się spokojną atmosferą i prestiżowym sąsiedztwem:
-
Dwa wejścia: Główne od ul. Puławskiej oraz od strony dziedzińca Domu Kultury.
-
Instalacje: Klimatyzacja, wentylacja mechaniczna, otwierane okna.
-
Parking: Garaż podziemny na poziomie -1 (15 miejsc na platformach).
-
Ochrona: Fizyczna ochrona budynku w godzinach 7:00–19:00 (pon-pt) oraz całodobowy monitoring.
-
Odświeżenie: Na życzenie najemcy właściciel wymieni wykładziny na nowe.
Lokalizacja – Mokotów (Wierzbno):
Bezpośrednio przy głównej arterii miasta, co zapewnia świetną ekspozycję. W pobliżu Metro Racławicka, linie tramwajowe i autobusowe. Sąsiedztwo Parku Dreszera oraz licznych lokali gastronomicznych zapewnia komfort pracownikom.
Koszty najmu i warunki:
-
Czynsz najmu: 55 zł/m² netto
-
Opłata eksploatacyjna: 25 zł/m² netto
-
Łącznie (za 321,5 m²): 25 720 zł netto + media (energia, woda, ogrzewanie wg liczników)
-
Garaż: 300 zł netto / miejsce
-
Kaucja: 2-miesięczny czynsz + opłaty
-
Negocjacje: Cena podlega negocjacjom w zależności od zakresu prac dostosowawczych i długości umowy.
W rzutach dołączony jest układ pomieszczeń piętra 2
Zapraszam do kontaktu w celu umówienia prezentacji!
Kontakt
EMILIA M. SZYMAŃSKA
660 865 803
eszymanska@vestrahouse.pl