Lokal na wynajem
26 000 zł
620 m2







1 / 7
Szczegóły ogłoszenia
- Symbol oferty WS2-LW-44931
- Typ oferty lokal na wynajem
- Czynsz wynajmu 26 000 zł / miesiąc
- Charakterystyka mieszkania 620 m2
- Budynek BUDYNEK BIUROWY
- Rozkład mieszkania 1p piętro
- Media Ogrzewanie: C.O. GAZOWE
- Miejsce parkingowe Tak
- Dojazd asfalt
- Instalacje nowe
- Kaucja do uzgodnienia
- Okna PCV
- Stan lokalu do odnowienia
- Umeblowanie nieumeblowane
Lokalizacja
- Adres mazowieckie, Warszawa m., Warszawa
Opis nieruchomości
POLECAM DO WYNAJĘCIA DUŻĄ POWIERZCHNIĘ BIUROWĄ WE WŁOCHACH
Obiekt jest dozorowany elektronicznie, dostępny prze 24 h przez 7 dni w tygodniu.
Do komunikacji na piętro służy winda.
W cenie 1 miejsce w garażu podziemnym. Więcej miejsc do uzgodnienia.
LOKALIZACJA
Dobry dojazd samochodem , autobusem, tramwajem, i kolejką SKM
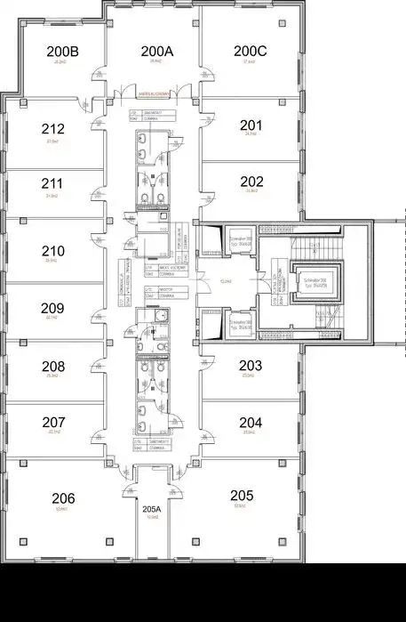
W wolnostojącym budynku klasy A, jest do wynajęcia 620 m na całym jednym piętrze.
Pokoje biurowe są w rożnej wielkości od 25 do 50 m, dodatkowo sekretariat , pomieszczenia socjalne, sanitariaty w tym dla niepełnosprawnych,serwerownia,małe magazyny. Pokoje są klimatyzowane, na podłogach wykładzina dywanowa, nowoczesne oświetlenie przy podwieszanych sufitachObiekt jest dozorowany elektronicznie, dostępny prze 24 h przez 7 dni w tygodniu.
Do komunikacji na piętro służy winda.
W cenie 1 miejsce w garażu podziemnym. Więcej miejsc do uzgodnienia.
LOKALIZACJA
Dobry dojazd samochodem , autobusem, tramwajem, i kolejką SKM
Nota prawna
Opis oferty zawarty na stronie internetowej sporządzany jest na podstawie oględzin nieruchomości oraz informacji uzyskanych od właściciela, może podlegać aktualizacji i nie stanowi oferty określonej w art. 66 i następnych K.C.
Formularz kontaktowy