Lokal na wynajem
2 600 zł
25 m2











1 / 11
Szczegóły ogłoszenia
- Symbol oferty ACE-LW-144424
- Typ oferty lokal na wynajem
- Czynsz wynajmu 2 600 zł / miesiąc
- Charakterystyka mieszkania 24.5 m2
- Budynek biurowo-usługowy; rok budowy: 1928
- Rozkład mieszkania niski parter piętro
- Dojazd asfalt
- Stan lokalu bardzo dobry
Lokalizacja
- Adres mazowieckie, Warszawa, Śródmieście
Opis nieruchomości
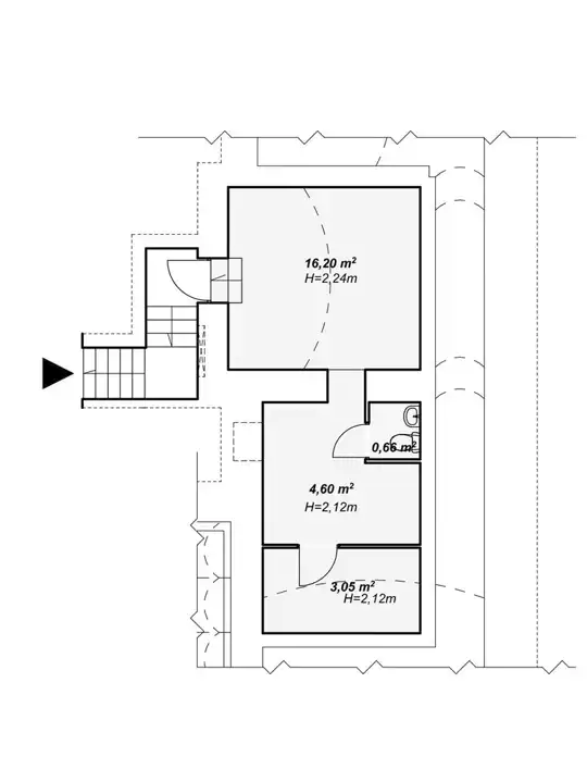
Oferujemy do wynajęcia lokal o powierzchni 24,51 mkw. , położony w suterenie prawej oficyny zabytkowej Kamienicy, tuż obok Placu 5 Rogów.
Lokal składa się z trzech pomieszczeń o powierzchni 16,20 m², 4,60 m² i 3,05 m² oraz łazienki (szczegółowy plan dostępny w galerii). Ogrzewanie jest elektryczne, jednak dzięki korzystnie wynegocjowanym stawkom koszty energii elektrycznej pozostają niewygórowane – rozliczane według faktycznego zużycia energii. Minimalny okres najmu: 2 lata
Czynsz: 2 600 zł netto Koszty eksploatacyjne: 500 zł netto. Lokal idealnie sprawdzi się jako pracownia, gabinet usługowy lub magazyn pomocniczy w centrum miasta. Lokal do wynajęcia bez wyposażenia.
Lokal składa się z trzech pomieszczeń o powierzchni 16,20 m², 4,60 m² i 3,05 m² oraz łazienki (szczegółowy plan dostępny w galerii). Ogrzewanie jest elektryczne, jednak dzięki korzystnie wynegocjowanym stawkom koszty energii elektrycznej pozostają niewygórowane – rozliczane według faktycznego zużycia energii. Minimalny okres najmu: 2 lata
Czynsz: 2 600 zł netto Koszty eksploatacyjne: 500 zł netto. Lokal idealnie sprawdzi się jako pracownia, gabinet usługowy lub magazyn pomocniczy w centrum miasta. Lokal do wynajęcia bez wyposażenia.
Nota prawna
Opis oferty zawarty na stronie internetowej sporządzany jest na podstawie oględzin nieruchomości oraz informacji uzyskanych od właściciela, może podlegać aktualizacji i nie stanowi oferty określonej w art. 66 i następnych K.C.
Formularz kontaktowy