Lokal na wynajem




















Szczegóły ogłoszenia
- Symbol oferty LSW-LW-274
- Typ oferty lokal na wynajem
- Czynsz wynajmu 6 800 zł / miesiąc
- Charakterystyka mieszkania 97.2 m2
- Budynek blok
- Rozkład mieszkania 3p piętro
- Czynsz Czynsz letni: 2100 zł
- Kaucja trzymiesięczna, 20000 zł
- Stan lokalu bardzo dobry
- Winda Tak
Lokalizacja
- Adres mazowieckie, Warszawa, Śródmieście
Opis nieruchomości
Lokal użytkowy o powierzchni 97 m² znajduje się w samym centrum Warszawy, przy ul. Marszałkowskiej 140 – w prestiżowej i doskonale skomunikowanej lokalizacji, która zapewnia wygodny dostęp zarówno dla klientów, jak i pracowników. W lokalu wcześniej funkcjonowała kancelaria notarialna, dzięki czemu przestrzeń jest w pełni przystosowana do prowadzenia działalności biurowej i prawniczej. Na miejscu znajduje się umeblowanie, które z powodzeniem może zostać wykorzystane pod różnego rodzaju kancelarie, w tym notarialne, adwokackie, radcowskie czy doradcze.
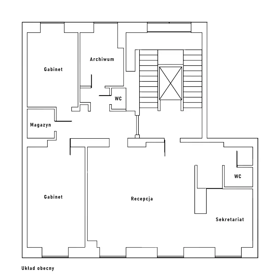
Obecny układ lokalu jest 2-gabinetowy z przepiękną dużą recepcją, jednak istnieje możliwość jego modyfikacji i przearanżowania przestrzeni na trzy niezależne gabinety (wizualizacje), co daje dużą elastyczność w dostosowaniu wnętrza do indywidualnych potrzeb najemcy. Oprócz gabinetów w lokalu znajdują się również pomieszczenia techniczne, archiwum, toalety oraz wydzielone miejsce biurowe, idealne na punkt ksero lub zaplecze administracyjne. Całość stanowi funkcjonalną i gotową do użytkowania przestrzeń, która może zostać szybko zaadaptowana na potrzeby profesjonalnej działalności.
W lokalu jest nowa Klimatyzacja.
PRZYBLIŻONE WIELKOŚCI POSZCZEGÓLNYCH POMIESZCZEŃ:
Recepcja - 34 m2
Sekretariat - 7 m2
Gospodarcze - 1,5 m2
Toaleta - 1,5 m2
Hol - 8,5 m2
Duży gabinet - 18,5 m2
Mniejszy gabinet - 11,5 m2
Archiwum - 7 m2
Gospodarczy - 1,5 m2
Komórka - 3,5 m2
KOSZTY MIESIĘCZNE:
Koszt najmu: 6800 zł
Koszt opłat do spółdzielni: 2300 zł
Koszt prądu: wg liczników (umowa na najemcę)
Koszt Internetu: umowa we własnym zakresie
KOSZTY JEDNORAZOWE:
Kaucja: 30000 złotych (zwrotna po zakończeniu najmu)
Prowizja: 5000 złotych
W razie pytań proszę o kontakt pod numerem 690 631 691
albo na adres mailowy: konrad@laszewski.com.pl