Mieszkanie na sprzedaż



Szczegóły ogłoszenia
- Symbol oferty HSN-MS-210
- Typ oferty mieszkanie na sprzedaż
- Cena 1 010 000 zł
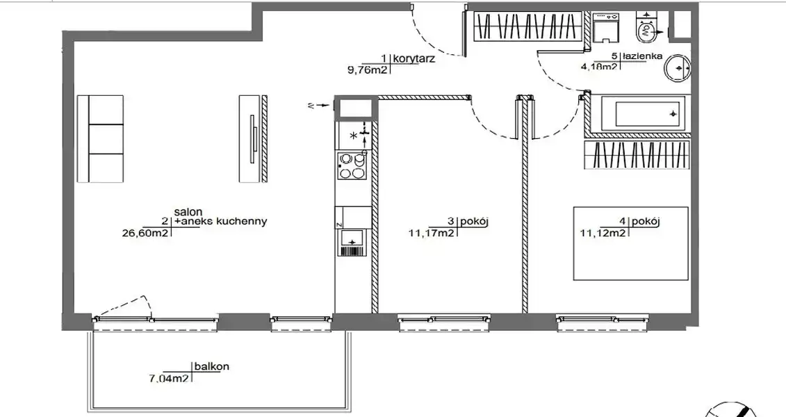
- Charakterystyka mieszkania 63 m2, 3 pokoje
- Budynek blok; rok budowy: 2023
- Media Ogrzewanie: miejskie; Woda: tak - miejska
- Balkon jest
- Dojazd asfalt
- Instalacje nowe
- Stan lokalu deweloperski
- Winda Tak
Lokalizacja
- Adres mazowieckie, Warszawa, Mokotów
Opis nieruchomości
W nowej inwestycji " Rytm Mokotowa" przy ulicy Antoniewska 62,83 z balkonem 7,04 m2 na VI piętrze i/lub 63,53 m2 na V piętrze z balkonem 8,26 , Mieszkania składają się z kuchni w aneksie z salonem z wyjściem na balkon , 2 pokoi i łazienki z WC oraz przedpokoju . Mieszkania w stanie deweloperskim, Pełna własność. Budynek monitorowany i strzeżony - (ochrona, kamery, całodobowa recepcja, siłownia, rowerowania, strefa yogi, kącik malucha ). Okna nowe i antywłamaniowe drzwi wejściowe. Do mieszkań albo miejsce garażowe albo 2 miejsca naziemne
Cena : 1 010 000 zł + miejsca postojowe/ garażowe
Jako Agencja Pośrednictwa pobieramy prowizję
Wszelkie informacje zamieszczone w niniejszej ofercie (w tym plany, rysunki, wizualizacje i ceny), nie stanowią oferty w rozumieniu przepisów prawa cywilnego tj. art.(Oferta) oraz art. 1 (Oferta złożona w postaci elektronicznej) Kodeksu cywilnego.
Ubezpieczenie OC Pośrednika w PZU S.A.
High Street Nieruchomości , siedzibą w (02 – 672 ) Warszawie, przy ul. Domaniewskiej 47 lokal 10, jako administrator danych osobowych, informują Państwa ( Panią i/lub Pana ), iż, podanie przez Państwa ( Panią i/lub Pana ) danych jest dobrowolne jednakże niezbędne w celu świadczenie usług pośrednictwa w obrocie nieruchomościami przez High Street Nieruchomości. – zaznaczamy iż posiadają Państwo ( Pani i/lub Pan ) prawo dostępu do treści swoich danych jak i ich sprostowania, usunięcia, ograniczenia przetwarzania, prawo do przenoszenia danych, prawo do cofnięcia zgody w dowolnym momencie bez wpływu na zgodność z prawem przetwarzania. Dane te mogą być udostępniane przez High Street Nieruchomości, podmiotom upoważnionym do uzyskania informacji na podstawie przepisów .. Podane dane będą przetwarzane na podstawie i zgodnie z treścią ogólnego rozporządzenia o ochronie danych. Dane osobowe będą przechowywane przez okres przechowywania danych wynoszący on 5 lat licząc od zakończenia umowy ( w drodze : wygaśnięcia, rozwiązania, anulowania itp.) oraz w czasie obowiązywania zawartej umowy. Macie Państwo ( Pani i/lub Pan ) prawo wniesienia skargi do GIODO gdy uznacie Państwo ( Pani i/lub Pan ) , iż przetwarzanie danych osobowych dotyczących Państwa ( Pani i/lub Pana ) narusza przepisy ogólnego rozporządzenia o ochronie danych osobowych.