Mieszkanie na sprzedaż







Szczegóły ogłoszenia
- Symbol oferty KNG-MS-7377
- Typ oferty mieszkanie na sprzedaż
- Cena 1 069 000 zł
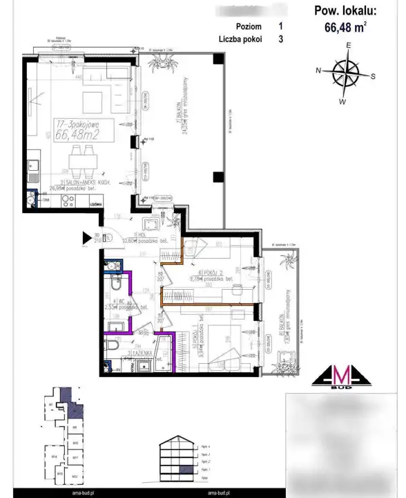
- Charakterystyka mieszkania 66.48 m2, 3 pokoje
- Budynek apartamentowiec; rok budowy: 2025
- Rozkład mieszkania 1p piętro
- Media Ogrzewanie: C.O. miejskie; Woda: ciepła - miejska
- Balkon jest
- Instalacje ELEKTRYCZNA
- Okna PCV
- Stan lokalu deweloperski
- Technologia budowlana beton, cegła
- Umeblowanie nieumeblowane
- Winda Tak
Lokalizacja
- Adres mazowieckie, Warszawa, Białołęka
Opis nieruchomości
Prezentujemy 3-pokojowe mieszkanie o powierzchni 66,48 m², zlokalizowane przy ulicy Odkrytej 15 (Białołęka, Warszawa), w inwestycji Bliżej Natury – Osiedle Natura realizowanej przez dewelopera Ama-Bud. Deweloper Ama-Bud posiada wieloletnie doświadczenie w realizacji inwestycji mieszkaniowych.
Jest to idealna nieruchomość dla pary, rodziny z dziećmi lub jako inwestycja kapitału.
Głównymi atutami są funkcjonalny układ pomieszczeń, stan deweloperski dający pełną swobodę aranżacji oraz kameralne, zielone otoczenie.
Mieszkanie
Na 66,48 m² znajdują się:
● salon z aneksem kuchennym,
● sypialnia,
● drugi pokój (gabinet/pokój dziecięcy),
● łazienka,
● oddzielne WC,
● przedpokój.
Do mieszkania przynależy balkon. Lokal znajduje się w stanie deweloperskim, co daje nowemu właścicielowi możliwość aranżacji wnętrza według własnych potrzeb i preferencji.
Budynek
Budynek został wybudowany w ramach inwestycji Bliżej Natury. Lokal znajduje się na 1 piętrze w budynku o 5 kondygnacjach. Inwestycja ma kameralny charakter (37 mieszkań), z garażem podziemnym oraz niską, nowoczesną zabudową.
Dodatkowym, wyjątkowym atutem inwestycji są starannie zaprojektowane części wspólne, obejmujące m.in. siłownię oraz przestrzeń bilardową, dostępne wyłącznie dla mieszkańców.
Lokalizacja
Białołęka to dynamicznie rozwijająca się dzielnica Warszawy, ceniona za dużą ilość terenów zielonych oraz spokojny charakter. Ulica Odkryta zapewnia wygodny dostęp do infrastruktury miejskiej i komunikacji.
Bezpośrednie sąsiedztwo wału wiślanego oraz alei spacerowej przebiegającej wzdłuż Wisły czyni tę lokalizację idealną dla osób ceniących aktywny tryb życia, spacery, bieganie i jazdę na rowerze. Osiedle przy ul. Odkrytej 15 to nowa, kameralna inwestycja dewelopera Ama-Bud, harmonijnie łącząca bliskość natury z nowoczesnym standardem zamieszkania
W sąsiedztwie znajdują się:
● przystanki autobusowe z dojazdem do metra,
● szkoły i przedszkola,
● tereny zielone i spacerowe,
● sklepy i punkty usługowe,
● obiekty rekreacyjne.
Stan prawny
● Pełna własność,
● Przy zakupie można posiłkować się kredytem – chętnie pomogę w uzyskaniu najlepszych warunków kredytowych.
Opłaty
● Miejsce postojowe w garażu podziemnym – ok. 42 900 zł,
● Komórka lokatorska – ok. 24 900 zł,
Dodatkowe informacje
● Decydując się na zakup tej nieruchomości, zyskujesz pełną obsługę, w tym bezpłatną pomoc w uzyskaniu kredytu hipotecznego. Współpracujemy ze sprawdzonym doradcą kredytowym.
● Współpracując z Digital Broker, otrzymujesz rabat na usługi notarialne.
Zapraszam do kontaktu
Paulina Morawska
Doradca ds. nieruchomości