Mieszkanie na sprzedaż

















Szczegóły ogłoszenia
- Symbol oferty MKI-MS-59961
- Typ oferty mieszkanie na sprzedaż
- Cena 1 100 000 zł
- Charakterystyka mieszkania 70.2 m2, 3 pokoje
- Budynek kamienica; rok budowy: 1961
- Rozkład mieszkania 6p piętro
- Media Ogrzewanie: C.O. miejskie; Woda: ciepła - miejska; Gaz: tak - miejski
- Bezpieczeństwo Rolety antywłamaniowe
- Balkon jest
- Czynsz Czynsz letni: 1225 zł
- Dojazd asfaltowa/kostka
- Garaż miejsce parkingowe przy budynku
- Ilość sypialni 2
- Instalacje wymienione
- Okna PCV
- Otoczenie działki zabudowane
- Plac zabaw Tak
- Stan lokalu bardzo dobry
- Technologia budowlana cegła stara
- Winda Tak
Lokalizacja
- Adres mazowieckie, Warszawa, Bielany
Opis nieruchomości
--- Oferujemy na sprzedaż wyjątkowe mieszkanie zlokalizowane na ostatnich piętrach 6-kondygnacyjnej kamienicy (cegła) z 1961 roku w zabytkowej części Starych Bielan.
--- To świetna propozycja dla osób poszukujących prywatności i ciszy w otoczeniu zieleni, a jednocześnie w doskonałej lokalizacji miasta - 4 minuty spacerem do stacji metra Stare Bielany.
--- W pobliżu restauracje i kawiarnie (Dej, Czytelnia, Ministerstwo Kawy, Yatta Vegan Ramen, Stan Umysłu czy Cafe de la Poste), targowisko Wolumen oraz żłobki, przedszkola i szkoły.
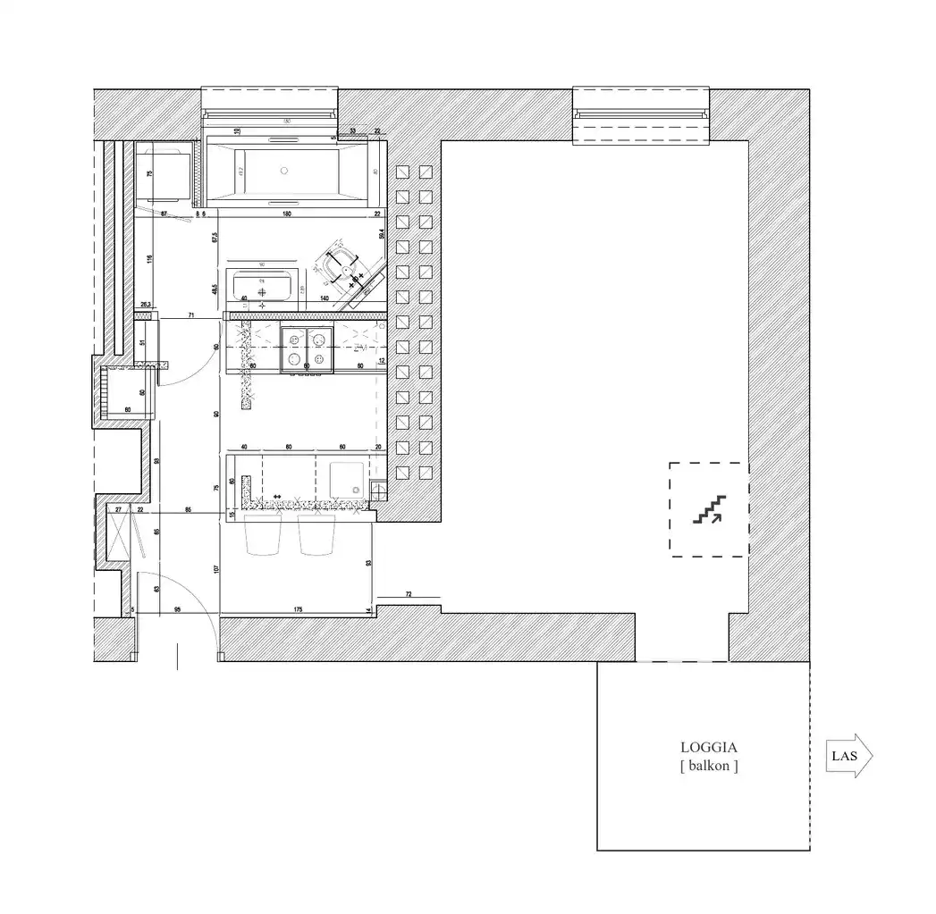
--- Mieszkanie ma ponad 70m² powierzchni użytkowej liczonej po podłodze (administracyjnie 49m², zgodnie z przepisami dotyczącymi wysokości pomieszczeń).
--- Dzięki adaptacji poddasza przez poprzednich właścicieli uzyskano wyjątkowy, niepowtarzalny charakter wnętrza.
--- Po zakupie mieszkania przeprowadzony został kapitalny remont obejmujący m.in.:
--- przebudowę układu pomieszczeń (m.in. zamianę kuchni z toaletą i adaptację korytarza na rzecz kuchni),
- cyklinowanie oryginalnej drewnianej podłogi,
- wymianę schodów,
- wymianę instalacji hydraulicznej i części instalacji elektrycznej,
- wykonanie nowych ścian w technologii karton-gips,
- dodanie wentylacji grawitacyjnej na poddaszu,
- dodanie klimatyzatora na poddaszu,
- i sporo innych drobniejszych ulepszeń (bardzo dbano o mieszkanie)
--- Mieszkanie jest w pełni wyposażone (meble, zmywarka, pralka, suszarka elektryczna, klimatyzacja z opcją grzania, projektor, kolumny audio wraz ze wzmacniaczem). Większość wyposażenia oraz mebli pozostanie w mieszkaniu (poza pianinem i Thermomixem) - jest gotowe do zamieszkania od razu.
--- Budynek również przeszedł gruntowną modernizację – w 2023-2025 roku odnowiono elewację, ocieplono dach oraz wymieniono całą instalację elektryczną, co znacząco podniosło komfort życia mieszkańców. Wymienono również instalację CO w całym budynku wraz z kaloryferami w mieszkaniach.
--- Ogromnym atutem nieruchomości jest loggia z widokiem na Lasek Lindego – panorama zieleni rozciąga się bez żadnych przeszkód, zapewniając prywatność i ciszę rzadko spotykaną w tej części miasta.
--- Sąsiedzi są przyjaźni i spokojni.
--- Mieszkanie posiada własną piwnicę (ok. 4m2).
Serdecznie polecam i zapraszam na prezentację nieruchomości. Kontakt Wojciech Wodnicki, tel.: 501 100 545.