Mieszkanie na sprzedaż



















Szczegóły ogłoszenia
- Symbol oferty WLI-MS-1310
- Typ oferty mieszkanie na sprzedaż
- Cena 1 150 000 zł
- Charakterystyka mieszkania 72.21 m2, 3 pokoje
- Budynek blok; rok budowy: 1996
- Rozkład mieszkania wysoki parter piętro
- Media Ogrzewanie: C.O. Z SIECI MIEJSKIEJ; Woda: tak - miejska; Gaz: jest
- Balkon jest
- Czynsz Czynsz letni: 1500 zł
- Dojazd asfalt
- Ilość sypialni 2
- Instalacje ELEKTRYCZNA, WODNA, GAZOWA
- Okna PCV
- Otoczenie las
- Plac zabaw Tak
- Stan lokalu dobry
- Technologia budowlana rama H
- Umeblowanie tak
- Winda Tak
Lokalizacja
- Adres mazowieckie, Warszawa, Ursynów
Opis nieruchomości
Przedmiotem oferty jest przestronne mieszkanie o powierzchni 72,21 m², usytuowane na parterze w dziesięciopiętrowym budynku z 1996 roku (technologia rama H). Nieruchomość znajduje się na zamkniętym i ogrodzonym osiedlu, pod ochroną zapewniającym komfort i bezpieczeństwo mieszkańcom.
NAJWAŻNIEJSZE ATUTY:
• przestronna powierzchnia 72,21 m² z praktycznym układem,
• 3 pokoje - idealne dla rodziny lub pary,
• balkon - dodatkowa strefa relaksu,
• duża piwnica i naziemne miejsce parkingowe,
• mieszkanie częściowo umeblowane i wyposażone,
• lokalizacja w spokojnej części Ursynowa / Kabat,
• osiedle zamknięte, z monitoringiem i ochroną,
• doskonała komunikacja - blisko metra Kabaty.
OPIS APARTAMENTU:
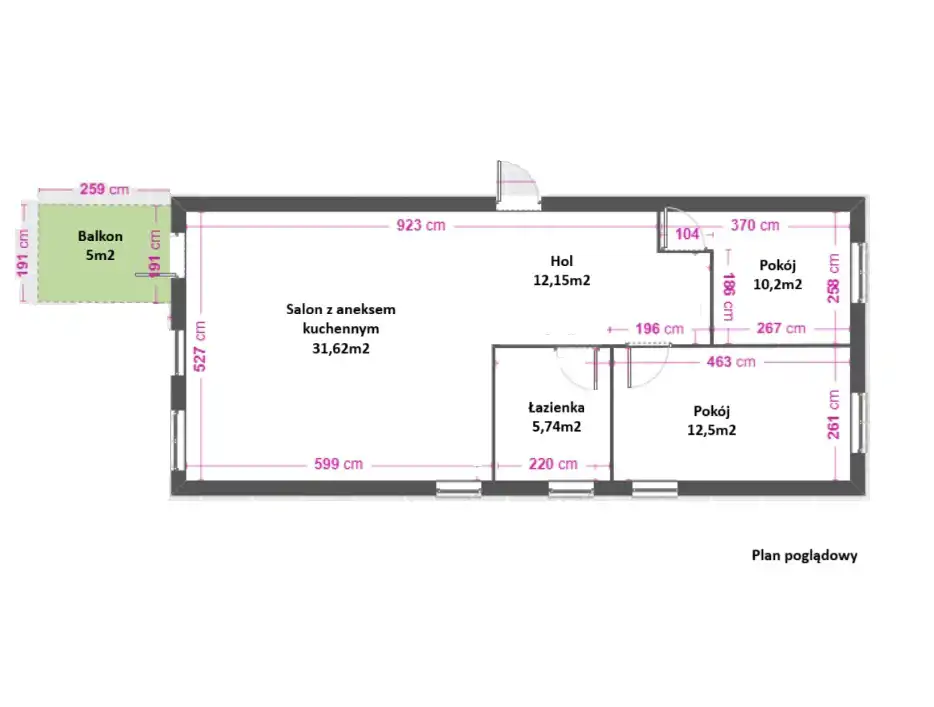
Mieszkanie o funkcjonalnym i komfortowym układzie pomieszczeń składa się z:
- salonu z aneksem kuchennym: 31,62 m²,
- łazienki: 5,74 m²,
- pokoju 1: 12,50 m²,
- pokoju 2: 10,20 m²,
- holu: 12,15 m²,
- balkonu: 5,00 m².
OPIS INWESTYCJI:
Budynek powstał w 1996 roku w technologii rama H, typowej dla osiedli z końca XX wieku. Osiedle jest zamknięte, ogrodzone i monitorowane, co zapewnia poczucie prywatności i bezpieczeństwa. Wokół budynku zachowano przestrzeń zieloną i plac zabaw dla dzieci, co sprzyja codziennej rekreacji na świeżym powietrzu.
Wokół osiedla dominują zabudowa wielorodzinna, ścieżki spacerowe i zieleń, co nadaje całej przestrzeni kameralny charakter.
LOKALIZACJA:
Mieszkanie mieści się przy ul. Wąwozowej 3, w południowej części Warszawy, w sąsiedztwie zielonych terenów Kabat oraz otaczającej zabudowy mieszkaniowej. Lokalizacja łączy spokój i dostęp do natury z pełną infrastrukturą miejską.
W najbliższej okolicy znajdują się sklepy spożywcze, punkty usługowe, apteki, a także placówki edukacyjne (przedszkola, szkoły) i obiekty rekreacyjne. Dzięki temu codzienne potrzeby można zaspokoić na piechotę.
KOMUNIKACJA:
Lokalizacja przy ul. Wąwozowej 3 zapewnia doskonałą komunikację z resztą Warszawy.
W zasięgu 3 minut spacerem znajdują się przystanki autobusowe obsługujące linie miejskie (m.in. 166, 192, 239, 504), które umożliwiają szybki dojazd do innych części Ursynowa oraz centrum miasta.
Ogromnym atutem nieruchomości jest bliskość stacji metra Kabaty (linia M1) - dojście zajmuje zaledwie 5-6 minut pieszo. Dzięki temu mieszkańcy mogą w ciągu 20 minut dotrzeć bezpośrednio do centrum Warszawy (Dworzec Centrum / Świętokrzyska) bez przesiadek.
Dla osób podróżujących samochodem - dogodny wyjazd na ul. Puławską oraz w kierunku trasy S2 umożliwia szybki dojazd do pozostałych dzielnic Warszawy oraz lotniska Chopina (ok. 15 minut).
INFORMACJE DODATKOWE ORAZ OPŁATY:
• Duża piwnica i miejsce parkingowe naziemne - przynależne do mieszkania.
• Czynsz administracyjny - 1500 zł (obejmuje m.in. opłaty, ogrzewanie, wodę i fundusz remontowy).
• Forma własności - własnościowe spółdzielcze prawo do lokalu, grunty nieuregulowane, z założoną Księgą Wieczystą.
• Mieszkanie dostępne od zaraz.
• Miejsce postojowe naziemne - płatne dodatkowo 40 000 zł.
• Komórka lokatorska - w cenie 30 000 zł.
Jeżeli zainteresowała Państwa nasza oferta - serdecznie zapraszam do kontaktu.
Paweł Dąbrowa
Premium Property Advisor
dabrowa@wli.pl
Niniejsze ogłoszenie jest wyłącznie informacją i nie stanowi oferty w rozumieniu art. 66 § 1 Kodeksu Cywilnego. Dokładamy wszelkich starań, aby informacje przedstawione w naszych ofertach były aktualne i rzetelne. Informacje zawarte w ofercie uzyskano na podstawie oświadczeń sprzedających. Załączony plan nieruchomości jest poglądowy.
Agencja WHITE LION INVESTMENTS jest objęta obowiązkiem ubezpieczenia odpowiedzialności cywilnej zawodowej. Posiadamy OC zgodne z Rozporządzeniem Ministra Finansów z dn. 26.04.2019 r. w sprawie obowiązkowego ubezpieczenia odpowiedzialności cywilnej pośrednika w obrocie nieruchomościami (Dz. U. z 2019 r., poz. 804).
Pobieramy wynagrodzenie w formie prowizji za wykonaną usługę pośrednictwa.
Bierzemy odpowiedzialność za bezpieczeństwo przeprowadzanych przez nas transakcji