Mieszkanie na sprzedaż














Szczegóły ogłoszenia
- Symbol oferty VES-MS-4621
- Typ oferty mieszkanie na sprzedaż
- Cena 1 190 000 zł
- Charakterystyka mieszkania 67.85 m2, 3 pokoje
- Budynek apartamentowiec; rok budowy: 2019
- Rozkład mieszkania 3p piętro
- Media Ogrzewanie: centralne; Woda: ciepła - miejska
- Balkon duży
- Czynsz Czynsz letni: 1000 zł
- Garaż garaż pod budynkiem
- Instalacje dobre
- Okna PCV
- Otoczenie bloki
- Stan lokalu bardzo dobry
- Winda Tak
Lokalizacja
- Adres mazowieckie, Warszawa, Ursynów
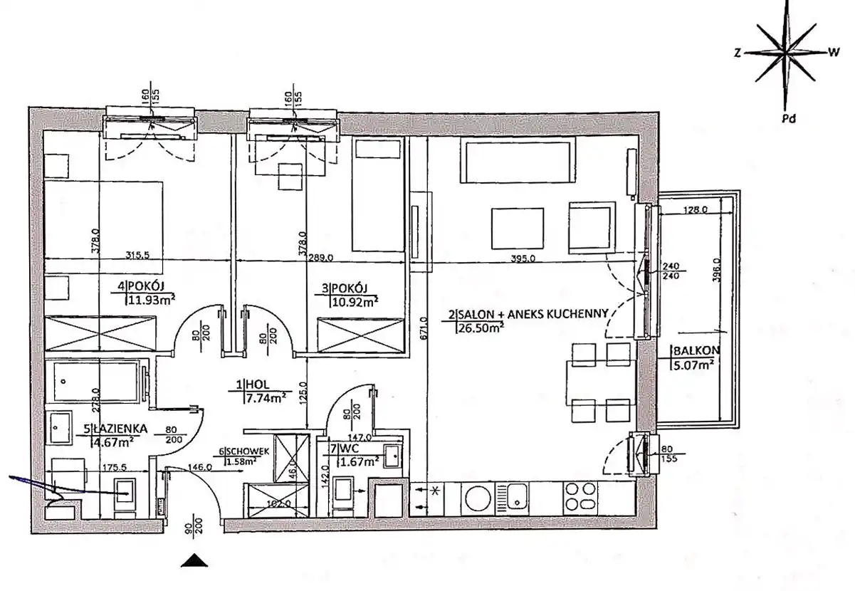
Opis nieruchomości
Na sprzedaż | 3-pokojowe mieszkanie 67,8 m² | ul. Kłobucka 6a, Warszawa
Cena: 1 190 000 zł
Miejsce postojowe + komórka lokatorska ( 6m2 obok mieszkania ): 70 000 zł
Funkcjonalne, jasne i gotowe do zamieszkania mieszkanie położone na 3. piętrze nowoczesnego, 4-piętrowego apartamentowca.
Układ :
-
salon z aneksem kuchennym – 26,5 m² (wyjście na balkon), okna od strony patio.
-
sypialnia – ok. 12 m²,
-
drugi pokój – ok. 11 m²,
-
hol – ok. 8 m²,
-
łazienka z prysznicem,
-
osobne WC,
-
garderoba.
Dodatkowo balkon ok. 5 m².
Najważniejsze atuty:
-
bardzo funkcjonalny rozkład – wyraźny podział na strefę dzienną i prywatną,
-
duże okna, świetne doświetlenie,
-
wysoki standard wykończenia, neutralna kolorystyka,
-
w pełni wyposażona kuchnia (AGD),
-
liczne szafy + oddzielna garderoba,
-
mieszkanie zadbane, gotowe do wprowadzenia.
Garaż i komórka:
-
wygodne miejsce postojowe tuż przy windzie,
-
przestronna komórka lokatorska ok. 6 m², obok mieszkania.
Lokalizacja – Mokotów/Kłobucka:
-
autobus pod budynkiem, szybki dojazd do Galerii Mokotów i metra,
-
blisko sklepy, restauracje, usługi, przychodnia, szkoły i przedszkola,
-
tereny zielone, jeziorko, place zabaw, strefy rekreacyjne,
Kontakt
EMILIA M. SZYMAŃSKA
660 865 803
eszymanska@vestrahouse.pl