Mieszkanie na sprzedaż















Szczegóły ogłoszenia
- Symbol oferty VES-MS-4627
- Typ oferty mieszkanie na sprzedaż
- Cena 1 199 000 zł
- Charakterystyka mieszkania 66.53 m2, 3 pokoje
- Budynek kamienica
- Rozkład mieszkania parter piętro
- Balkon jest
- Czynsz Czynsz letni: 1065 zł
- Instalacje częściowo wymienione
- Okna PCV
- Stan lokalu do odnowienia
- Technologia budowlana cegła czerwona
Lokalizacja
- Adres mazowieckie, Warszawa, Praga-Południe
Opis nieruchomości
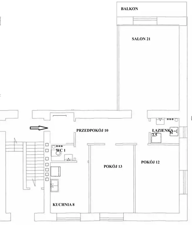
Trzypokojowe mieszkanie na Saskiej Kępie – ul. Saska.
Na sprzedaż trzypokojowe mieszkanie o powierzchni 66,53 m², położone w jednej z najbardziej cenionych części Warszawy – na Saskiej Kępie.
Lokal znajduje się w kameralnym, dwupiętrowym budynku z lat 50., który od strony ulicy Saskiej jest ogrodzony, co zapewnia poczucie prywatności i spokoju. Otoczenie budynku jest zielone i zadbane, charakterystyczne dla tej części dzielnicy.
Układ i ekspozycja
Mieszkanie jest funkcjonalne i dobrze doświetlone:
-
Salon z wyjściem na balkon oraz oknami wychodzącymi na zielony ogródek,
-
Kuchnia oraz jeden z pokoi z ekspozycją na ulicę Saską,
-
Trzeci pokój z oknami od strony cichego podwórka.
Dodatkowym atutem jest łazienka z oknem, zapewniająca naturalne światło i wentylację, a także oddzielne WC, co znacząco podnosi komfort codziennego użytkowania mieszkania.
Wnętrze
-
W pokojach zachowany oryginalny, drewniany parkiet,
-
Wysokość i proporcje pomieszczeń typowe dla solidnego budownictwa z lat 50.,
-
Mieszkanie daje duże możliwości aranżacyjne – zarówno do zamieszkania, jak i do modernizacji według własnych potrzeb.