Mieszkanie na sprzedaż










Szczegóły ogłoszenia
- Symbol oferty WAW-MS-12542
- Typ oferty mieszkanie na sprzedaż
- Cena 1 263 297 zł
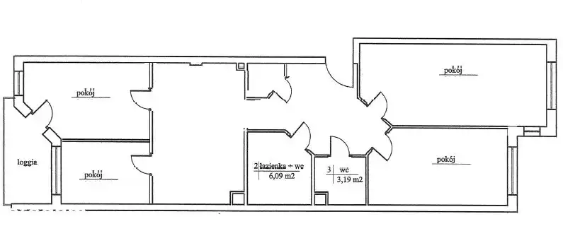
- Charakterystyka mieszkania 97.93 m2, 5 pokoi
- Budynek blok; rok budowy: 2009
- Rozkład mieszkania wysoki parter piętro
- Balkon jest
- Garaż miejsce parkingowe przy budynku
- Ilość sypialni 4
- Okna PCV
- Stan lokalu do odświeżenia
- Winda Tak
Lokalizacja
- Adres mazowieckie, Warszawa, Bemowo
Opis nieruchomości
Idealne dla INWESTORA
Bemowo - 98 m² - 5 pokoi - 2 łazienki - loggia - ul. Apenińska
Na sprzedaż przestronne i bardzo jasne mieszkanie o powierzchni niemal 98 m², położone w spokojnej części warszawskiego Bemowa, przy ul. Apenińskiej. To idealna propozycja dla rodzin poszukujących komfortowej przestrzeni lub dla inwestorów, którzy cenią potencjał wynajmu w dobrze skomunikowanej i rozwijającej się dzielnicy.
Atuty nieruchomości:
-
duża powierzchnia 98 m² z dwustronnym układem – ekspozycja na południowy zachód i północny wschód,
-
funkcjonalny rozkład – 5 pokoi, 2 łazienki, garderoba i loggia,
-
możliwość przywrócenia pierwotnego układu (salon z aneksem i 2 sypialnie), W pierwotnym układzie mieszkanie składało się z 3 pokoi - salonu z aneksem kuchennym i dwóch sypialni. Na potrzeby właścicieli zostało podzielone.
-
idealne również jako mieszkanie inwestycyjne pod wynajem,
-
spokojne, zadbane osiedle z dużą ilością zieleni,
-
budynek z 2009 roku z windą, w bardzo dobrym stanie technicznym.
Układ pomieszczeń:
-
kuchnia z jadalnią – 22 m²,
-
pokój I – 21 m²,
-
pokój II – 14,6 m²,
-
pokój III – 10 m²,
-
pokój IV – 8 m²,
-
łazienka I – 6 m²,
-
łazienka II – 3,2 m²,
-
komunikacja – 7 m²,
-
garderoba – 6 m²,
-
loggia – 8 m².
Mieszkanie jest bardzo ustawne i doświetlone przez cały dzień, dzięki dużym oknom wychodzącym na dwie strony świata.
Dodatkowe informacje:
-
do mieszkania przynależy zewnętrzne miejsce postojowe,
-
osiedle zadbane z licznymi nasadzeniami,
-
w budynku znajduje się winda,
-
możliwość zakupu w kredycie hipotecznym (pełna własność).
Lokalizacja:
Świetna lokalizacja łączy spokój i kameralność Bemowa z bliskością miejskiej infrastruktury:
-
sklep – 50 m,
-
apteka – 100 m,
-
kawiarnia – 150 m,
-
przystanek autobusowy – 150 m,
-
szkoła i przedszkole – ok. 500 m,
-
szybki dojazd do centrum – ok. 25 minut.
W pobliżu znajdują się liczne tereny zielone i rekreacyjne, ścieżki rowerowe oraz punkty usługowe, dzięki czemu lokalizacja doskonale łączy komfort życia miejskiego z bliskością natury.
Zachęcam do kontaktu i zapraszam na prezentację tego wyjątkowego mieszkania.
To doskonała oferta zarówno dla rodziny, jak i inwestora szukającego nieruchomości o dużym potencjale.
794 919 790